Eladó átlagos állapotú panel lakás - Debrecen
- INGYENES HIRDETÉS FELADÁS
Ingatlan adatai
- Eladó vagy kiadó:Eladó
- Település:Debrecen
- Kategória:Lakás
- Alkategória:Panel
- Alapterület:71 m2
- Csere is:Nem
- Hirdető:Cég
- Élő videón megtekinthető:Nem
- Szobaszám:3
- Állapot:Átlagos állapotú
- Hány szintes az ingatlan:Földszintes
- Komfortosság:nincs megadva
- Hányadik emeleti:9
- Erkély:nincs megadva
- Lift:Van
- Parkolási lehetőség:nincs megadva
- Fűtés:Távfűtés egyedi mérővel
- Bútorozottság:nincs megadva
- Fényviszony:Napfényes
- Tájolás:nincs megadva
- Kilátás:nincs megadva
- Internet:nincs megadva
- Klíma:nincs megadva
- Akadálymentesített:nincs megadva
- Energiatanúsítvány:nincs megadva
- Villany:Van
- Víz:Van
- Gáz:nincs megadva
- Csatorna:Van
- Közös költség:12 070 Ft
- Kapcsolatfelvétel

Lakatos-Szabó Orsolya
+36-(30)-736-8670
Mondd meg a hirdetőnek, hogy a megveszLAK-on találtad a hirdetést.
Referencia szám: M318104
Hitel ajánlatok
Ingatlan hirdetés leírása
Eladó Lakás, Debrecen
Debrecen belvárosában a Bethlen utcán, 3 szobás lakás eladó!
Debrecen egyik kedvelt, központi részén, a Bethlen utcán kínálunk megvételre egy tíz emeletes épület 9. emeletén lévő, világos, tágas elrendezésű lakást. a környék infrastruktúrája kiemelkedő: busz- és villamosmegállók néhány perc sétára, a közelben üzletek, iskolák, gyógyszertár, valamint a belváros minden fontos szolgáltatása megtalálható. a társasház rendezett, jó lakóközösséggel rendelkezik.
Az ingatlan főbb jellemzői:
*Alapterület: 71 m2
*Emelet: 9. emelet/nem zárószint/
*Fűtés / melegvíz: távfűtés; a melegvíz a fűtésrendszeren keresztül biztosított? Költséghatékony és kiszámítható rezsivel
*Közös költség: 12 070 Ft
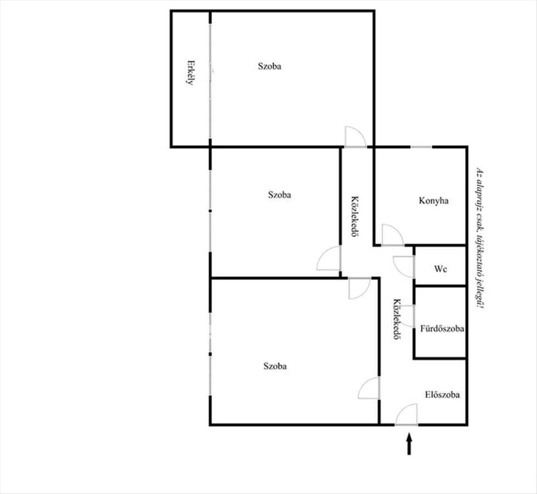
*Elrendezés:
-3 teljes értékű, különnyíló szoba
-konyha
-fürdőszoba
-külön WC
-előszoba
-közlekedő
*Erkély: az ingatlanhoz erkély tartozik, ahonnan hangulatos kilátás nyílik a Bethlen utcára innen akár a Virágkarnevál menete is megtekinthető
*Tárolás: a lakáshoz közös tárolóhelyiség is tartozik/3-4 lakás/tároló/
*Nyílászárók: fa nyílászárók
*Állapot: átlagos, utoljára átfogóbb korszerűsítés 2011-ben történt
Kinek ajánljuk?
Tökéletes választás mindazok számára, akik a belváros kényelmét, a kiváló közlekedést és a praktikus elrendezést szeretnék élvezni. Családoknak, egyetemistáknak és befektetőknek is ideális, mivel a környék keresett és a lakás könnyen bérbe adható.
Ha olyan lakást keres, amely értékálló, könnyen kiadható, ezt érdemes megnéznie! Az OTP Bankcsoport teljes körű ügyintézéssel áll az eladók és a vevők rendelkezésére. FIX 3% lakáshitelre megvehető
Tetszett ez az eladó Debreceni átlagos állapotú 3 szobás panel lakás? Hívd fel a hirdetőt most, és tudj meg mindent erről az eladó panel lakásról! Ha gondolod nézelődj tovább az eladó lakás Debrecen oldal hirdetései között. Ennek az eladó lakásnak az ára 64900000 Ft és mivel az alapterülete 71 négyzetméter, ezért az átlagos négyzetméterára 914085 HUF/m2.
Az eladó lakások menüpontban további hirdetések között is böngészhetsz. Ha van kedved, akkor böngészhetsz a Lakatos-Szabó Orsolya összes hirdetése között, vagy akár a/az OTPip Debrecen Kürtös utca 8 - OTP Ingatlanpont Iroda összes hirdetése között is.

