Eladó jó állapotú panel lakás - Miskolc
- INGYENES HIRDETÉS FELADÁS
Ingatlan adatai
- Feladva:71 napja a megveszLAK-on
- Eladó vagy kiadó:Eladó
- Település:Miskolc
- Kategória:Lakás
- Alkategória:Panel
- Alapterület:54 m2
- Csere is:Nem
- Hirdető:Cég
- Élő videón megtekinthető:Nem
- Szobaszám:1 + 2 fél
- Állapot:Jó állapotú
- Hány szintes az ingatlan:Földszintes
- Komfortosság:nincs megadva
- Hányadik emeleti:3
- Erkély:Van
- Lift:Van
- Parkolási lehetőség:nincs megadva
- Fűtés:Távfűtés
- Bútorozottság:nincs megadva
- Fényviszony:Napfényes
- Tájolás:nincs megadva
- Kilátás:nincs megadva
- Internet:nincs megadva
- Klíma:nincs megadva
- Akadálymentesített:nincs megadva
- Energiatanúsítvány:nincs megadva
- Villany:Van
- Víz:Van
- Gáz:nincs megadva
- Csatorna:Van
- Közös költség:13 000 000 Ft
- Kapcsolatfelvétel

Klubert Gergő
+36-(70)-907-0598
Mondd meg a hirdetőnek, hogy a megveszLAK-on találtad a hirdetést.
Referencia szám: M324672
Hitel ajánlatok
Ingatlan hirdetés leírása
Eladó Lakás, Miskolc
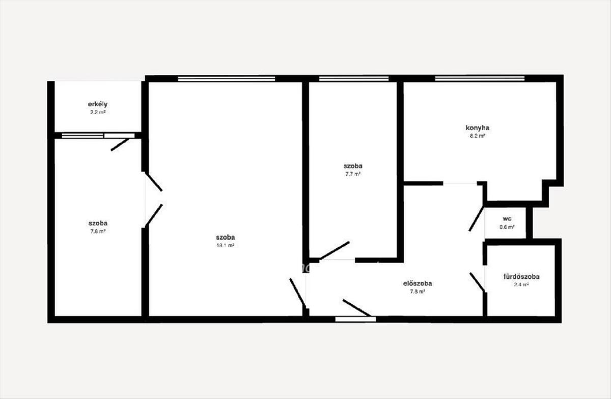
Eladó egy+két félszobás erkélyes klímás lakás a középszeren! Eladó a Középszer utcában egy 54 nm -es, egy + két félszobás, erkélyes, klímás, részben felújított, harmadik emeleti, tehermentes panellakás! Ablakai hőszigeteltek, bejárati ajtó kicserélve, fürdő és wc a kád kivételével felújítva, villamoshálózat a konyha és fürdő felé átvezetékelve. Lépcsőháza tiszta rendes, a szomszédok kulturáltak. Kilátás a parkos domboldalra, parkolás a ház előtt ingyenes. Tömegközlekedés, üzletek, iskola pár percre. Várom hívását hétvégén is!
OTP Banki hátterünknek köszönhetően finanszírozási igényekben (pl. Otthon Start Hitelprogram, Babaváró, Falusi csok, CSOK Plusz, Lakáshitel, Személyi kölcsön stb. ), Illetve biztosítások tekintetében is díjmentesen, soron kívüli ügyintézéssel segítem ügyfeleim! Referenciaszám: M324672
Virtuális séta: https://my. Matterport. Com/show/? M=12zx5r5e3tatrnk9bhnutbawa&views=0&mls=1 FIX 3% lakáshitelre megvehető
Tetszett ez az eladó Miskolci jó állapotú 1 egész és 2 fél szobás panel lakás? Hívd fel a hirdetőt most, és tudj meg mindent erről az eladó panel lakásról! Ha gondolod nézelődj tovább az eladó lakás Miskolc oldal hirdetései között. Ennek az eladó lakásnak az ára 29990000 Ft és mivel az alapterülete 54 négyzetméter, ezért az átlagos négyzetméterára 555370 HUF/m2.
Az eladó lakások menüpontban további hirdetések között is böngészhetsz. Ha van kedved, akkor böngészhetsz a Klubert Gergő összes hirdetése között, vagy akár a/az OTPip Miskolc Szemere Bertalan utca 20 - OTP Ingatlanpont Iroda összes hirdetése között is.

