Eladó átlagos állapotú panel lakás - Miskolc
- INGYENES HIRDETÉS FELADÁS
Ingatlan adatai
- Eladó vagy kiadó:Eladó
- Település:Miskolc
- Kategória:Lakás
- Alkategória:Panel
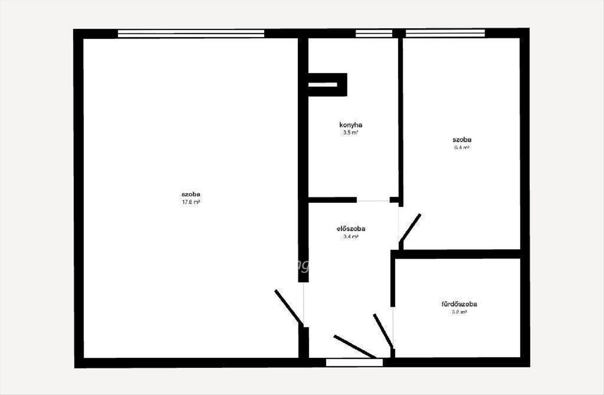
- Alapterület:35 m2
- Csere is:Nem
- Hirdető:Cég
- Élő videón megtekinthető:Nem
- Szobaszám:1 + 1 fél
- Állapot:Átlagos állapotú
- Hány szintes az ingatlan:Földszintes
- Komfortosság:nincs megadva
- Hányadik emeleti:Földszint
- Erkély:nincs megadva
- Lift:Nincs
- Parkolási lehetőség:nincs megadva
- Fűtés:Távfűtés
- Bútorozottság:nincs megadva
- Fényviszony:Napfényes
- Tájolás:nincs megadva
- Kilátás:nincs megadva
- Internet:nincs megadva
- Klíma:nincs megadva
- Akadálymentesített:nincs megadva
- Energiatanúsítvány:nincs megadva
- Villany:Van
- Víz:Van
- Gáz:nincs megadva
- Csatorna:Van
- Közös költség:5 000 Ft
- Kapcsolatfelvétel

Szoboszlai Péter
+36-(70)-550-4311
Mondd meg a hirdetőnek, hogy a megveszLAK-on találtad a hirdetést.
Referencia szám: M318945
Hitel ajánlatok
Ingatlan hirdetés leírása
Eladó Lakás, Miskolc
Eladó másfél szobás lakás a szentpéteri kapu elején! Eladó a Macropolis közelében egy 35 nm-es, másfél szobás, földszinti, távfűtéses panellakás! Burkolata laminált padló, előszoba fürdő és konyha járólap. Nyílászárók kicserélve. Fekvésének és különnyíló szobáinak köszönhetően irodának is kiválóan alkalmas! Lépcsőháza csendes, üzletek tömegközlekedés pár percre. Várom hívását hétvégén is!
OTP Banki hátterünknek köszönhetően finanszírozási igényekben (pl. Otthon Start Hitelprogram, Babaváró, Falusi csok, CSOK Plusz, Lakáshitel, Személyi kölcsön stb. ), Illetve biztosítások tekintetében is díjmentesen, soron kívüli ügyintézéssel segítem ügyfeleim!
Referenciaszám: M318954
Virtuális séta: https://my. Matterport. Com/show/? M=fgg5w4tskz93wz9nwe2igfb6c&views=0&mls=1 FIX 3% lakáshitelre megvehető

