Eladó jó állapotú panel lakás - Miskolc
- INGYENES HIRDETÉS FELADÁS
Ingatlan adatai
- Feladva:46 napja a megveszLAK-on
- Eladó vagy kiadó:Eladó
- Település:Miskolc
- Kategória:Lakás
- Alkategória:Panel
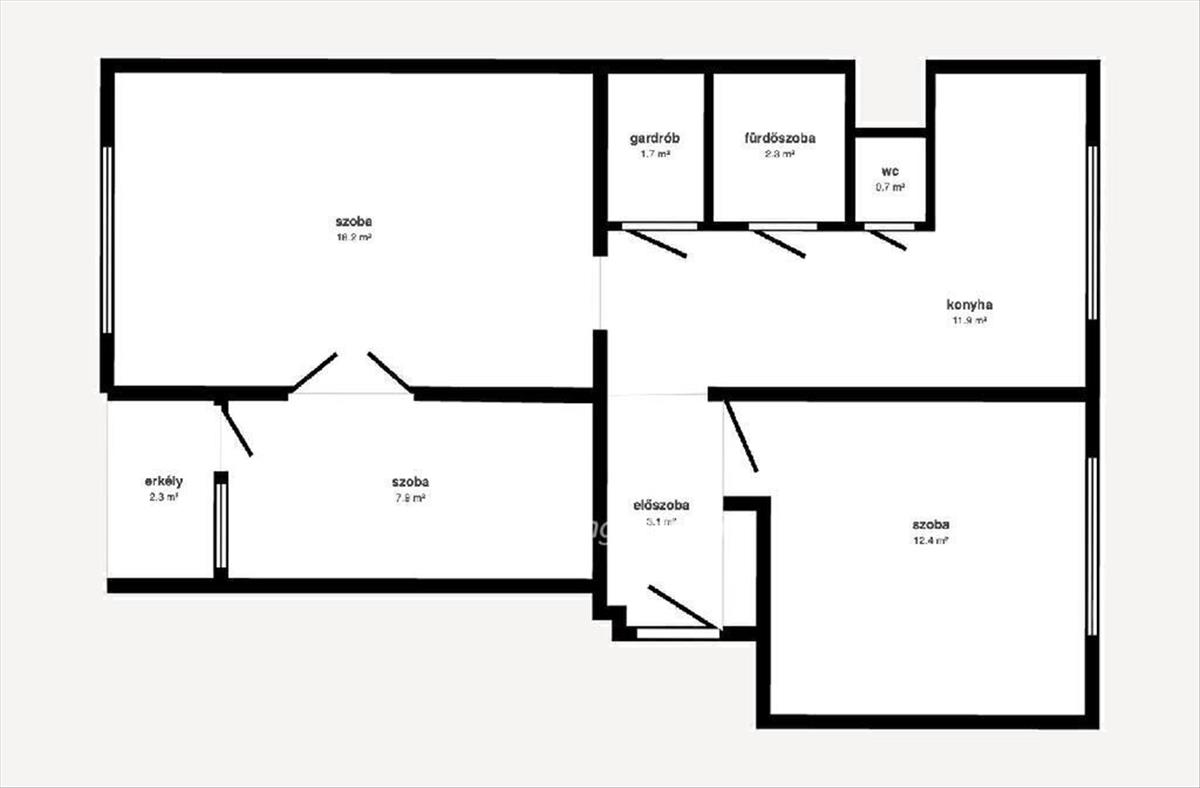
- Alapterület:61 m2
- Csere is:Nem
- Hirdető:Cég
- Élő videón megtekinthető:Nem
- Szobaszám:2 + 1 fél
- Állapot:Jó állapotú
- Hány szintes az ingatlan:Földszintes
- Komfortosság:nincs megadva
- Hányadik emeleti:Földszint
- Erkély:nincs megadva
- Lift:Van
- Parkolási lehetőség:nincs megadva
- Fűtés:Távfűtés egyedi mérővel
- Bútorozottság:nincs megadva
- Fényviszony:Napfényes
- Tájolás:nincs megadva
- Kilátás:nincs megadva
- Internet:nincs megadva
- Klíma:Van
- Akadálymentesített:nincs megadva
- Energiatanúsítvány:nincs megadva
- Villany:Van
- Víz:Van
- Gáz:nincs megadva
- Csatorna:Van
- Közös költség:15 000 Ft
- Kapcsolatfelvétel

Drótos Bence
+36-(30)-590-4195
Mondd meg a hirdetőnek, hogy a megveszLAK-on találtad a hirdetést.
Referencia szám: M325121
Hitel ajánlatok
Ingatlan hirdetés leírása
Eladó Lakás, Miskolc
Eladó Miskolc közkedvelt részén, az Árpád úton egy 61 m2-es 2+1 szobás, földszinti, panelprogramos lakás. Az ingatlan műszakilag felújított, az elektromos és vízhálózat teljes körűen cserélve lett. a lakás klimatizált, a berendezés 1 éve került felszerelésre, még 2 év garanciával rendelkezik. a konyha 2 éve megújult, modern, gépesített bútorral, beépített mosogatógéppel és sütővel. a nyílászárók redőnnyel felszereltek, az erkély beépített, ablakkal ellátott. a társasházban a közös strang csövek cseréje idén megtörtént. Az ingatlan kedvező energetikai besorolású. Elhelyezkedése kiváló, bank, üzletek, éttermek, busz- és villamosmegálló, óvoda és iskola 100 méteren belül elérhető.
OTP Banki hátterünknek köszönhetően finanszírozási igényekben (pl. Otthon Start Hitelprogram, Babaváró, Falusi csok, CSOK Plusz, Lakáshitel, Személyi kölcsön, Vállalkozói hitel stb. ), Illetve biztosítások tekintetében is díjmentesen, soron kívüli ügyintézéssel segítem ügyfeleim! Referenciaszám: m325121 FIX 3% lakáshitelre megvehető
Tetszett ez az eladó Miskolci jó állapotú 2 egész és 1 fél szobás panel lakás? Hívd fel a hirdetőt most, és tudj meg mindent erről az eladó panel lakásról! Ha gondolod nézelődj tovább az eladó lakás Miskolc oldal hirdetései között. Ennek az eladó lakásnak az ára 34900000 Ft és mivel az alapterülete 61 négyzetméter, ezért az átlagos négyzetméterára 572131 HUF/m2.
Az eladó lakások menüpontban további hirdetések között is böngészhetsz. Ha van kedved, akkor böngészhetsz a Drótos Bence összes hirdetése között, vagy akár a/az OTPip Miskolc Szemere Bertalan utca 20 - OTP Ingatlanpont Iroda összes hirdetése között is.

