Eladó átlagos állapotú panel lakás - Miskolc
- INGYENES HIRDETÉS FELADÁS
Ingatlan adatai
- Eladó vagy kiadó:Eladó
- Település:Miskolc
- Kategória:Lakás
- Alkategória:Panel
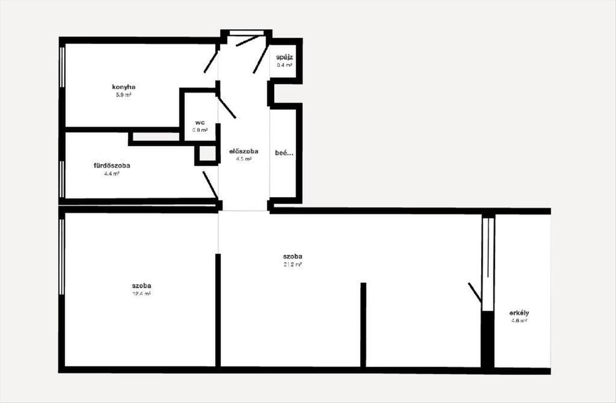
- Alapterület:54 m2
- Csere is:Nem
- Hirdető:Cég
- Élő videón megtekinthető:Nem
- Szobaszám:2
- Állapot:Átlagos állapotú
- Hány szintes az ingatlan:Földszintes
- Komfortosság:nincs megadva
- Hányadik emeleti:4
- Erkély:nincs megadva
- Lift:Nincs
- Parkolási lehetőség:nincs megadva
- Fűtés:Gáz (konvektor)
- Bútorozottság:nincs megadva
- Fényviszony:Jó
- Tájolás:nincs megadva
- Kilátás:nincs megadva
- Internet:nincs megadva
- Klíma:nincs megadva
- Akadálymentesített:nincs megadva
- Energiatanúsítvány:nincs megadva
- Villany:Van
- Víz:Van
- Gáz:nincs megadva
- Csatorna:Van
- Közös költség:12 000 Ft
- Kapcsolatfelvétel

Nagy István György
+36-(20)-449-3075
Mondd meg a hirdetőnek, hogy a megveszLAK-on találtad a hirdetést.
Referencia szám: M320727
Hitel ajánlatok
Ingatlan hirdetés leírása
Eladó Lakás, Miskolc
Eladó 2 szobás lakás Miskolc közkedvelt részén, a Győri kapuban!
Miskolc Győri kapu városrészében, egy 4 emeletes társasház 4. emeletén kínálunk megvételre egy 54 m2-es, 2 szobás lakást.
Az ingatlan praktikus elrendezésű, világos helyiségekkel rendelkezik, így ideális választás lehet fiatal pároknak, kisebb családnak vagy akár befektetés céljára is.
Főbb jellemzők:
-54 nm
alapterület
-2 külön szoba
-Konvektoros fűtés
-Tehermentes, rövid időn belül birtokba vehető
-Közkedvelt, jól ellátott környék
A lakás elhelyezkedése kiváló: a belváros mindössze 10 perc alatt elérhető, a közelben boltok, iskola, óvoda, tömegközlekedési lehetőségek megtalálhatók.
Remek lehetőség saját otthonnak vagy biztos befektetésnek egyaránt!
Amennyiben az ingatlan felkeltette az érdeklődését, hívjon bizalommal és tekintsük meg együtt akár hétvégén is! OTP Banki hátterünknek köszönhetően finanszírozási igényekben (pl. Otthon Start Hitel Program, Babaváró, csok, Felújítási hitel, stb. ) Is állunk ügyfeleink rendelkezésére. Az ingatlan előre egyeztetett időpontban megtekinthető, megbízható ügyvédi közreműködést, szerződéskötéshez irodai hátteret biztosítunk. Referencia szám: m320727 FIX 3% lakáshitelre megvehető
Tetszett ez az eladó Miskolci átlagos állapotú 2 szobás panel lakás? Hívd fel a hirdetőt most, és tudj meg mindent erről az eladó panel lakásról! Ha gondolod nézelődj tovább az eladó lakás Miskolc oldal hirdetései között. Ennek az eladó lakásnak az ára 27900000 Ft és mivel az alapterülete 54 négyzetméter, ezért az átlagos négyzetméterára 516667 HUF/m2.
Az eladó lakások menüpontban további hirdetések között is böngészhetsz. Ha van kedved, akkor böngészhetsz a Nagy István György összes hirdetése között, vagy akár a/az OTPip Miskolc Szemere Bertalan utca 20 - OTP Ingatlanpont Iroda összes hirdetése között is.

