Eladó raktár Üllő
| Kedvencbe | Megosztás | Árfigyelő |
| Kedvezményes lakáshitel ajánlatok | ||
| 149 000 000 HUF | ||
Ingatlan adatai
- Eladó vagy kiadó:Eladó
- Település:Üllő
- Kategória:Ipari ingatlan
- Alkategória:Raktár
- Alapterület:150 m2
- Telekterület:nincs megadva
- Csere is:Nem
- Hirdető:Cég
- Élő videón megtekinthető:Nem
- Építés éve:2025
- Hány szintes az ingatlan:nincs megadva
- Hányadik emeleti:nincs megadva
- Parkolási lehetőség:nincs megadva
- Energiatanúsítvány:nincs megadva
- Villany:nincs megadva
- Víz:nincs megadva
- Gáz:nincs megadva
- Csatorna:nincs megadva
- Üzenetküldés
- Hívás

Referencia szám: IP086491

Hitel ajánlat
Ingatlan hirdetés leírása
Eladó ipari, Üllő, Eladó raktár - Üllő
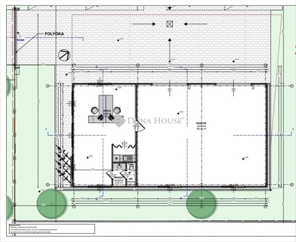
Üllőn Új építésű iroda és raktárcsarnok vállalkozóknak, befektetőknek eladó! Üllő belterületén, kiváló közlekedési adottságokkal rendelkező részen, 600 m²-es telken kínálunk eladásra egy 150 m²-es, modern raktárcsarnokot mely egy 50 m²-es irodaépületet is magába foglal, amelyek átadása : 2026. Q2 - ben várható. Ez az ingatlan tökéletes választás lehet kereskedelmi, logisztikai, szolgáltató vagy gyártó vállalkozások számára, akik modern, alacsony fenntartású és hosszú távon értékálló telephelyet keresnek. Továbbá kiemelkedő befektetési lehetőség is, hiszen a lokáció és a műszaki tartalom miatt hosszú távon, stabilan bérbe adható, így rendszeres hozamot biztosíthat tulajdonosának. Iroda + csarnok kombináció = sokféle tevékenységre teszi alkalmassá. ! Üllő elhelyezkedése (Budapest közelsége, autópálya, logisztikai csomópont) kiemelten keresetté teszi a kis- és középvállalkozások körében. Az ingatlan jellemzői:Korszerű, öntartó ipe 200 acélszerkezet, 10 cm-es pir tűzálló szendvicspanel falazat, Fűtött iroda és csarnok, 5 kW-os Fujitsu inverteres klímával, Napelem kiállás előkészítve, Modern kamerarendszer és riasztó telepítés, 2 db ipari kapu (3×2 m), Belmagasság: 5, 5 méter, ideális raktározáshoz vagy gyártási tevékenységhez. Irodai rész:50 m²-es irodaépület nagy ablakokkal, Teakonyha és mosdó kialakítás, Opcionálisan további 30 m² tárgyaló vagy iroda kialakítható az emeleti szinten, Belső elrendezés jelenleg még igény szerint alakítható. Külső környezet:220 m² térkövezett burkolat, 230 m² rendezett zöldterület. Közműellátottság: víz, villany, csatorna. Az ár nettó ár! Érdeklődés vagy megtekintési szándék esetén várom hívását, nézzük meg együtt!Érd: Novák Krisztina +36/30-882-4935 email: krisztina. Novak@dh. Hu
Referencia szám: ip086491 Hitel.hu - Hasonlítsa össze a bankok lakáshitel ajánlatait

