Eladó új építésű ház - Budapest XVIII. kerület
- INGYENES HIRDETÉS FELADÁS
Ingatlan adatai
- Eladó vagy kiadó:Eladó
- Település:Budapest XVIII. kerület
- Kategória:Ház
- Alkategória:Sorház
- Alapterület:98 m2
- Telekterület:830 m2
- Csere is:Nem
- Hirdető:Cég
- Élő videón megtekinthető:Nem
- Építés éve:2025
- Szobaszám:4
- Állapot:Új építésű
- Hány szintes az ingatlan:Földszintes
- Tetőtér:nincs megadva
- Komfortosság:nincs megadva
- Pince:nincs megadva
- Parkolási lehetőség:nincs megadva
- Fűtés:Gáz (cirko)
- Bútorozottság:nincs megadva
- Fényviszony:Napfényes
- Tájolás:D
- Kilátás:nincs megadva
- Internet:nincs megadva
- Klíma:Van
- Akadálymentesített:nincs megadva
- Energiatanúsítvány:A
- Villany:nincs megadva
- Víz:nincs megadva
- Gáz:nincs megadva
- Csatorna:nincs megadva
- Kapcsolatfelvétel

Molnár Nikoletta
+36-(30)-856-3188
Mondd meg a hirdetőnek, hogy a megveszLAK-on találtad a hirdetést.
Referencia szám: HZ045831
Ingatlan hirdetés leírása
Eladó ház, Budapest 18. ker.
Szemeretelepen sarokteleken, háromlakásos modern sorház szélső és középső lakása ELADÓ
A lakásoknak nincs közös fala, mert a gépkocsitárolóknál kapcsolódnak! Az építkezés elkezdődött, de a fotók között a tulajdonos korábbi referenciái szerepelnek! a XVIII. kerület keresett, kertvárosias részén egy kiváló adottságú, közművesített saroktelek épül az új otthona.
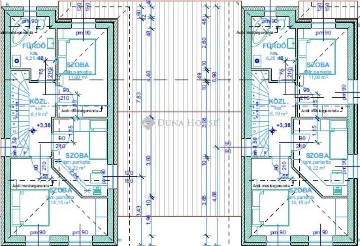
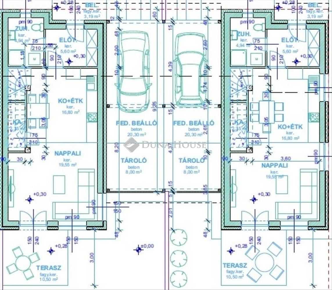
A tervek szerint egy háromlakásos, igényes megjelenésű, jól átgondolt alaprajzú sorház épül rá, mely szervesen illeszkedik a környező családi házas övezet hangulatához. a lakások jellemzőiA lakások külön bejáratúak, jól elkülönülnek egymástól, modern, családbarát alaprajzzal, és kertkapcsolattal rendelkeznek, saját garázzsal, tárolóval. a nappali + 3 hálószobás lakások méretben, elrendezésben teljesen megegyeznek, csak a kert mérete tesz különbséget köztük. a lakások nettó alapterülete 98, 13 nm, a garázs 20, 3 nm, a tároló 8 nm. a lakások várható átadása: 2025. December. Földszint Hangulatos előkert felől megközelíthető bejárat, védett előtetővel. Fogadó előszoba praktikus elrendezéssel. Udvarra tájolt, napfényes nappali-étkező-konyha egy légtérben, ami ideális a családi együttlétekhez.
Konyhához tartozó kamra a kényelmes tároláshoz. Utcafront felé néző, külön zuhanyzós fürdőszoba a földszinten vendégek vagy családtagok kényelmére. a nappaliból közvetlen kijárat egy teraszra, ami kiválóan alkalmas kerti étkezésekhez vagy pihenéshez. Kertkapcsolat, amely lehetővé teszi a zöld környezet élvezetét saját használatú udvarrész formájában.
Egyállásos fedett gépkocsi-beálló és különálló külső tároló is tartozik a lakáshoz. emelet Tágas, kényelmes lépcsőház és közlekedő. Három külön nyíló, jól bútorozható hálószoba (14 nm, 11 nm, 9 nm), ideális akár többgyermekes családoknak. Külön fürdőszoba a felső szinten. TelekTéglalap alakú, sík terep, építési szempontból optimális. Teljes közműellátottság: víz, csatorna, gáz, elektromos áram rendelkezésre áll. Környezet jellemzői: Nyugodt, családi házas övezet. Egy- és kétszintes szomszédos épületek, szabadon álló és oldalhatáros beépítési móddal, jellemzően előkertes kialakítással. Kifejezetten jól illeszkedik a tervezett ház tömegformálása és homlokzati kialakítása a már kialakult utcaképbe.
A közvetlen szomszédos ingatlanok is szépen gondozottak, rendezett környezetet biztosítva. Kiváló közlekedési és infrastrukturális ellátottság. Kiváló választás Önnek, ha modern, családbarát otthont szeretne családjának! a részletekkel kapcsolatban várom jelentkezését!
Hívjon, akár hétvégén is!
Referencia szám: hz045831-ml FIX 3% lakáshitelre megvehető


