Eladó új építésű ház - Gyömrő
- INGYENES HIRDETÉS FELADÁS
Ingatlan adatai
- Eladó vagy kiadó:Eladó
- Település:Gyömrő
- Kategória:Ház
- Alkategória:Sorház
- Alapterület:80 m2
- Telekterület:344 m2
- Csere is:Nem
- Hirdető:Cég
- Élő videón megtekinthető:Nem
- Építés éve:2024
- Szobaszám:4
- Állapot:Új építésű
- Hány szintes az ingatlan:nincs megadva
- Tetőtér:nincs megadva
- Komfortosság:nincs megadva
- Pince:Nincs
- Parkolási lehetőség:Udvaron
- Fűtés:nincs megadva
- Bútorozottság:nincs megadva
- Fényviszony:nincs megadva
- Tájolás:nincs megadva
- Kilátás:nincs megadva
- Internet:Optikai
- Klíma:nincs megadva
- Akadálymentesített:nincs megadva
- Energiatanúsítvány:nincs megadva
- Villany:Van
- Víz:Van
- Gáz:nincs megadva
- Csatorna:Van
- Kapcsolatfelvétel

Horváth Zoltán
+36-(70)-550-6680
Mondd meg a hirdetőnek, hogy a megveszLAK-on találtad a hirdetést.
Ingatlan hirdetés leírása
Megvételre kínálunk Gyömrő közkedvelt lakóparkjában, a Kastély...
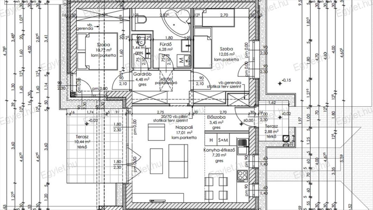
Megvételre kínálunk Gyömrő közkedvelt lakóparkjában, a KastélyDombon egy új építésű, hőszivattyús, 80 m² alapterületű + teraszos, 4 szobás, összkomfortos, gardróbos, sorházat. a ház tájolása és elosztása kiváló, világos, nyitott terekkel rendelkezik.
Az ingatlan igényes kivitelezéssel, minőségi alapanyagokból, átgondolt tervezéssel, egyedi belső kialakítással készült, ahol a kényelem és az átgondolt tervezés mellett az energia takarékosság volt a fő szempont. Az ingatlan nappalijából egy 10 nm-es teraszon keresztül tudjuk megközelíteni a körbekerített privát kertet. A ház fűtéséről és használati melegvíz ellátásáról egy hőszivattyú gondoskodik, padlófűtéssel kombinálva. Ennek köszönhetően a rezsi költségek kedvezően alakulnak. a házhoz tartozó privát kert mérete: 344 nm.
A telek teljes mérete: 1086 nm.
Ennél a beruházásnál most lehetősége van kompromisszumok nélkül egy olyan ingatlanba költözni, ahol Ön kiválaszthatja a hideg és meleg burkolatokat, szanitereket, valamint az egyéb kiegészítőket a családja legnagyobb megelégedésére, ez által személyre szabva álmai otthonát.
Akár két gépjármű beállási lehetőségével a térkövezett gépjármű beállón lehet biztonságosan parkolni.
Várható átadás 2025. III. Negyedév
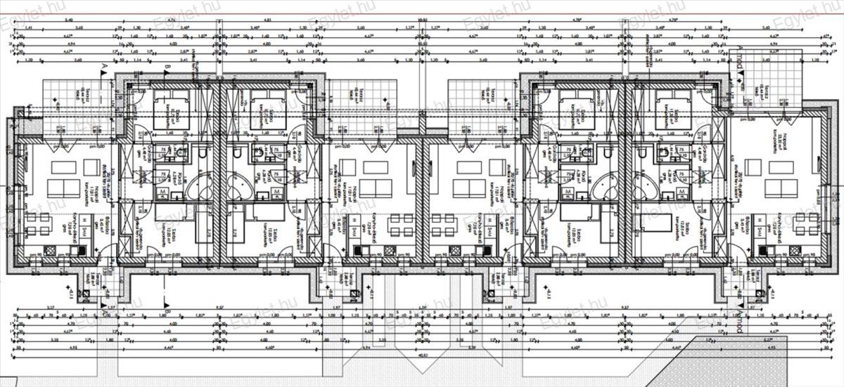
Összesen négy lakás található ebben a sorházban 61-80 nm közötti méretben, valamint 180-344 nm privát telek méretekkel.
A fotók látványterveket tartalmaznak.
Igénybe vehető lehetséges kedvezmények:
- CSOK
- 5% Áfa visszatérítés
- Babaváró hitel
- Illeték kedvezmény vagy mentesség
Helyiség lista:
- Előtér
- WC
- Fürdőszoba
- Szoba
- Szoba
- Szoba
- Amerikai konyha
- Étkező
- Nappali
- Terasz (hátsó)
- Terasz (első)
Az ingatlan biztonságos környezetben, sorompóval elzárt és porta szolgálattal rendelkező lakóparkban helyezkedik el, Gyömrő egyik legnyugodtabb részén. a környék fejlett infrastruktúrájának köszönhetően bővelkedik a szociális intézményekben, bölcsőde, óvoda, általános iskola, orvosi intézmények, bevásárlási lehetőségek, találhatóak a közelben.
Hitel, CSOK igénylésben díjmentes ügyintézéssel állunk rendelkezésére!
Várom megtisztelő érdeklődésüket. FIX 3% lakáshitelre megvehető


