Eladó új építésű ház - Hajdúsámson
- INGYENES HIRDETÉS FELADÁS
Ingatlan adatai
- Eladó vagy kiadó:Eladó
- Település:Hajdúsámson
- Kategória:Ház
- Alkategória:Sorház
- Alapterület:90 m2
- Telekterület:299 m2
- Csere is:Nem
- Hirdető:Cég
- Élő videón megtekinthető:Nem
- Építés éve:2026
- Szobaszám:3
- Állapot:Új építésű
- Hány szintes az ingatlan:nincs megadva
- Tetőtér:nincs megadva
- Komfortosság:nincs megadva
- Pince:nincs megadva
- Parkolási lehetőség:nincs megadva
- Fűtés:Gáz (cirko)
- Bútorozottság:nincs megadva
- Fényviszony:nincs megadva
- Tájolás:NY
- Kilátás:nincs megadva
- Internet:nincs megadva
- Klíma:nincs megadva
- Akadálymentesített:nincs megadva
- Energiatanúsítvány:nincs megadva
- Villany:Van
- Víz:Van
- Gáz:Van
- Csatorna:Van
- Kapcsolatfelvétel

Koroknainé Erzsébet
+36-(70)-461-9356
Mondd meg a hirdetőnek, hogy a megveszLAK-on találtad a hirdetést.
Hitel ajánlatok
Ingatlan hirdetés leírása
Debrecen vonzáskörzetében, Hajdúsámson központjának közelében ...
Debrecen vonzáskörzetében, Hajdúsámson központjának közelében új építésű
sorházak épülnek.
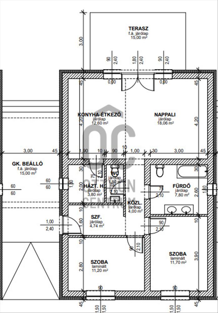
Az épület nettó 75 nm alapterületű, nappali+ 2 hálószoba.
A kiváló tervevezésnek köszönhetően a lakóegységek egy fedett gépkocsi beállóval érintkeznek,
így a lakótereknek nincs közös fala. Minden ingatlanhoz önálló utcafronttal rendelkező,
lekeríthető telekrész tartozik.
Főbb jellemzők:
- porotherm 30-as tégla falazat
- 15 cm homlokzati hőszigetelés
- cserép tetőhéjazat
- 3 rétegű üvegezésű műanyag ablakok
- gáz cirkó fűtés, padlófűtésen keresztül
- 2 db hűtő-fűtő klíma
- választható burkolatok és szaniterek
A műszaki tartalom irodánkban rendelkezésre áll.
Hitel, támogatott hitel igénybe vehető. FIX 3% lakáshitelre megvehető
Tetszett ez az eladó Hajdúsámsoni új építésű 3 szobás sorház? Hívd fel a hirdetőt most, és tudj meg mindent erről az eladó sorházról! Ha gondolod nézelődj tovább az eladó ház Hajdúsámson oldal hirdetései között. Ennek az eladó háznak az ára 58000000 Ft és mivel az alapterülete 90 négyzetméter, ezért az átlagos négyzetméterára 644444 HUF/m2.
Az eladó házak menüpontban további hirdetések között is böngészhetsz. Ha van kedved, akkor böngészhetsz a Koroknainé Erzsébet összes hirdetése között, vagy akár a/az Otthon Centrum Debrecen - Hatvan utca összes hirdetése között is.

