Eladó jó állapotú ház - Keszthely
- INGYENES HIRDETÉS FELADÁS
Ingatlan adatai
- Eladó vagy kiadó:Eladó
- Település:Keszthely
- Kategória:Ház
- Alkategória:Sorház
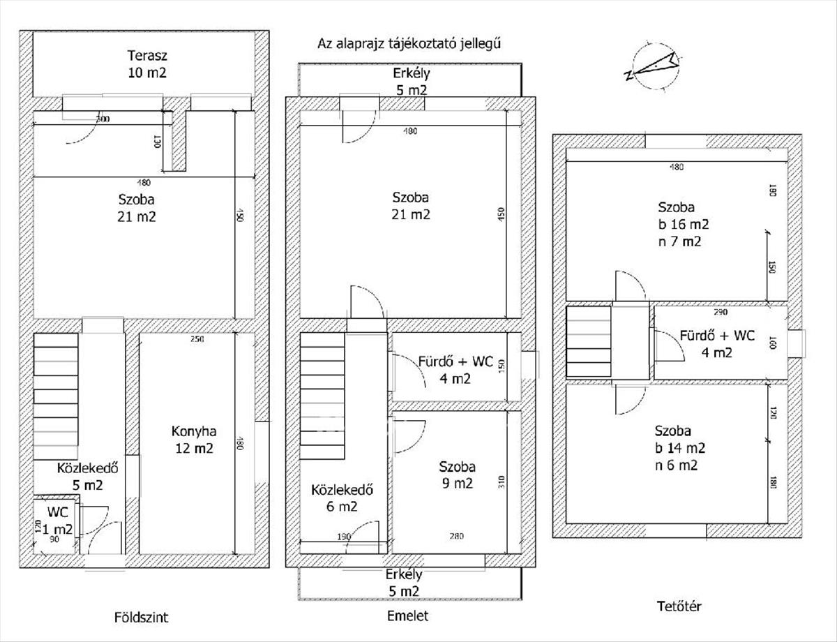
- Alapterület:96 m2
- Telekterület:300 m2
- Csere is:Nem
- Hirdető:Cég
- Élő videón megtekinthető:Nem
- Építés éve:1980
- Szobaszám:2 + 3 fél
- Állapot:Jó állapotú
- Hány szintes az ingatlan:3 szintes
- Tetőtér:nincs megadva
- Komfortosság:nincs megadva
- Pince:nincs megadva
- Parkolási lehetőség:Beállóban
- Fűtés:Vegyes tüzelésű kazán
- Bútorozottság:nincs megadva
- Fényviszony:nincs megadva
- Tájolás:nincs megadva
- Kilátás:nincs megadva
- Internet:nincs megadva
- Klíma:nincs megadva
- Akadálymentesített:nincs megadva
- Energiatanúsítvány:nincs megadva
- Villany:Telken belül
- Víz:Telken belül
- Gáz:Nincs
- Csatorna:Telken belül
- Kapcsolatfelvétel

Hitel ajánlatok
Ingatlan hirdetés leírása
Eladó felújított sorházi lakás Keszthely üdülőövezetében, a Ba...
Eladó felújított sorházi lakás Keszthely üdülőövezetében, a Balaton közelében
Keszthely egyik kedvelt üdülőövezetében eladó egy hangulatos, 96 m2-es háromszintes sorházi lakás, amely az 1980-as években épült, de az elmúlt években teljes körű felújításon esett át. Az épület téglafalai 10 cm vastag hőszigetelést kaptak, a tetőfedés korszerű cserepeslemezre lett cserélve. a modernizálás részeként minden nyílászáró új, háromrétegű üvegezésű ablakra lett cserélve, továbbá megújult a villamos és fűtésrendszer is.
A ház fűtését fatüzelésű kályha és egy 800 literes puffertartály biztosítja, amely a radiátoros rendszeren keresztül oszlatja el a meleget.
A lakáshoz egy tágas terasz, valamint gondozott, hangulatos, 300 m2-es kertrész tartozik, kerti sütögetővel és tárolóval. Az udvaron két autó számára kialakított kocsibeálló áll rendelkezésre.
Az ingatlan elhelyezkedése ideális: a Balaton partja néhány száz méterre található, a legközelebbi strandok gyalogosan mindössze 10-15 perc alatt megközelíthetők. a környék csendes, mégis közel van a város szolgáltatásaihoz és a tóparti kikapcsolódási lehetőségekhez.
Amennyiben felkeltette érdeklődését és szeretné megtekinteni személyesen is az ingatlant kérem hívjon! FIX 3% lakáshitelre megvehető
Tetszett ez az eladó Keszthelyi jó állapotú 2 egész és 3 fél szobás sorház? Hívd fel a hirdetőt most, és tudj meg mindent erről az eladó sorházról! Ha gondolod nézelődj tovább az eladó ház Keszthely oldal hirdetései között. Ennek az eladó háznak az ára 138000000 Ft és mivel az alapterülete 96 négyzetméter, ezért az átlagos négyzetméterára 1437500 HUF/m2.
Az eladó házak menüpontban további hirdetések között is böngészhetsz. Ha van kedved, akkor böngészhetsz a Boja Péter összes hirdetése között, vagy akár a/az Tapolca Batsányi utca 1 - OTP Ingatlanpont Iroda összes hirdetése között is.
További hirdetéseket találsz az eladó Balaton északi parti nyaralók között. Ha a teljes régió kínálata érdekel, nézd meg az eladó Balatoni nyaralók oldalt.

