Eladó jó állapotú ház - Szentendre
- INGYENES HIRDETÉS FELADÁS
Ingatlan adatai
- Eladó vagy kiadó:Eladó
- Település:Szentendre
- Kategória:Ház
- Alkategória:Sorház
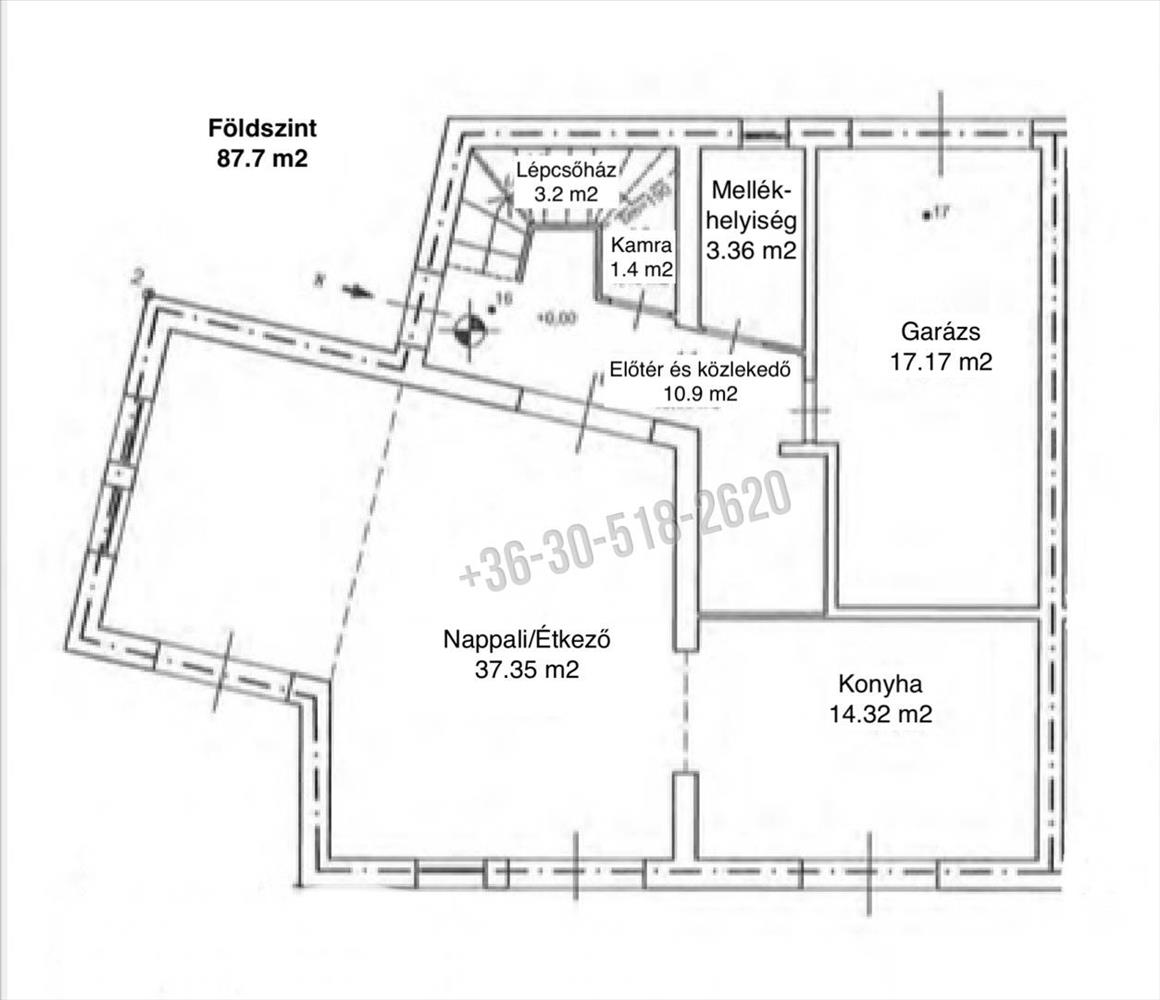
- Alapterület:213 m2
- Telekterület:344 m2
- Csere is:Nem
- Hirdető:Cég
- Élő videón megtekinthető:Nem
- Építés éve:2002
- Szobaszám:5
- Állapot:Jó állapotú
- Hány szintes az ingatlan:nincs megadva
- Tetőtér:nincs megadva
- Komfortosság:Dupla komfortos
- Pince:Nincs
- Parkolási lehetőség:Nincs
- Fűtés:nincs megadva
- Bútorozottság:nincs megadva
- Fényviszony:nincs megadva
- Tájolás:nincs megadva
- Kilátás:nincs megadva
- Internet:nincs megadva
- Klíma:nincs megadva
- Akadálymentesített:nincs megadva
- Energiatanúsítvány:nincs megadva
- Villany:Van
- Víz:Van
- Gáz:Van
- Csatorna:Van
- Kapcsolatfelvétel

Erdősi Tamás
+36-(30)-518-2620
Mondd meg a hirdetőnek, hogy a megveszLAK-on találtad a hirdetést.
Hitel ajánlatok
Ingatlan hirdetés leírása
Eladó Sorház, Szentendre, Nincs megadva, Sztaravodai utca, 21...
Szentendre egyik legkedveltebb, csendesebb, mégis kiválóan megközelíthető részén, a Sztaravodai út mentén, egy zárt, prémium lakóparkban kínálok megvételre egy különleges hangulatú, szélső elhelyezkedésű sorházi otthont, amely tökéletes egyensúlyt teremt a nyugodt, kertvárosi életérzés és a város közelsége között.
Az ingatlan már az érkezés pillanatában is exkluzív benyomást kelt: az elektromos kapuval védett lakópark rendezett, igényes környezete, valamint a ház privát, intim kertkapcsolata valódi biztonságot és nyugalmat sugároz. a 344 m²-es saját telekrész ideális méretű ahhoz, hogy kényelmes kültéri életteret biztosítson, miközben könnyen fenntartható marad.
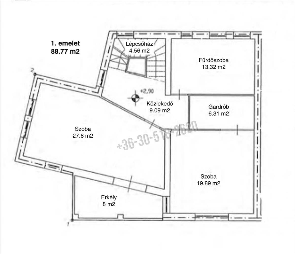
A három szinten elhelyezkedő, közel 214 m²-es lakótér rendkívül átgondolt kialakítású. a földszinten található tágas nappali, étkező és konyha egy légtérben helyezkedik el, amely világos, barátságos központi életteret teremt, tökéletes mind a mindennapi élethez, mind a vendégek fogadásához. Az emeleti és tetőtéri szinteken kialakított hálószobák kényelmes életteret biztosítanak akár nagyobb család számára is, a jelenlegi négy hálószoba mellett további egy szoba is könnyedén kialakítható. a beépített konyhabútor, a praktikus tárolóhelyiségek, valamint a két fürdőszoba és külön mellékhelyiség mind a funkcionalitást erősítik.
Az otthon műszaki tartalma és felszereltsége is a komfortot szolgálja: gázkazán által működtetett központi fűtés padlófűtéssel és radiátorokkal, hűtő/fűtő klímák, hőszigetelt fa nyílászárók redőnyökkel, riasztórendszer, valamint elektromos garázskapu teszik teljessé a mindennapi kényelmet. Az ingatlan 2002-ben épült, de csak 2013-ban költöztek be az első lakói.
A lakópark zárt jellege, az alacsony közös költség, valamint a rendezett környezet egyaránt hozzájárulnak ahhoz, hogy ez az ingatlan valódi prémium életminőséget kínáljon. Elhelyezkedése ideális: Szentendre hangulatos belvárosa könnyen elérhető, miközben a környezet csendes, nyugodt és zöldövezeti. a zárt garázs mellett további kizárólagos parkolók állnak rendelkezésre.
Ez az ingatlan kiváló választás mindazok számára, akik kompromisszumok nélkül keresnek tágas, elegáns és azonnal költözhető otthont egy exkluzív lakókörnyezetben.
Az ingatlan tehermentes, vételára: 219. 990. 000 Ft. Hitel.hu - Hasonlítsa össze a bankok lakáshitel ajánlatait
Tetszett ez az eladó Szentendrei jó állapotú 5 szobás sorház? Hívd fel a hirdetőt most, és tudj meg mindent erről az eladó sorházról! Ha gondolod nézelődj tovább az eladó ház Szentendre oldal hirdetései között. Ennek az eladó háznak az ára 219990000 Ft és mivel az alapterülete 213 négyzetméter, ezért az átlagos négyzetméterára 1032817 HUF/m2.
Az eladó házak menüpontban további hirdetések között is böngészhetsz. Ha van kedved, akkor böngészhetsz a Erdősi Tamás összes hirdetése között, vagy akár a/az RDS Ingatlaniroda összes hirdetése között is.

