Eladó újszerű állapotú tanya - Alsónémedi
- INGYENES HIRDETÉS FELADÁS
Ingatlan adatai
- Feladva:62 napja a megveszLAK-on
- Eladó vagy kiadó:Eladó
- Település:Alsónémedi
- Kategória:Mezőgazdasági ingatlan
- Alkategória:Tanya
- Alapterület:82 m2
- Telekterület:8146 m2
- Csere is:Nem
- Hirdető:Cég
- Élő videón megtekinthető:Nem
- Fűtés:Gáz (konvektor)
- Bútorozottság:nincs megadva
- Fényviszony:nincs megadva
- Tájolás:nincs megadva
- Internet:nincs megadva
- Klíma:nincs megadva
- Akadálymentesített:nincs megadva
- Energiatanúsítvány:nincs megadva
- Villany:Nincs
- Víz:Nincs
- Gáz:Nincs
- Csatorna:Nincs
- Kapcsolatfelvétel

Madaras Dóra
+36-(30)-498-8743
Mondd meg a hirdetőnek, hogy a megveszLAK-on találtad a hirdetést.
Hitel ajánlatok
Ingatlan hirdetés leírása
Eladó Tanya, Alsónémedi, Nincs megadva, 82nm, 139900000 Ft
Elhagynád a várost mert csalogat a vidéki élet, állatokat tartanál? Mit szólnál egy olyan tanyához ami Budapest határában lehet a tiéd?
Eladóvá vált ez a gyönyörűen tartott porta, kedves kis téglaházzal(tetőtér is beépíthető! ), Istállóval, ólakkal ès szántóval!
Alsónémedi és Soroksár határában abszolút szomszéd mentesen még is közel mindenhez! (Soroksár 1km, Alsónémedi 1km, az M0-ás percek alatt elérhető! )
A tanyán nem kell a rezsi miatt fájjon a fejed ugyan is teljesen önellátó - kiépített napelemrendszer szolgáltatja az áramot(12 kw - akkumulátor házzal)a fúrt kút pedig a vízellátásról gondoskodik! Az otthon melegét vegyes tüzelésű kazán biztosítja! Tv, internet pedig parabolás rendszerrel megoldott!
A bekötő út 800méter, a villany behozatala megoldható!
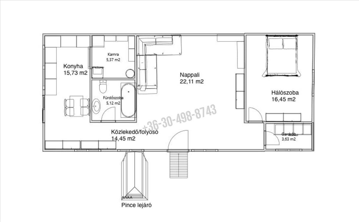
A ház 1992-ben épült, masszív téglaépület melyet jelenlegi tulajdonosai mindenre kiterjedően csodásan felújítottak! (A képek magukért beszélnek)Kialakításra került egy nagyméretű hálószoba, gardrób, 22 m2-es nappali, kádas fürdőszoba, konyha ahol árad be a fény és egy kamra! Lakótér területe:82, 86 m2!
A tetőtér beépítéséhez szükséges munkák is megkezdődtek így az új tulajdonos két szintes otthont is varázsolhat belőle könnyedén ha nagyobb élettérre volna szükség!
Az épület szinte egésze alatt pince található amely nem ázik nem nedvesedik, tökéletes állapotnak örvend!
A birtokon található még csirkeól, kinti wc, tároló, füstölő! (Ezeket jelenleg is használják)Tégla építésű!
(A ház és a további épületek összesen 2643 m2-en terülnek el, minden egység bejegyzett a térképmásolaton! )
Valamint a lótartás szerelmeseinek is kedvez a birtok ugyan is egy külső karám és egy szintén masszív tégla építésű istàlló is rendelkezèsre àll (~120 m2 )mely jelenleg 4boxos de akár 8ra is bővíthető illetve egy szolgálati kis lakás(26 m2), 2 szobás, zuhanyzós fürdővel! Az istálló tetőtere, járható, pakolható! Továbbá fedett garázs is egy gépkocsi számára!
A szántó felé haladva(5503 m2)még egy tekintélyes méretű disznóól is található, így elmondható hogy minden adott hogy valaki gazdálkodni kezdhessen!
A tanyához tartozó szántó - Ak 8, 63 - mely elkeríthető! a jelenlegi tulajdonos a vételár részeként további föld területet is ad (másik hrsz - 1174 m2)illetve amennyiben igény van rá további 10hektár föld bérelhető!
Kell ennél több egy jól menő gazdasághoz, lovardàhoz?
Magyar Tanyafejlesztési Programra alkalmas!
Ha Budapest kényelme de a vidéki élet bája vonz akkor ez lehet a tökéletes választás!
(Megbeszélés alapján akár teljes bútorzattal)
Kifüggesztés szükséges!
Érdekelne ez a szuper ajánlat? Keress fel bátran elérhetőségeim egyikén hogy körbevezethesselek ezen a mesés tanyán! Hitel.hu - Hasonlítsa össze a bankok lakáshitel ajánlatait
Tetszett ez az eladó Alsónémedi újszerű állapotú mezőgazdasági ingatlan? Hívd fel a hirdetőt most, és tudj meg mindent erről az eladó mezőgazdasági ingatlanról! Ha gondolod nézelődj tovább az eladó mezőgazdasági ingatlan Alsónémedi oldal hirdetései között.
Az eladó mezőgazdasági ingatlanok menüpontban további hirdetések között is böngészhetsz. Ha van kedved, akkor böngészhetsz a Madaras Dóra összes hirdetése között, vagy akár a/az CLD Home Invest Kft. összes hirdetése között is.

