Eladó új építésű lakás - Budapest IV. kerület
- INGYENES HIRDETÉS FELADÁS
Ingatlan adatai
- Eladó vagy kiadó:Eladó
- Település:Budapest IV. kerület
- Kategória:Lakás
- Alkategória:Tégla
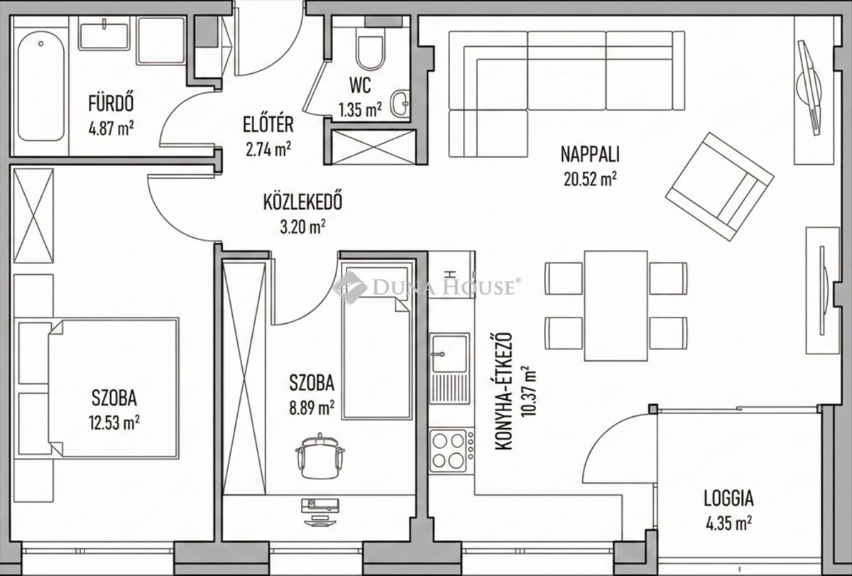
- Alapterület:63 m2
- Csere is:Nem
- Hirdető:Cég
- Élő videón megtekinthető:Nem
- Szobaszám:3
- Állapot:Új építésű
- Hány szintes az ingatlan:Földszintes
- Komfortosság:nincs megadva
- Hányadik emeleti:1
- Erkély:nincs megadva
- Lift:Van
- Parkolási lehetőség:nincs megadva
- Fűtés:Egyéb
- Bútorozottság:nincs megadva
- Fényviszony:Napfényes
- Tájolás:DNY
- Kilátás:nincs megadva
- Internet:nincs megadva
- Klíma:nincs megadva
- Akadálymentesített:nincs megadva
- Energiatanúsítvány:A+
- Villany:Van
- Víz:Van
- Gáz:nincs megadva
- Csatorna:Van
- Kapcsolatfelvétel

Józsa Tamás
+36-(30)-221-2349
Mondd meg a hirdetőnek, hogy a megveszLAK-on találtad a hirdetést.
Referencia szám: LK030422
Hitel ajánlatok
Ingatlan hirdetés leírása
Eladó lakás, Budapest 4. ker.
Új építésű, háromszobás, mennyezeti hűtés-fűtéses lakás Újpesten modern otthon a természetvédelmi terület határánEladó egy nappali-konyha + 2 hálószobás, első emeleti, korszerű kialakítású lakás a IV. kerületben a város szélén csendes ősfás környezetben. Letisztult terek, energiatakarékos mennyezeti hűtés-fűtés rendszer, praktikus elrendezés ideális választás saját otthonnak és befektetésnek is. a lakásról:Az 1. emeleten található, átgondolt alaprajzú ingatlan kényelmes életteret biztosít akár családok, akár párok számára. Főbb jellemzők:Nappali-konyha + 2 külön nyíló hálószoba1 db fürdőszoba1 db külön WCMennyezeti hűtés-fűtés rendszerModern, korszerű műszaki megoldásokElső emeleti elhelyezkedésA nappali és a konyha egy légtérben kapott helyet, így világos, közösségi tér jött létre, ahol a családi és baráti együttlétek természetes központja alakul ki. a két külön hálószoba biztosítja az intimitást és a nyugodt pihenést. a mennyezeti hűtés-fűtés nemcsak energiatakarékos, hanem esztétikus megoldás is nincs radiátor, nincs klímaberendezés a falon, csak tiszta, letisztult enteriőr és kellemes hőérzet egész évben. Opcionális lehetőségek:Teremgarázshely vásárolhatóTároló vásárolhatóA parkolás és a tárolás kérdése így hosszú távon is megnyugtatóan rendezhető. a környékről Újpest, SzékesdűlőA IV. kerület folyamatosan fejlődő, egyre keresettebb része. Rendezett lakókörnyezet, jó infrastruktúra és kiváló közlekedés jellemzi. Közlekedés és infrastruktúra:M3 metró 10 perc alatt tömegközlekedéssel elérhetőMinden adott a kényelmes, modern városi élethez. Az életérzés:Letisztult, modern otthon, ahol a funkcionalitás és a komfort találkozik. Kényelmes reggelek a világos nappaliban, nyugodt esték a saját hálószobában. Biztonságos, jól megközelíthető környezet, ahol jó hazaérkezni. Ez nem csupán egy lakás ez egy tudatos döntés a minőség mellett. Kinek ideális? CsaládoknakFiatal pároknakBefektetőknek kiadási céllalAzoknak, akik modern gépészetű, fenntartható otthont keresnekEgy jól megválasztott lakás értékálló döntés. Ne maradjon le róla. Várom hívását a megtekintéshez! FIX 3% lakáshitelre megvehető
Tetszett ez az eladó Budapest IV. kerületi új építésű 3 szobás tégla lakás? Hívd fel a hirdetőt most, és tudj meg mindent erről az eladó tégla lakásról! Ha gondolod nézelődj tovább az eladó lakás Budapest IV. kerület oldal hirdetései között. Ennek az eladó lakásnak az ára 93700000 Ft és mivel az alapterülete 63 négyzetméter, ezért az átlagos négyzetméterára 1487302 HUF/m2.
Az eladó lakások menüpontban további hirdetések között is böngészhetsz. Az összes eladó budapesti lakás hirdetést tartalmazó oldalon tudsz böngészni. Ha van kedved, akkor böngészhetsz a Józsa Tamás összes hirdetése között, vagy akár a/az Duna House Szent István tér összes hirdetése között is.

