Eladó újszerű állapotú lakás - Budapest VI. kerület
- INGYENES HIRDETÉS FELADÁS
Ingatlan adatai
- Eladó vagy kiadó:Eladó
- Település:Budapest VI. kerület
- Kategória:Lakás
- Alkategória:Tégla
- Alapterület:28 m2
- Csere is:Nem
- Hirdető:Cég
- Élő videón megtekinthető:Nem
- Szobaszám:2
- Állapot:Újszerű, kitűnő
- Hány szintes az ingatlan:Földszintes
- Komfortosság:nincs megadva
- Hányadik emeleti:Félemelet
- Erkély:nincs megadva
- Lift:Van
- Parkolási lehetőség:nincs megadva
- Fűtés:Elektromos
- Bútorozottság:nincs megadva
- Fényviszony:Jó
- Tájolás:nincs megadva
- Kilátás:nincs megadva
- Internet:nincs megadva
- Klíma:nincs megadva
- Akadálymentesített:nincs megadva
- Energiatanúsítvány:nincs megadva
- Villany:Van
- Víz:Van
- Gáz:nincs megadva
- Csatorna:Van
- Közös költség:8 000 Ft
- Kapcsolatfelvétel

Hitel ajánlatok
Ingatlan hirdetés leírása
Eladó Lakás, Budapest 6. ker.
Budapest 6. kerületében pár lépésre a Teréz körúttól az Eötvös utcában, egy kívül-belül szép társasház magasföldszintjén található, osztatlan közös tulajdonú, ügyvédi használati megosztással 4 db. Egymástól külön elválasztott, teljeskörűen felújított, bútorozott és gépesített apartman.
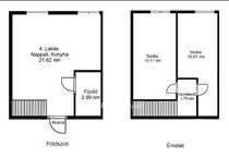
3. Lakás
A hirdetésben szereplő, 1-es lakás elosztását tekintve, 28, 57 nm hasznos alapterületű, nappali + 2 hálós, duplakomfortos
A fenti szinteken 191-193 cm belmagasság.
Minden lakáshoz külön villany illetve vízóra tartozik!
Fűtésről bvf elektromos padlófűtés, hűtésről pedig inverteres klímák gondoskodnak.
1-Es lakás: 50, 45 nm / nappali + 2 háló, 6 fő férőhely, 64. 9 Millió ft
2-es lakás: 44, 59 nm / nappali +2 háló, 6 fő férőhely, 62. 5 Millió ft ELADVA!
3-As lakás: 28, 57 nm / nappali + 1 háló, 4 fő férőhely 52. 5 Millió ft
4-es lakás: 46, 86 nm / nappali + 2 háló, 6 fő férőhely ELADVA!
Közös előtér: 7, 78 nm .
Ha hirdetésünk felkeltette érdeklődését, kérem hívjon bizalommal a hét bármely napján! Teljes körű ügyintézéssel állunk az eladók és vevőink rendelkezésére!
Az adásvételi szerződés megkötéséhez igény szerint megbízható ügyvédi közreműködést biztosítunk, és segítséget nyújtunk az adásvételhez kapcsolódó ügyek intézéséhez.
Referencia szám: m317708 Hitel.hu - Hasonlítsa össze a bankok lakáshitel ajánlatait
Tetszett ez az eladó Budapest VI. kerületi újszerű állapotú 2 szobás tégla lakás? Hívd fel a hirdetőt most, és tudj meg mindent erről az eladó tégla lakásról! Ha gondolod nézelődj tovább az eladó lakás Budapest VI. kerület oldal hirdetései között. Ennek az eladó lakásnak az ára 52500000 Ft és mivel az alapterülete 28 négyzetméter, ezért az átlagos négyzetméterára 1875000 HUF/m2.
Az eladó lakások menüpontban további hirdetések között is böngészhetsz. Az összes eladó budapesti lakás hirdetést tartalmazó oldalon tudsz böngészni. Ha van kedved, akkor böngészhetsz a Megyesi Gabriella összes hirdetése között, vagy akár a/az OTPip Budapest XIV. kerület Vezér utca 147 - OTP Ingatlanpont Iroda összes hirdetése között is.

