Eladó jó állapotú lakás - Budapest VI. kerület
- INGYENES HIRDETÉS FELADÁS
Ingatlan adatai
- Eladó vagy kiadó:Eladó
- Település:Budapest VI. kerület
- Kategória:Lakás
- Alkategória:Tégla
- Alapterület:88 m2
- Csere is:Nem
- Hirdető:Cég
- Élő videón megtekinthető:Nem
- Szobaszám:5
- Állapot:Jó állapotú
- Hány szintes az ingatlan:Földszintes
- Komfortosság:nincs megadva
- Hányadik emeleti:1
- Erkély:nincs megadva
- Lift:Nincs
- Parkolási lehetőség:nincs megadva
- Fűtés:Elektromos
- Bútorozottság:nincs megadva
- Fényviszony:Jó
- Tájolás:NY
- Kilátás:nincs megadva
- Internet:nincs megadva
- Klíma:nincs megadva
- Akadálymentesített:nincs megadva
- Energiatanúsítvány:E
- Villany:Van
- Víz:Van
- Gáz:nincs megadva
- Csatorna:Van
- Közös költség:42 000 Ft
- Kapcsolatfelvétel

Hitel ajánlatok
Ingatlan hirdetés leírása
Eladó Lakás, Budapest 6. ker.
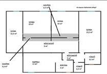
Eladó a VI. kerület frekventált, de csendes részén, a Szondi utcában egy 88 nm -es, első emeleti, kiváló adottságokkal rendelkező polgári lakás. Az ingatlan tehermentes és azonnal birtokba vehető, és azonnal költözhető.
Nappali+ 4 szoba, duplakomfortos!
Főbb paraméterek:
- Alapterület: 88 nm
- Elosztás: Tágas nappali + 4 külön nyíló szoba + ablakos konyha.
- Fürdőszobák: 2 teljes értékű fürdőszoba (kiváló nagycsaládoknak vagy kiadásra).
- Emelet: 1. emelet (kényelmesen megközelíthető).
- Épület: a társasház rendezett, a szomszédság csendes és kulturált. a lakásba a nyüzsgő belvárosi alapzaj egyáltalán nem szűrődik be
- a közlekedés kiváló, hiszen az Oktogon és a Nyugati Pályaudvar gyalogtávolságon belül megtalálható.
Alkalmas mind lakást keresőknek, mind befektetőknek.
Referencia szám: m323236-ml Hitel.hu - Hasonlítsa össze a bankok lakáshitel ajánlatait
Tetszett ez az eladó Budapest VI. kerületi jó állapotú 5 szobás tégla lakás? Hívd fel a hirdetőt most, és tudj meg mindent erről az eladó tégla lakásról! Ha gondolod nézelődj tovább az eladó lakás Budapest VI. kerület oldal hirdetései között. Ennek az eladó lakásnak az ára 135000000 Ft és mivel az alapterülete 88 négyzetméter, ezért az átlagos négyzetméterára 1534091 HUF/m2.
Az eladó lakások menüpontban további hirdetések között is böngészhetsz. Az összes eladó budapesti lakás hirdetést tartalmazó oldalon tudsz böngészni. Ha van kedved, akkor böngészhetsz a Tímár Bendegúz összes hirdetése között, vagy akár a/az OTPip Budapest I. kerület Krisztina körút 32 - OTP Ingatlanpont Iroda összes hirdetése között is.

