Eladó újszerű állapotú lakás Budapest VI. kerület
| Kedvencbe | Megosztás | Árfigyelő |
| Kedvezményes lakáshitel ajánlatok | ||
| 52 500 000 HUF | ||
Ingatlan adatai
- Eladó vagy kiadó:Eladó
- Település:Budapest VI. kerület
- Kategória:Lakás
- Alkategória:Tégla
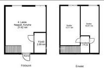
- Alapterület:28 m2
- Csere is:Nem
- Hirdető:Cég
- Élő videón megtekinthető:Nem
- Szobaszám:2
- Állapot:Újszerű, kitűnő
- Hány szintes az ingatlan:Földszintes
- Komfortosság:nincs megadva
- Hányadik emeleti:Félemelet
- Lift:Van
- Parkolási lehetőség:nincs megadva
- Fűtés:Elektromos
- Bútorozottság:nincs megadva
- Fényviszony:Jó
- Tájolás:nincs megadva
- Kilátás:nincs megadva
- Internet:nincs megadva
- Akadálymentesített:nincs megadva
- Energiatanúsítvány:nincs megadva
- Villany:Van
- Víz:Van
- Gáz:nincs megadva
- Csatorna:Van
- Közös költség:8 000 Ft
- Üzenetküldés
- Hívás

Farkasné Hernádi Ágnes
Mondd meg a hirdetőnek, hogy a megveszLAK-on találtad a hirdetést.
Referencia szám: M317708

Hitel ajánlat
Ingatlan hirdetés leírása
Eladó Lakás, Budapest 6. ker.
Budapest 6. kerületében pár lépésre a Teréz körúttól az Eötvös utcában, egy kívül-belül szép társasház magasföldszintjén található, osztatlan közös tulajdonú, ügyvédi használati megosztással 4 db. Egymástól külön elválasztott, teljeskörűen felújított, bútorozott és gépesített apartman.3. Lakás
A hirdetésben szereplő, 1-es lakás elosztását tekintve, 28, 57 nm hasznos alapterületű, nappali + 2 hálós, duplakomfortos
A fenti szinteken 191-193 cm belmagasság.
Minden lakáshoz külön villany illetve vízóra tartozik!
Fűtésről bvf elektromos padlófűtés, hűtésről pedig inverteres klímák gondoskodnak.
1-Es lakás: 50, 45 nm / nappali + 2 háló, 6 fő férőhely, 64. 9 Millió ft
2-es lakás: 44, 59 nm/ nappali +2 háló, 6 fő férőhely, 62. 5 Millió ft ELADVA!
3-As lakás: 28, 57 nm/ nappali + 1 háló, 4 fő férőhely 52. 5 Millió ft
4-es lakás: 46, 86 nm/ nappali + 2 háló, 6 fő férőhely ELADVA!
Közös előtér: 7, 78 nm.
Ha hirdetésünk felkeltette érdeklődését, kérem hívjon bizalommal a hét bármely napján! Teljes körű ügyintézéssel állunk az eladók és vevőink rendelkezésére!
Az adásvételi szerződés megkötéséhez igény szerint megbízható ügyvédi közreműködést biztosítunk, és segítséget nyújtunk az adásvételhez kapcsolódó ügyek intézéséhez. M317708
Referencia szám: m317708 Hitel.hu - Hasonlítsa össze a bankok lakáshitel ajánlatait

