Eladó újszerű állapotú lakás Budapest VI. kerület
| Kedvencbe | Megosztás | Árfigyelő |
| Kedvezményes lakáshitel ajánlatok | ||
| 278 000 000 HUF | ||
Ingatlan adatai
- Eladó vagy kiadó:Eladó
- Település:Budapest VI. kerület
- Kategória:Lakás
- Alkategória:Tégla
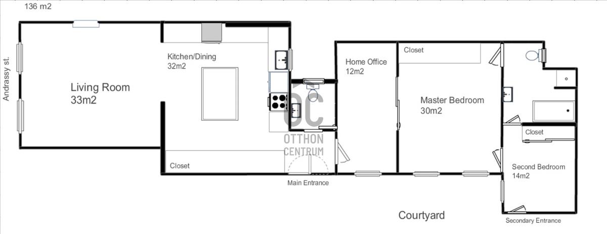
- Alapterület:136 m2
- Csere is:Nem
- Hirdető:Cég
- Élő videón megtekinthető:Nem
- Szobaszám:4
- Állapot:Újszerű, kitűnő
- Hány szintes az ingatlan:nincs megadva
- Komfortosság:nincs megadva
- Hányadik emeleti:nincs megadva
- Lift:Van
- Parkolási lehetőség:nincs megadva
- Fűtés:Gáz (cirko)
- Bútorozottság:nincs megadva
- Fényviszony:nincs megadva
- Tájolás:ÉNY
- Kilátás:Utcai
- Internet:nincs megadva
- Akadálymentesített:nincs megadva
- Energiatanúsítvány:nincs megadva
- Villany:Van
- Víz:Van
- Gáz:Van
- Csatorna:Van
- Üzenetküldés
- Hívás


Hitel ajánlat
Ingatlan hirdetés leírása
Európa egyik legszebb sugárútja, a kontinens első föld alatti ...
Európa egyik legszebb sugárútja, a kontinens első föld alatti vasútja, az Operaház, színházak, kávézók, luxusüzletek, múzeumok, bérpaloták,alig több, mint 150 éve épült az Andrássy út és ma már a Világörökségünk része.
Itt épült a Mendl-bérpalota neoreneszánsz épülete is, csak egy sarokra az Operaháztól és az egykori Balettintézettől - ma már W Budapest luxushotel -,
Az épület felújított, liftes, udvarán restaurált, korabeli kútszoborral.
A lakás a II. emeleten van, nappalija az Andrássy útra néz,
ízlésesen felújított, 136 m2,
a tágas nappali - étkező - konyha a maga 65 m2 - vel központi része a lakásnak, családi-baráti-üzleti alkalmak méltó helyszíne,
3 szobája jelenleg háló és dolgozóként használt.
A lakás klimatizált, fűtése gáz cirkó.
Akár a történelmi, pesti belváros prémium részén képzeli el otthonát, akár befektetésként vásárolna, ajánlom figyelmébe ezt a kivételes adottságú, Andrássy úti lakást. Hitel.hu - Hasonlítsa össze a bankok lakáshitel ajánlatait

