Eladó jó állapotú lakás - Budapest VI. kerület
- INGYENES HIRDETÉS FELADÁS
Ingatlan adatai
- Eladó vagy kiadó:Eladó
- Település:Budapest VI. kerület
- Kategória:Lakás
- Alkategória:Tégla
- Alapterület:88 m2
- Csere is:Nem
- Hirdető:Cég
- Élő videón megtekinthető:Nem
- Szobaszám:5
- Állapot:Jó állapotú
- Hány szintes az ingatlan:Földszintes
- Komfortosság:nincs megadva
- Hányadik emeleti:1
- Erkély:nincs megadva
- Lift:Nincs
- Parkolási lehetőség:nincs megadva
- Fűtés:Elektromos
- Bútorozottság:nincs megadva
- Fényviszony:Jó
- Tájolás:nincs megadva
- Kilátás:nincs megadva
- Internet:nincs megadva
- Klíma:nincs megadva
- Akadálymentesített:nincs megadva
- Energiatanúsítvány:A
- Villany:Van
- Víz:Van
- Gáz:nincs megadva
- Csatorna:Van
- Közös költség:42 000 Ft
- Kapcsolatfelvétel

Török Tímea
+36-(70)-243-3934
Mondd meg a hirdetőnek, hogy a megveszLAK-on találtad a hirdetést.
Referencia szám: M323236
Hitel ajánlatok
Ingatlan hirdetés leírása
Eladó Lakás, Budapest 6. ker.
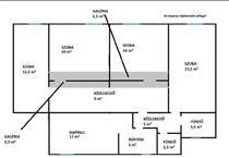
Eladó a VI. kerület frekventált, de csendes részén, a Szondi utcában egy 88 nm-es, első emeleti, kiváló adottságokkal rendelkező polgári lakás. Az ingatlan tehermentes és azonnal birtokba vehető, és azonnal költözhető.
Nappali+ 4 szoba, duplakomfortos!
Főbb paraméterek:
- Alapterület: 88 nm
- Elosztás: Tágas nappali + 4 külön nyíló szoba + ablakos konyha.
- Fürdőszobák: 2 teljes értékű fürdőszoba (kiváló nagycsaládoknak vagy kiadásra).
- Emelet: 1. emelet (kényelmesen megközelíthető).
- Épület: a társasház rendezett, a szomszédság csendes és kulturált. a lakásba a nyüzsgő belvárosi alapzaj egyáltalán nem szűrődik be
- a közlekedés kiváló, hiszen az Oktogon és a Nyugati Pályaudvar gyalogtávolságon belül megtalálható.
Alkalmas mind lakást keresőknek, mind befektetőknek.
135000000 Ft
Referencia szám: m323236 Hitel.hu - Hasonlítsa össze a bankok lakáshitel ajánlatait

