Eladó újszerű állapotú lakás - Budapest VII. kerület
- INGYENES HIRDETÉS FELADÁS
Ingatlan adatai
- Feladva:4 hónapja a megveszLAK-on
- Eladó vagy kiadó:Eladó
- Település:Budapest VII. kerület
- Kategória:Lakás
- Alkategória:Tégla
- Alapterület:135 m2
- Csere is:Nem
- Hirdető:Cég
- Élő videón megtekinthető:Nem
- Szobaszám:10
- Állapot:Újszerű, kitűnő
- Hány szintes az ingatlan:Földszintes
- Komfortosság:nincs megadva
- Hányadik emeleti:Földszint
- Erkély:nincs megadva
- Lift:Nincs
- Parkolási lehetőség:Utcán
- Fűtés:Elektromos
- Bútorozottság:nincs megadva
- Fényviszony:Jó
- Tájolás:ÉK
- Kilátás:nincs megadva
- Internet:nincs megadva
- Klíma:nincs megadva
- Akadálymentesített:nincs megadva
- Energiatanúsítvány:nincs megadva
- Villany:Van
- Víz:Van
- Gáz:nincs megadva
- Csatorna:Van
- Kapcsolatfelvétel

Takácsné Domján Adrienn
+36-(70)-307-7503
Mondd meg a hirdetőnek, hogy a megveszLAK-on találtad a hirdetést.
Referencia szám: LK064778
Hitel ajánlatok
Ingatlan hirdetés leírása
Eladó lakás, Budapest 7. ker.
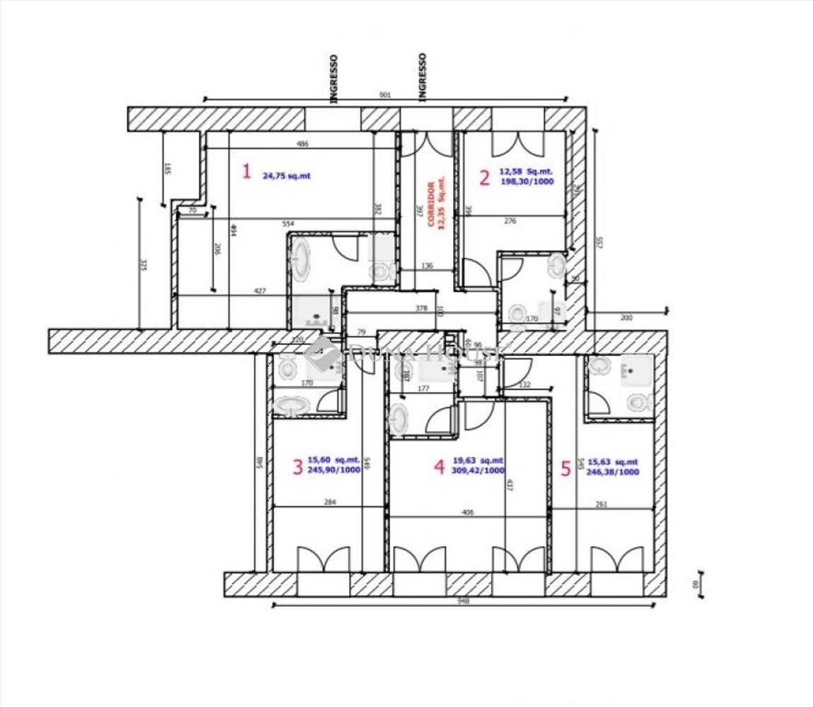
5 Minigarzon egyben is ELADÓ!
7. kerületben, Szinva utcában, rendezett társasház magasföldszintjén, 89 nm alapterület + 46 nm ,
5 külön lakóegységgé osztott ingatlan eladó. a felújítás még zajlik, de már rugalmasan megtekinthetőek. 2026 Márciusában költözhetőek. Minden lakás konyhával, nappalival, fürdőszobával és galériás hálószobával rendelkezik. 4. 2 M. Belmagasságával kényelmes otthont biztosít. Észak keleti fekvésű, külön villany és vízórával felszereltek. Az ár tartalmazza a beépített bútorokat.
A lakások külön is megvásárolhatóak ügyvédi megosztással:
1. Lakás: 24, 7 nm + 13, 1 nm galéria
2. Lakás: 12, 6 nm + 6, 7 nm galéria
3. Lakás: 16, 6 nm + 7, 8 nm galéria
4. Lakás: 19, 6 nm + 11, 3 nm galéria
5. Lakás: 15, 6 nm + 7, 2 nm galéria
További információkért, megtekintésre, hívjon bizalommal!
Hitellel vásárlás esetén bankfüggetlen és díjmentes hiteltanácsadó közreműködését biztosítjuk, aki a teljes folyamaton végigkíséri Önt.
Az adásvétel biztonságos és gördülékeny bonyolítása érdekében tapasztalt ingatlan szakjogászaink szolgáltatását is ajánlom.
Referencia szám: lk064778 Hitel.hu - Hasonlítsa össze a bankok lakáshitel ajánlatait
Tetszett ez az eladó Budapest VII. kerületi újszerű állapotú 10 szobás tégla lakás? Hívd fel a hirdetőt most, és tudj meg mindent erről az eladó tégla lakásról! Ha gondolod nézelődj tovább az eladó lakás Budapest VII. kerület oldal hirdetései között. Ennek az eladó lakásnak az ára 219900000 Ft és mivel az alapterülete 135 négyzetméter, ezért az átlagos négyzetméterára 1628889 HUF/m2.
Az eladó lakások menüpontban további hirdetések között is böngészhetsz. Az összes eladó budapesti lakás hirdetést tartalmazó oldalon tudsz böngészni. Ha van kedved, akkor böngészhetsz a Takácsné Domján Adrienn összes hirdetése között, vagy akár a/az Duna House Kispest összes hirdetése között is.

