Eladó újszerű állapotú lakás Budapest VIII. kerület
| Kedvencbe | Megosztás | Árfigyelő |
| FIX 3% lakáshitelre megvehető | ||
| 100 000 000 HUF | ||
Ingatlan adatai
- Eladó vagy kiadó:Eladó
- Település:Budapest VIII. kerület
- Kategória:Lakás
- Alkategória:Tégla
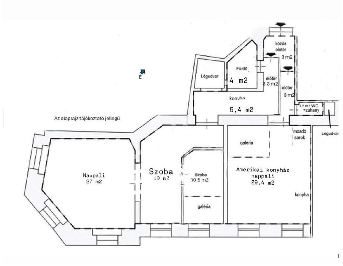
- Alapterület:106 m2
- Csere is:Nem
- Hirdető:Cég
- Élő videón megtekinthető:Nem
- Szobaszám:3 + 1 fél
- Állapot:Újszerű, kitűnő
- Hány szintes az ingatlan:Földszintes
- Komfortosság:nincs megadva
- Hányadik emeleti:3
- Lift:Nincs
- Parkolási lehetőség:nincs megadva
- Fűtés:Gáz (cirko)
- Bútorozottság:nincs megadva
- Fényviszony:Napfényes
- Tájolás:D
- Kilátás:nincs megadva
- Internet:nincs megadva
- Klíma:Van
- Akadálymentesített:nincs megadva
- Energiatanúsítvány:nincs megadva
- Villany:Van
- Víz:Van
- Gáz:nincs megadva
- Csatorna:Van
- Közös költség:38 000 Ft
- Üzenetküldés
- Hívás

Referencia szám: M320627

Hitel ajánlat
Ingatlan hirdetés leírása
Eladó Lakás, Budapest 8. ker.
Felújított, világos lakás a Corvin negyedben, 2 lakás egyben!Otthon Start támogatásra alkalmas
ENGLISH description BELOW! ! !
Budapest VIII. kerületében, a Corvin negyedben, a József körúton eladó egy 106 m²-es, 3. emeleti, 3 + 1 félszobás, felújított, rendkívül világos lakás rendezett társasházban.
Az ingatlan egyik legnagyobb előnye, hogy egyben és két külön lakásként is funkcionálhat.
Jelenleg egy közös bejáratról, de külön megközelíthetően található benne:
egy 35 nm-es garzonlakás konyhával és fürdőszobával
valamint egy 71 nm-es, 3 szobás lakás
Ez a kialakítás ideális kétgenerációs együttélésre, lakás, iroda megoldásra, illetve befektetésre, mivel a lakrészek külön-külön vagy egyben is bérbe adhatók.
Műszaki és esztétikai jellemzők
2024-ig több ütemben teljes körű felújítás (vezetékek, burkolatok, konyha, szaniterek, nyílászárók)
Új kondenzációs kazán, korszerű és gazdaságos fűtés
Körbenapozott, világos terek
Hang- és hőszigetelt műanyag nyílászárók
Két helyiségben galéria (kb. 1, 7 M belmagassággal)
Egyedi burkolatok, hangulatos csillárok
Társasház
Jó állapotú, rendezett épület
Jó lakóközösség
Jogi háttér
1/1 tulajdon
Tehermentes
Rövid időn belül költözhető
A gépek, berendezések és bútorok ára 10 millió Ft, mely kötelezően megvásárolandó.
Kiváló elhelyezkedése és közlekedése miatt az ingatlan kiemelkedő befektetési lehetőség, akár két teljesen szeparált lakásként is.
Érdeklődés esetén várom megkeresését bizalommal!
>
Renovated, bright apartment in Corvin Quarter – two apartments in one
Eligible for Otthon Start support
For sale in Budapest, District viii, in the popular Corvin Quarter, on József Boulevard, a 106 sqm, 3rd-floor, renovated and bright apartment in a well-maintained building.
The property can be used as one large apartment or as two separate units.
Currently accessible from a shared entrance but independently separable:
a 35 sqm studio apartment with kitchen and bathroom
a 71 sqm, 3-room apartment
This layout is ideal for multi-generational living, home-office use, or investment, as the units can be rented separately or together.
Key features
Renovated in several stages until 2024 (wiring, flooring, kitchen, bathrooms, windows)
New condensing boiler
Very bright, sunlit spaces
Sound- and heat-insulated windows
Two loft areas, increasing usable space
Stylish finishes and unique details
Legal status
1/1 ownership
Free of encumbrances
Available within a short time
Furniture and appliances are available for an additional 10 million huf (mandatory purchase).
Contact me for further details or a viewing.
Referencia szám: m320627-ml FIX 3% lakáshitelre megvehető

