Eladó újszerű állapotú lakás - Budapest VIII. kerület
- INGYENES HIRDETÉS FELADÁS
Ingatlan adatai
- Eladó vagy kiadó:Eladó
- Település:Budapest VIII. kerület
- Kategória:Lakás
- Alkategória:Tégla
- Alapterület:99 m2
- Csere is:Nem
- Hirdető:Cég
- Élő videón megtekinthető:Nem
- Szobaszám:3
- Állapot:Újszerű, kitűnő
- Hány szintes az ingatlan:Földszintes
- Komfortosság:nincs megadva
- Hányadik emeleti:1
- Erkély:nincs megadva
- Lift:Nincs
- Parkolási lehetőség:nincs megadva
- Fűtés:Gáz (cirko)
- Bútorozottság:nincs megadva
- Fényviszony:Jó
- Tájolás:ÉNY
- Kilátás:nincs megadva
- Internet:nincs megadva
- Klíma:nincs megadva
- Akadálymentesített:nincs megadva
- Energiatanúsítvány:nincs megadva
- Villany:Van
- Víz:Van
- Gáz:nincs megadva
- Csatorna:Van
- Kapcsolatfelvétel

Lakatos Barbara
+36-(30)-529-1207
Mondd meg a hirdetőnek, hogy a megveszLAK-on találtad a hirdetést.
Referencia szám: LK081399
Hitel ajánlatok
Ingatlan hirdetés leírása
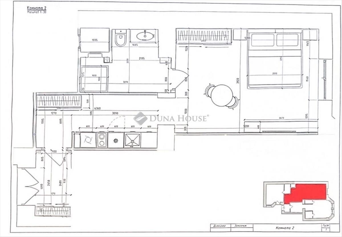
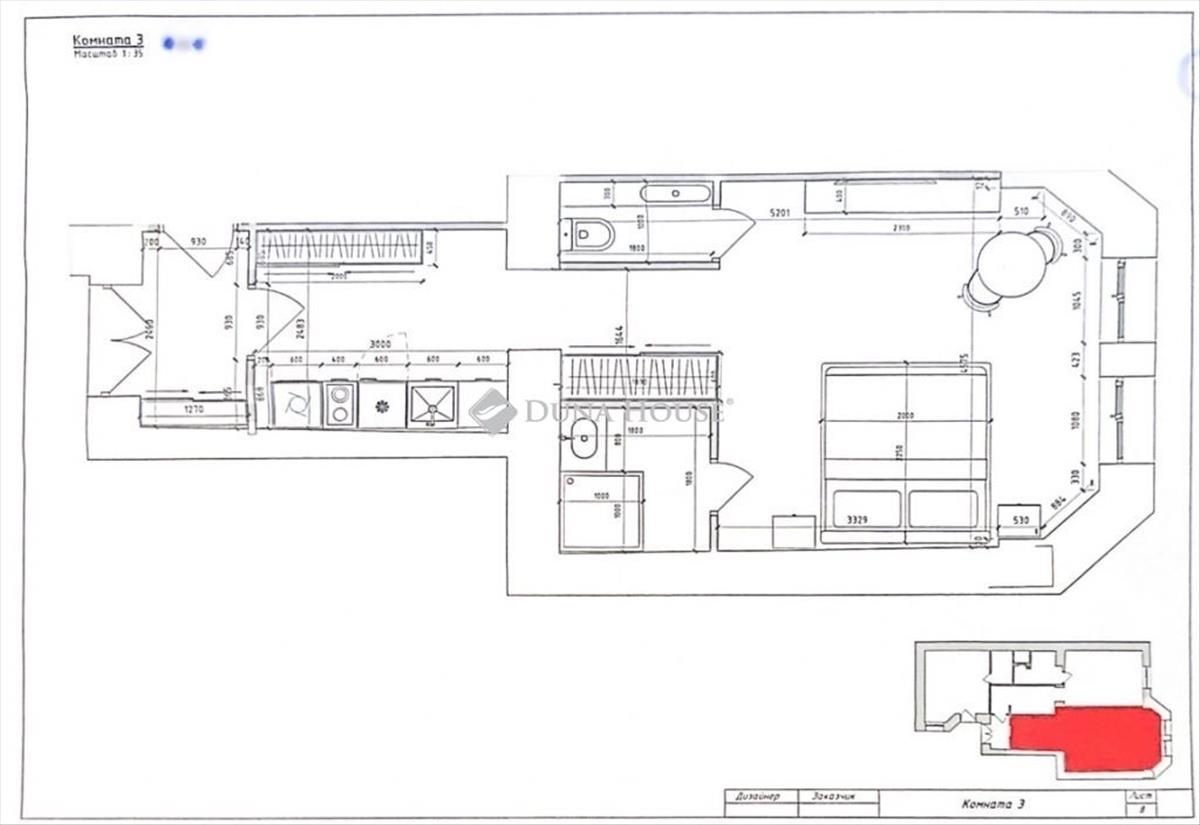
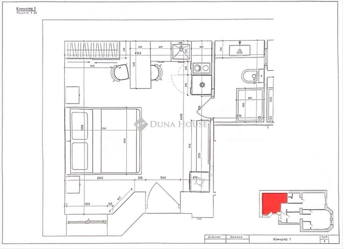
Eladó lakás, Budapest 8. ker.
Elegáns, frissen felújított apartmanok eladók a belváros szívében
Eladásra kínálunk három igényesen felújított, teljesen berendezett első emeleti apartmant. Az ingatlanok 2024-ben teljes körű felújításon estek át, modern gépészettel és prémium minőségű anyaghasználattal. a 380 cm-es belmagasság tágas, világos tereket biztosít, az elegáns, minimalista belső kialakítás pedig letisztult megjelenést és időtálló stílust képvisel.
A környék infrastruktúrája kiemelkedő: kávézók, éttermek, egyetemek és közlekedési csomópontok néhány perc sétával elérhetők. a belvárosi elhelyezkedés és a magas minőségű kialakítás miatt az apartmanok kiváló befektetési lehetőséget kínálnak, stabil hozampotenciállal.
Megbízhatóan, gyorsan és az Ön érdekeit szem előtt tartva dolgozom, a teljes értékesítési folyamat során.
Referencia szám: lk081399 Hitel.hu - Hasonlítsa össze a bankok lakáshitel ajánlatait
Tetszett ez az eladó Budapest VIII. kerületi újszerű állapotú 3 szobás tégla lakás? Hívd fel a hirdetőt most, és tudj meg mindent erről az eladó tégla lakásról! Ha gondolod nézelődj tovább az eladó lakás Budapest VIII. kerület oldal hirdetései között. Ennek az eladó lakásnak az ára 186000000 Ft és mivel az alapterülete 99 négyzetméter, ezért az átlagos négyzetméterára 1878788 HUF/m2.
Az eladó lakások menüpontban további hirdetések között is böngészhetsz. Az összes eladó budapesti lakás hirdetést tartalmazó oldalon tudsz böngészni. Ha van kedved, akkor böngészhetsz a Lakatos Barbara összes hirdetése között, vagy akár a/az Duna House Kispest összes hirdetése között is.

