- >>
- eladó ingatlanok
- >>
- eladó lakás
- >>
- eladó lakás Budapest VIII. kerület
- >>
Eladó új építésű lakás - Budapest VIII. kerület
| | |||
| Kedvencnek jelölöm | Elküldöm emailben | Megosztás | Szavazás |
| Kedvezményes lakáshitel ajánlatok | |||
| 49 000 000 HUF | |||
Ingatlan adatai
- Eladó vagy kiadó:Eladó
- Település:Budapest VIII. kerület
- Kategória:Lakás
- Alkategória:Tégla
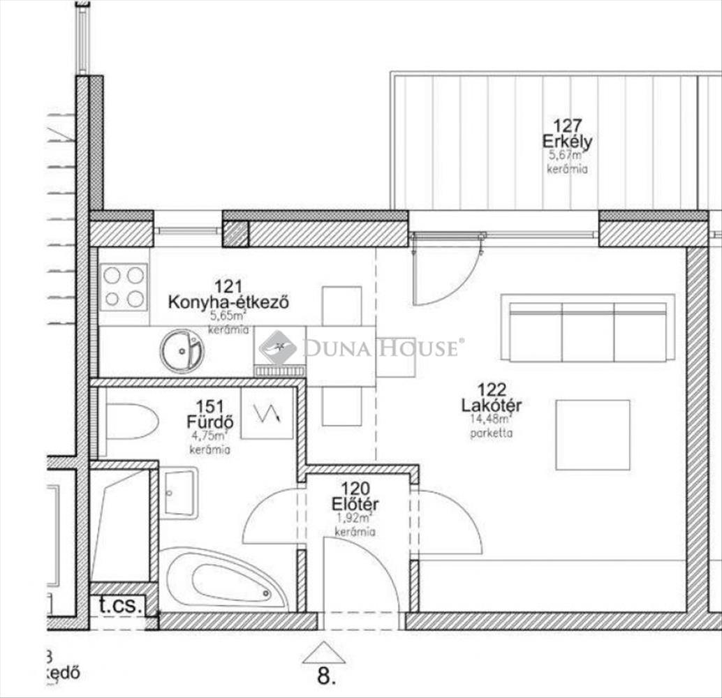
- Alapterület:29 m2
- Csere is:Nem
- Hirdető:Cég
- Élő videón megtekinthető:Nem
- Szobaszám:1
- Állapot:Új építésű
- Hány szintes az ingatlan:Földszintes
- Komfortosság:nincs megadva
- Hányadik emeleti:2
- Lift:Van
- Parkolási lehetőség:nincs megadva
- Fűtés:Hőszivattyús
- Bútorozottság:nincs megadva
- Fényviszony:nincs megadva
- Tájolás:É
- Kilátás:nincs megadva
- Internet:nincs megadva
- Akadálymentesített:nincs megadva
- Energiatanúsítvány:A
- Villany:Van
- Víz:Van
- Gáz:nincs megadva
- Csatorna:Van
- Üzenetküldés
- Hívás

Referencia szám: PR089730/LK/24225

Hitel ajánlat
Ingatlan hirdetés leírása
Eladó lakás, Budapest 8. ker.
Prémium minőségű, újépítésű lakások a Corvin negyed szélén, a Kálvária térnél!A belváros szívében, a Corvin negyed szélén, a mára nagyrészt megújult városnegyedben kínálunk magas műszaki színvonalú lakásokat a belvárosi pezsgés szerelmeseinek. a lakásokat egyaránt ajánljuk befektetőknek, fiataloknak és családosoknak is!
Kínálunk otthonokat garzonoktól a 4 szobás lakásokig, így mindenki megtalálhatja a számára kedvező lakásméretet.
A 8. kerület társasházaihoz viszonyítva ez a ház kimagasló műszaki tartalommal és beépített technológiákkal épült meg: magas színvonalú, modern hőszivattyús fűtés- és hűtésrendszer, valamint igényes gépészet, minden, a mai elvárásoknak megfelelően, extra hőszigeteléssel, három rétegű üvegezésű nyílászárókkal, led lámpákkal.
A lakóparkban 40 db, modern stílusú, változatos alaprajzú lakás került megépítésre, amiket letisztult design jellemez.
Központi elhelyezkedése, kiváló közlekedési lehetősége (pár perc sétával két metróvonal, valamint a 4-6 villamos is elérhető, a háztól néhány méterre van a 9-es és 909-es busz, valamint a 83-as troli megállója) és az egyetemek közelsége miatt könnyen, jó áron bérbeadhatók a lakások. a ház közvetlen környezetében óvodák és iskolák, üzletek, éttermek és kávézók is megtalálhatók.
Az épület tervezői a modern, letisztult, de időtálló design mellett-, az átgondolt, élhető alaprajzi kialakításra is nagy hangsúlyt fektettek.
Az épület jelenleg 99%-os készültségen áll, az átadás augusztus vége szeptember elejére várható, már csak az eon jóváhagyására vár a projekt, ami nem a készültségtől függ, hanem az átfutási időtől.
További részletekért keressen bizalommal minket!
A Duna House teljes kínálatával kapcsolatban forduljanak hozzám bizalommal!
Bankfüggetlen pénzügyi szakembereink tanácsadással, ügyintézéssel tudják segíteni Önöket álmaik, céljaik megvalósításában!
Vegye igénybe díjmentes konzultációinkat!
Https://www. Facebook. Com/otthonkonnyeden
Referencia szám: pr089730/lk/24225 Hitel.hu - Hasonlítsa össze a bankok lakáshitel ajánlatait

