Eladó jó állapotú lakás - Budapest VIII. kerület
- INGYENES HIRDETÉS FELADÁS
Ingatlan adatai
- Eladó vagy kiadó:Eladó
- Település:Budapest VIII. kerület
- Kategória:Lakás
- Alkategória:Tégla
- Alapterület:77 m2
- Csere is:Nem
- Hirdető:Cég
- Élő videón megtekinthető:Nem
- Szobaszám:3
- Állapot:Jó állapotú
- Hány szintes az ingatlan:Földszintes
- Komfortosság:nincs megadva
- Hányadik emeleti:5
- Erkély:nincs megadva
- Lift:Van
- Parkolási lehetőség:nincs megadva
- Fűtés:Gáz
- Bútorozottság:nincs megadva
- Fényviszony:Napfényes
- Tájolás:K
- Kilátás:nincs megadva
- Internet:nincs megadva
- Klíma:nincs megadva
- Akadálymentesített:nincs megadva
- Energiatanúsítvány:nincs megadva
- Villany:Van
- Víz:Van
- Gáz:nincs megadva
- Csatorna:Van
- Kapcsolatfelvétel

Drong Sándor
+36-(30)-386-5054
Mondd meg a hirdetőnek, hogy a megveszLAK-on találtad a hirdetést.
Referencia szám: LK057742
Hitel ajánlatok
Ingatlan hirdetés leírása
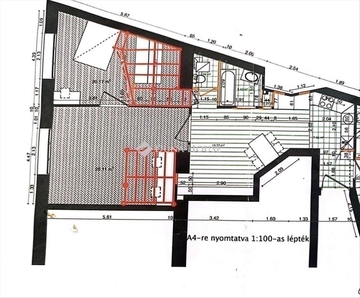
Eladó lakás, Budapest 8. ker.
Napfényes, galériás lakás a Corvin-negyedben
Költözzön egy tágas, világos otthonba a belváros szívében! Ez a lakás egy szecessziós, 1912-ben épült liftes házban található.
A lakás 77 nm -es + galériák, 2 tágas galériás szobával, + amerikai konyhás nappalival rendelkezik.
Elhelyezkedés: Corvin-negyed, a Corvin Pláza közvetlen közelében
Hamarosan költözhető: Teljes bútorzattal és gépesítéssel eladó
Új kazán, villanyhálózat, vízvezetékek cserélve. Az öreg menthetetlen parkettát felszedték, alatta a törmeléket eltávolították, újrabetinozták és burkolták.
Sok tárolóhely áll rendelkezésre.
Rendkívül világosak a szobák.
Lokáció és infrastruktúra:
A lakás kiváló környéken található, közel a Fazekas Mihály Gimnáziumhoz és a Pázmány Péter Egyetemhez. a mindennapi élethez szükséges szolgáltatások Corvin Pláza, pékségek, drogériák, éttermek pár perc sétára vannak. Kiváló közlekedés: 4-6-os villamos, m4 metró, buszok és trolik könnyen elérhetők.
Az ingatlan használati megosztási szerződéssel rendelkezik, minden közműve önálló.
Az ingatlan hitelezhető piaci alapú hitellel.
Érd: 06 30 386 50 54
Referencia szám: lk057742 FIX 3% lakáshitelre megvehető
Tetszett ez az eladó Budapest VIII. kerületi jó állapotú 3 szobás tégla lakás? Hívd fel a hirdetőt most, és tudj meg mindent erről az eladó tégla lakásról! Ha gondolod nézelődj tovább az eladó lakás Budapest VIII. kerület oldal hirdetései között. Ennek az eladó lakásnak az ára 86000000 Ft és mivel az alapterülete 77 négyzetméter, ezért az átlagos négyzetméterára 1116883 HUF/m2.
Az eladó lakások menüpontban további hirdetések között is böngészhetsz. Az összes eladó budapesti lakás hirdetést tartalmazó oldalon tudsz böngészni. Ha van kedved, akkor böngészhetsz a Drong Sándor összes hirdetése között, vagy akár a/az Duna House Márvány utca összes hirdetése között is.

