Eladó újszerű állapotú lakás - Budapest XII. kerület
- INGYENES HIRDETÉS FELADÁS
Ingatlan adatai
- Eladó vagy kiadó:Eladó
- Település:Budapest XII. kerület
- Kategória:Lakás
- Alkategória:Tégla
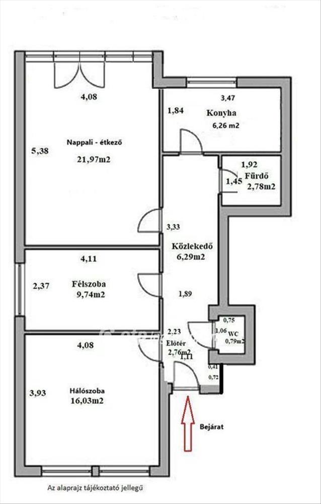
- Alapterület:65 m2
- Csere is:Nem
- Hirdető:Cég
- Élő videón megtekinthető:Nem
- Szobaszám:2 + 1 fél
- Állapot:Újszerű, kitűnő
- Hány szintes az ingatlan:Földszintes
- Komfortosság:nincs megadva
- Hányadik emeleti:Földszint
- Erkély:nincs megadva
- Lift:Nincs
- Parkolási lehetőség:nincs megadva
- Fűtés:Elektromos
- Bútorozottság:nincs megadva
- Fényviszony:Napfényes
- Tájolás:K
- Kilátás:nincs megadva
- Internet:nincs megadva
- Klíma:nincs megadva
- Akadálymentesített:nincs megadva
- Energiatanúsítvány:nincs megadva
- Villany:Van
- Víz:Van
- Gáz:nincs megadva
- Csatorna:Van
- Közös költség:20 000 Ft
- Kapcsolatfelvétel

Hitel ajánlatok
Ingatlan hirdetés leírása
Eladó Lakás, Budapest 12. ker.
Prémium, felújított lakás eladó Orbánhegyen, zöldövezeti környezetben.
ENGLISH description BELOW!
Budapest XII. kerületének egyik legkedveltebb részén, Orbánhegyen kínálunk megvételre egy teljes körűen felújított, igényesen berendezett nappali + 2 hálószobás lakást.
Az ingatlan az utca felől magasföldszinti, az udvar felől első emeleti elhelyezkedésű, így világos és csendes. a korábbi loggia beépítésével a nappali-étkező tágasabbá vált, padlótól plafonig érő ablakokkal és erkélyajtóval, amelyek a zárt, parkosított udvar felé néznek.
A lakás teljesen bútorozott és gépesített. a konyha beépített bútorral, kerámia főzőlappal, sütővel, hűtővel, mosogatógéppel és kávéfőzővel felszerelt. a fürdőszobában kád és mosó-szárítógép található.
A felújítás során cserélték a nyílászárókat és a vezetékeket, vízálló laminált parketta került beépítésre, valamint elektromos, távirányítós redőnyök kerültek minden helyiségbe. a fűtésről és hűtésről klíma gondoskodik, H tarifa kiépítéssel.
A 1011 nm -es zárt udvar parkosított, játszótérrel rendelkezik. Az utcai parkolás ingyenes.
A környék kiváló infrastruktúrával rendelkezik: a Déli pályaudvar, a Széll Kálmán tér és a mom Park néhány percen belül elérhető.
Az ingatlan ideális választás pároknak vagy családoknak, akik nyugodt, zöld környezetben keresnek azonnal költözhető otthont.
>Renovated premium apartment for sale in Orbánhegy.
A fully renovated and tastefully furnished living room + 2 bedroom apartment is for sale in the highly desirable Orbánhegy area of Budapest’s 12th district.
The property is located on a raised ground floor from the street side and on the first floor from the courtyard side, making it bright while remaining quiet and private.
The former loggia has been integrated into the living and dining area, creating a larger open space with floor-to-ceiling windows and balcony doors overlooking the landscaped courtyard.
The apartment is fully furnished and equipped. The kitchen includes built-in cabinets, ceramic cooktop, oven, refrigerator, dishwasher and coffee machine. The bathroom features a bathtub and a washer-dryer.
During the renovation, windows and electrical systems were replaced, waterproof laminate flooring was installed, and all rooms received electric remote-controlled shutters. Heating and cooling are provided by air conditioning with an H tariff system.
Residents can enjoy a private 1011 sqm landscaped courtyard with a playground. Street parking is free.
The location offers excellent infrastructure, with Déli Railway Station, Széll Kálmán Square and mom Park just minutes away.
The property is an ideal choice for couples or families looking for a ready-to-move-in home in a peaceful green environm ent.
Referencia szám: m324177-ml Hitel.hu - Hasonlítsa össze a bankok lakáshitel ajánlatait
Tetszett ez az eladó Budapest XII. kerületi újszerű állapotú 2 egész és 1 fél szobás tégla lakás? Hívd fel a hirdetőt most, és tudj meg mindent erről az eladó tégla lakásról! Ha gondolod nézelődj tovább az eladó lakás Budapest XII. kerület oldal hirdetései között. Ennek az eladó lakásnak az ára 129900000 Ft és mivel az alapterülete 65 négyzetméter, ezért az átlagos négyzetméterára 1998462 HUF/m2.
Az eladó lakások menüpontban további hirdetések között is böngészhetsz. Az összes eladó budapesti lakás hirdetést tartalmazó oldalon tudsz böngészni. Ha van kedved, akkor böngészhetsz a Gregoryan Artur összes hirdetése között, vagy akár a/az OTPip Gregoryan Artur összes hirdetése között is.

