Eladó újszerű állapotú lakás - Budapest XII. kerület
- INGYENES HIRDETÉS FELADÁS
Ingatlan adatai
- Feladva:61 napja a megveszLAK-on
- Eladó vagy kiadó:Eladó
- Település:Budapest XII. kerület
- Kategória:Lakás
- Alkategória:Tégla
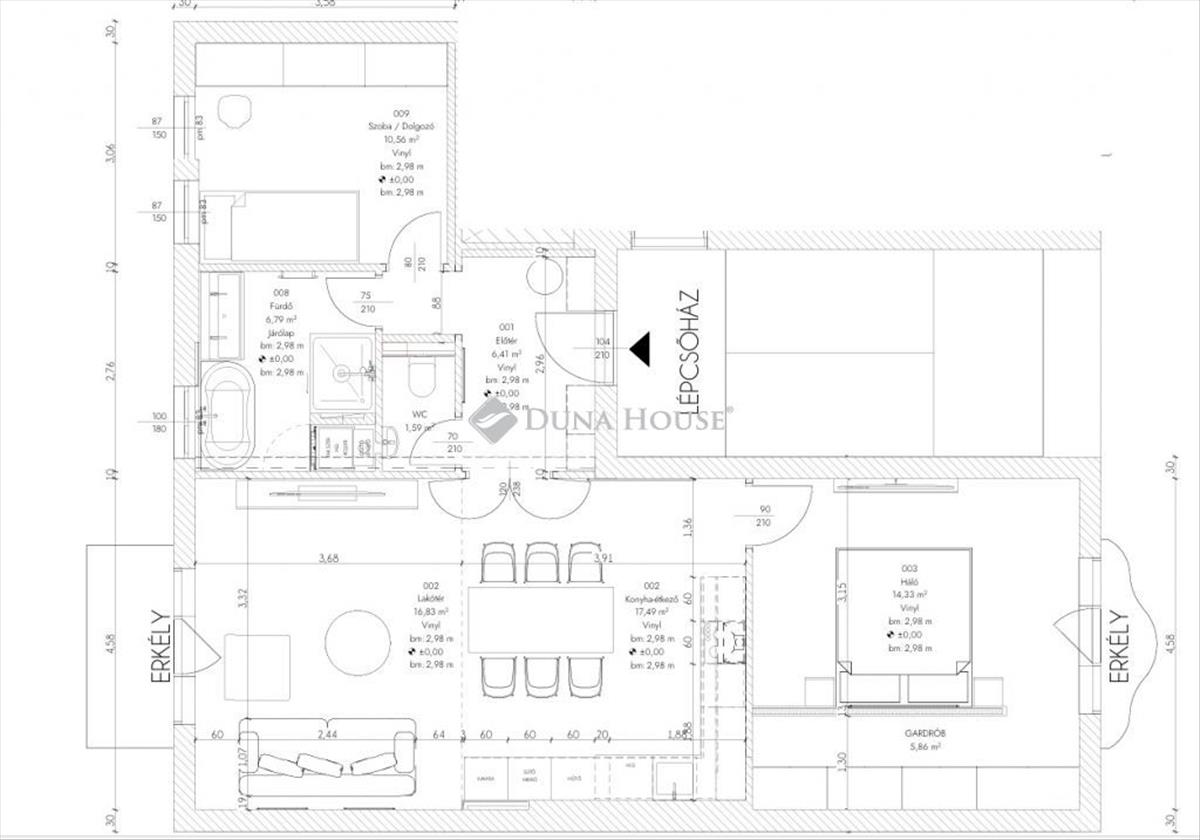
- Alapterület:80 m2
- Csere is:Nem
- Hirdető:Cég
- Élő videón megtekinthető:Nem
- Szobaszám:3
- Állapot:Újszerű, kitűnő
- Hány szintes az ingatlan:Földszintes
- Komfortosság:nincs megadva
- Hányadik emeleti:1
- Erkély:nincs megadva
- Lift:Nincs
- Parkolási lehetőség:nincs megadva
- Fűtés:Gáz (cirko)
- Bútorozottság:nincs megadva
- Fényviszony:Napfényes
- Tájolás:ÉK
- Kilátás:nincs megadva
- Internet:nincs megadva
- Klíma:nincs megadva
- Akadálymentesített:nincs megadva
- Energiatanúsítvány:nincs megadva
- Villany:Van
- Víz:Van
- Gáz:nincs megadva
- Csatorna:Van
- Kapcsolatfelvétel

Takács László
+36-(30)-929-5123
Mondd meg a hirdetőnek, hogy a megveszLAK-on találtad a hirdetést.
Referencia szám: LK080818
Hitel ajánlatok
Ingatlan hirdetés leírása
Eladó lakás, Budapest 12. ker.
Nagypolgári elegancia a XII. kerület szívében frissen felújított, erkélyes lakás az Ugocsa utcábanA XII. kerület kedvelt részén, az Ugocsa utcában kínálunk megvételre egy 1. emeleti, 80 m²-es, polgári stílusú lakást, amely frissen és igényesen felújított, megőrizve a klasszikus értékeket, modern részletekkel kiegészítve. Az ingatlan nappali + 2 hálószobás elrendezésű, tágas és jól élhető terekkel. Különleges értéke a két erkély, melyekről a lakás döntő része csendes, zöld kertre néz, így a környezet nyugalmat és természetközeli hangulatot biztosít. a nagy ablakfelületeknek köszönhetően a lakás kimondottan napfényes, világos egész nap. a felújítás során a nagypolgári elegancia magas belmagasság, arányos terek megmaradt, miközben modern, letisztult megoldások tették igazán komfortossá az otthont. a nappali délnyugati fekvésű, igazán napfényes. a társasház mindössze 8 lakásos. a háznak saját kellemes méretű kertje van, újonnan épített, gyepszőnyeggel, kiülővel, grillezővel. Ideális választás azok számára, akik exkluzív környezetben, mégis zöldövezeti hangulatban keresnek értékálló, azonnal költözhető lakást a XII. kerületben. a lakáshoz tartozik egy 4nm -es tároló. a közlekedés kiváló: a közelben több busz- és villamosjárat is elérhető, melyekkel a belváros és a budai csomópontok gyorsan megközelíthetők. a mom Park, valamint a Széll Kálmán tér rövid időn belül elérhető, akár tömegközlekedéssel, akár autóval. a környék ellátottsága kiemelkedő: sétatávolságon belül találhatóak élelmiszerboltok, pékségek, gyógyszertár, éttermek, kávézók, valamint oktatási és egészségügyi intézmények. a közeli parkok és zöldterületek tovább növelik a környék élhetőségét. Ideális választás mindazok számára, akik értékálló, azonnal költözhető otthont keresnek zöldövezeti nyugalomban, mégis kiváló infrastruktúrával a XII. kerületben. Akár befektetők részére is, jól kiadható, keresett méretű ingatlan.
Referencia szám: lk080818 Hitel.hu - Hasonlítsa össze a bankok lakáshitel ajánlatait
Tetszett ez az eladó Budapest XII. kerületi újszerű állapotú 3 szobás tégla lakás? Hívd fel a hirdetőt most, és tudj meg mindent erről az eladó tégla lakásról! Ha gondolod nézelődj tovább az eladó lakás Budapest XII. kerület oldal hirdetései között. Ennek az eladó lakásnak az ára 189000000 Ft és mivel az alapterülete 80 négyzetméter, ezért az átlagos négyzetméterára 2362500 HUF/m2.
Az eladó lakások menüpontban további hirdetések között is böngészhetsz. Az összes eladó budapesti lakás hirdetést tartalmazó oldalon tudsz böngészni. Ha van kedved, akkor böngészhetsz a Takács László összes hirdetése között, vagy akár a/az Duna House Szépvölgyi út összes hirdetése között is.

