Eladó jó állapotú lakás - Budapest XIII. kerület
- INGYENES HIRDETÉS FELADÁS
Ingatlan adatai
- Eladó vagy kiadó:Eladó
- Település:Budapest XIII. kerület
- Kategória:Lakás
- Alkategória:Tégla
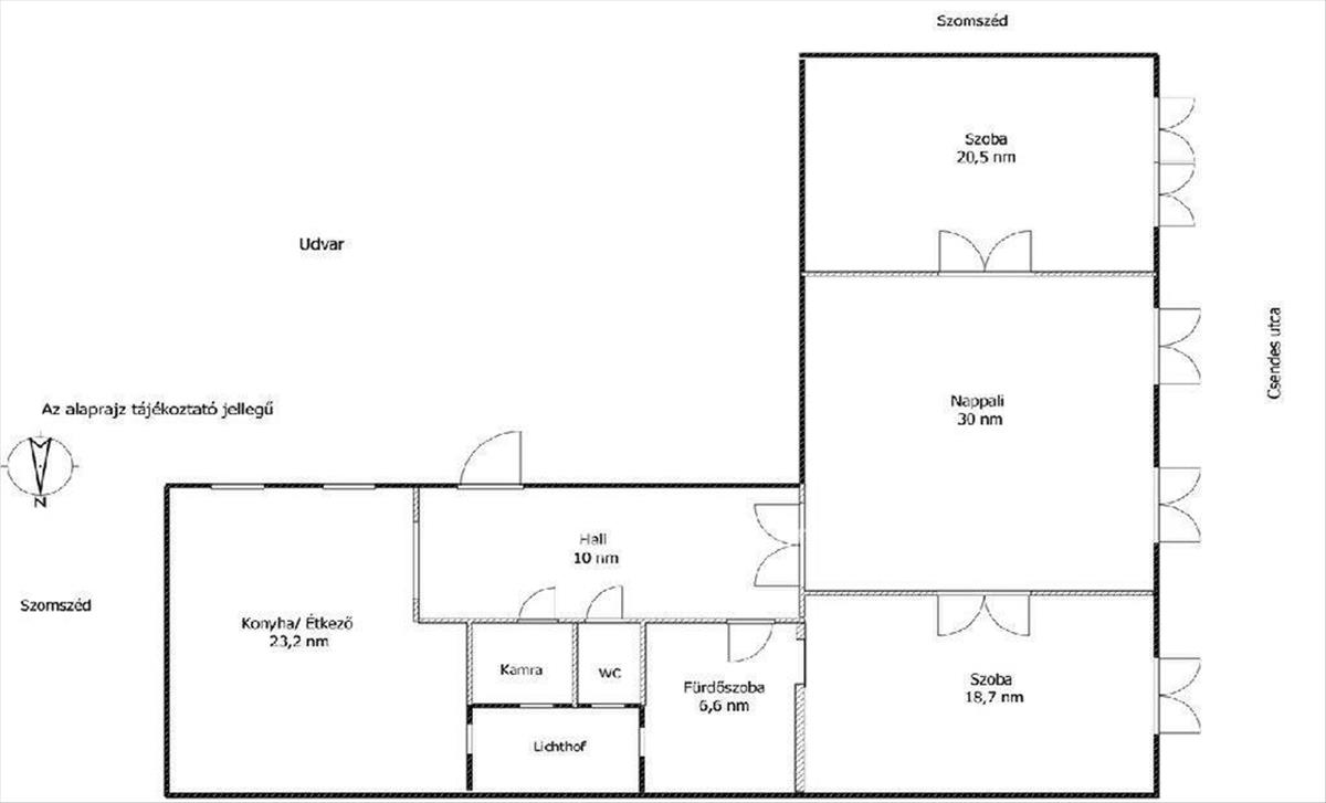
- Alapterület:116 m2
- Csere is:Nem
- Hirdető:Cég
- Élő videón megtekinthető:Nem
- Szobaszám:3
- Állapot:Jó állapotú
- Hány szintes az ingatlan:Földszintes
- Komfortosság:nincs megadva
- Hányadik emeleti:3
- Erkély:nincs megadva
- Lift:Nincs
- Parkolási lehetőség:nincs megadva
- Fűtés:Gáz (cirko)
- Bútorozottság:nincs megadva
- Fényviszony:Jó
- Tájolás:DNY
- Kilátás:nincs megadva
- Internet:nincs megadva
- Klíma:nincs megadva
- Akadálymentesített:nincs megadva
- Energiatanúsítvány:nincs megadva
- Villany:Van
- Víz:Van
- Gáz:nincs megadva
- Csatorna:Van
- Közös költség:19 700 Ft
- Kapcsolatfelvétel

Gregoryan Artur
+36-(70)-630-0162
Mondd meg a hirdetőnek, hogy a megveszLAK-on találtad a hirdetést.
Referencia szám: M323890
Hitel ajánlatok
Ingatlan hirdetés leírása
Eladó Lakás, Budapest 13. ker.
Tágas polgári lakás eladó a Nyugati pályaudvar és a Westend közelében
ENGLISH description BELOW! ! !
Eladó a Budapest szívében, a Westend City Center és a Nyugati pályaudvar közvetlen közelében egy 116 nm -es, világos, jó állapotú polgári lakás egy csendes mellékutcában.
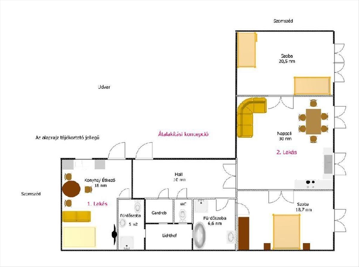
A lakás jelenlegi elrendezése 3 szoba + tágas, étkezővel egybenyitott konyha, amely kényelmes életteret biztosít. a nagy alapterületnek és a kedvező alaprajznak köszönhetően az ingatlan könnyedén 2 vagy akár 3 külön lakássá is alakítható, valamint lehetőség van egy új, külön bejárat kialakítására is.
Ez különösen vonzó befektetési lehetőséget jelent, hiszen a társasház SZMSZ-e nem tiltja a rövid távú lakáskiadást sem.
Műszaki állapot
Az ingatlan és a társasház műszaki állapota jó, a szükséges felújítások már megtörténtek:
-teljes víz- és csőhálózat csere
-elektromos hálózat felújítása
-a társasház tetőfelújítása nemrég befejeződött
-folyamatosan karbantartott, kulturált épület
-saját, száraz pincei tároló
A házban jelenleg nincs lift.
Tulajdoni viszonyok
Az ingatlan 1/1 tulajdonban van, per- és tehermentes, és néhány hónapon belül rugalmasan birtokba vehető.
Befektetés vagy otthon
A kivételes elhelyezkedés, a nagy alapterület és az átalakítási lehetőségek miatt a lakás ideális választás befektetők számára, ugyanakkor tökéletes lehet családi otthonnak is azoknak, akik a belvárosi élet nyüzsgése mellett szeretnék élvezni egy klasszikus polgári lakás hangulatát és egy csendes utca nyugalmát.
További információért és megtekintésért keressen bizalommal!
>Spacious classical apartment for sale near Nyugati Railway Station and Westend
A 116 sqm bright and well-maintained classical apartment is for sale in the heart of Budapest, located in a quiet side street close to Westend City Center and Nyugati pályaudvar.
The apartment currently offers 3 rooms and a spacious kitchen with dining area, creating a comfortable living environm ent.
Due to its large floor area and flexible layout, the property can easily be divided into two or even three separate apartments, and there is also the possibility of creating an additional private entrance.
This represents an excellent investment opportunity, especially since the building’s regulations allow short-term rentals.
Technical condition
Both the apartment and the building have undergone significant upgrades:
-complete replacement of water pipes and plumbing system
-renewed electrical network
-the roof of the building has recently been renovated
-well-maintained residential building
-private dry basement storage
Please note that there is currently no elevator in the building.
Ownership
The property is in single ownership, free of legal claims and encumbrances, and can be taken into possession within a few months.
Investment potential
Thanks to its exceptional location and flexible layout, the apartment is an excellent investment opportunity, but also a perfect home for families who wish to enjoy the elegance of a classic Budapest apartment while living in a quiet street close to the vibrant city center.
Feel free to contact us for more information or to arrange a viewing.
Referencia szám: m323890-ml Hitel.hu - Hasonlítsa össze a bankok lakáshitel ajánlatait
Tetszett ez az eladó Budapest XIII. kerületi jó állapotú 3 szobás tégla lakás? Hívd fel a hirdetőt most, és tudj meg mindent erről az eladó tégla lakásról! Ha gondolod nézelődj tovább az eladó lakás Budapest XIII. kerület oldal hirdetései között. Ennek az eladó lakásnak az ára 105000000 Ft és mivel az alapterülete 116 négyzetméter, ezért az átlagos négyzetméterára 905172 HUF/m2.
Az eladó lakások menüpontban további hirdetések között is böngészhetsz. Az összes eladó budapesti lakás hirdetést tartalmazó oldalon tudsz böngészni. Ha van kedved, akkor böngészhetsz a Gregoryan Artur összes hirdetése között, vagy akár a/az OTPip Gregoryan Artur összes hirdetése között is.

