Eladó újszerű állapotú lakás - Budapest XIV. kerület
- INGYENES HIRDETÉS FELADÁS
Ingatlan adatai
- Eladó vagy kiadó:Eladó
- Település:Budapest XIV. kerület
- Kategória:Lakás
- Alkategória:Tégla
- Alapterület:59 m2
- Csere is:Nem
- Hirdető:Cég
- Élő videón megtekinthető:Nem
- Szobaszám:3
- Állapot:Újszerű, kitűnő
- Hány szintes az ingatlan:Földszintes
- Komfortosság:nincs megadva
- Hányadik emeleti:1
- Erkély:nincs megadva
- Lift:Nincs
- Parkolási lehetőség:nincs megadva
- Fűtés:Gáz (cirko)
- Bútorozottság:nincs megadva
- Fényviszony:Napfényes
- Tájolás:ÉK
- Kilátás:nincs megadva
- Internet:nincs megadva
- Klíma:nincs megadva
- Akadálymentesített:nincs megadva
- Energiatanúsítvány:E
- Villany:Van
- Víz:Van
- Gáz:nincs megadva
- Csatorna:Van
- Kapcsolatfelvétel

Molnár Nikoletta
+36-(30)-856-3188
Mondd meg a hirdetőnek, hogy a megveszLAK-on találtad a hirdetést.
Referencia szám: LK096326
Hitel ajánlatok
Ingatlan hirdetés leírása
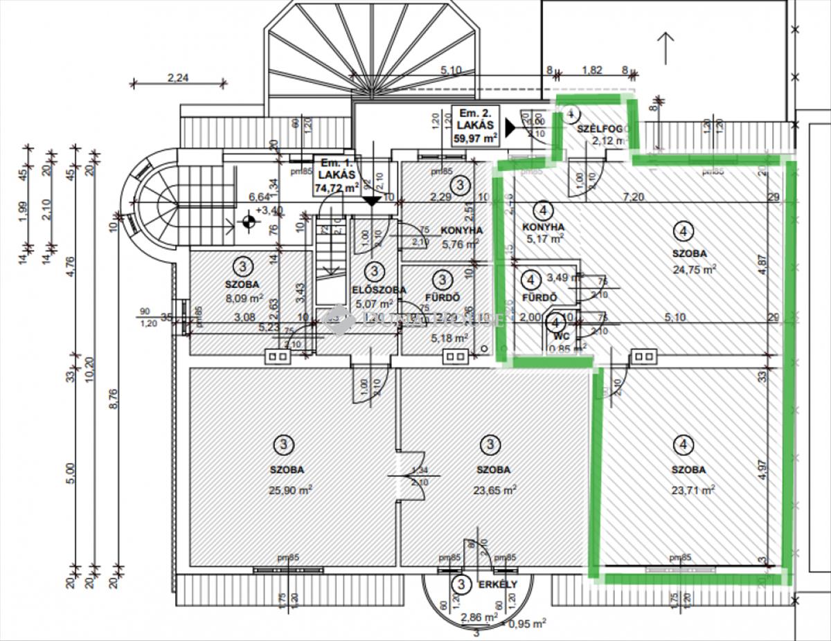
Eladó lakás, Budapest 14. ker.
Családias környéken felújított lakás eladóZugló kedvelt városrészében 4 lakásos épületben, i. emeleti, található ez a 60 m2-es ingatlan. 2017-Ben történt felújítása során nyerte el jelenlegi elosztását, amerikai konyhás nappalija kerti nézettel, míg 2 hálója utcai nézettel rendelkezik
Az utólagosan kialakított erkélye szintén kerti nézetű. a lakáshoz egy udvari beálló is tartozik. Ajánlom ezt a lakást azoknak akik értékelik Zugló nyugalmának és könnyű megközelíthetőségének kombinációját és felújított lakás kényelmével együtt.
Nyerjen róla mielőbb személyes benyomást!
Referencia szám: lk096326-ml FIX 3% lakáshitelre megvehető
Tetszett ez az eladó Budapest XIV. kerületi újszerű állapotú 3 szobás tégla lakás? Hívd fel a hirdetőt most, és tudj meg mindent erről az eladó tégla lakásról! Ha gondolod nézelődj tovább az eladó lakás Budapest XIV. kerület oldal hirdetései között. Ennek az eladó lakásnak az ára 79900000 Ft és mivel az alapterülete 59 négyzetméter, ezért az átlagos négyzetméterára 1354237 HUF/m2.
Az eladó lakások menüpontban további hirdetések között is böngészhetsz. Az összes eladó budapesti lakás hirdetést tartalmazó oldalon tudsz böngészni. Ha van kedved, akkor böngészhetsz a Molnár Nikoletta összes hirdetése között, vagy akár a/az Duna House Kispest összes hirdetése között is.

