Eladó új építésű lakás - Cegléd (33266244)
ELADÓ INGATLANOK
KIADÓ INGATLANOK
CSERE INGATLANOK
KÜLFÖLDI INGATLANOK
RÉSZLETES KERESÉS
INGATLAN HÍREK
HIRDETÉS FELADÁS
BELÉPÉS
REGISZTRÁCIÓ
hirdetés 1. fotó
hirdetés 2. fotóhirdetés 3. fotó
hirdetés 4. fotóhirdetés 5. fotó
hirdetés 6. fotó
+ 6 fotó
hirdetés 7. fotó
+ 3 fotó
hirdetés 7. fotóhirdetés 8. fotóhirdetés 9. fotó

Ingatlan adatai

  • Eladó vagy kiadó:Eladó
  • Település:Cegléd
  • Kategória:Lakás
  • Alkategória:Tégla
  • Alapterület:74 m2
  • Csere is:Nem
  • Hirdető:Cég
  • Élő videón megtekinthető:Nem
  • Szobaszám:4
  • Állapot:Új építésű
  • Hány szintes az ingatlan:2 szintes
  • Komfortosság:nincs megadva
  • Hányadik emeleti:1
  • Erkély:nincs megadva
  • Lift:nincs megadva
  • Parkolási lehetőség:Udvaron
  • Fűtés:nincs megadva
  • Bútorozottság:nincs megadva
  • Fényviszony:nincs megadva
  • Tájolás:D
  • Kilátás:nincs megadva
  • Internet:nincs megadva
  • Klíma:Van
  • Akadálymentesített:nincs megadva
  • Energiatanúsítvány:nincs megadva
  • Villany:Van
  • Víz:Van
  • Gáz:Nincs
  • Csatorna:Van
  • Kapcsolatfelvétel
Egressi Zsolt (tulajdo...
Egressi Zsolt (tulajdo...
+36-(30)-943-7452
Mondd meg a hirdetőnek, hogy a megveszLAK-on találtad a hirdetést.
Érdekel kedvezményes lakáshitel ajánlat is
Az ASZF-et és az Adatkezelési tájékoztatót elfogadom

Hitel ajánlatok

 

Ingatlan hirdetés leírása

Hirdetünk ön helyett!


Az ingatlan vételárát közvetítői díj nem terheli, közvetlenül a tulajdonossal kerülhet kapcsolatba. Elérhetősége: Egressi Zsolt +36309437452

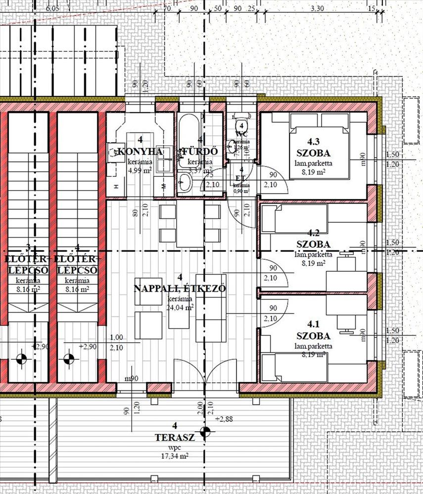
Cegléden, új utcában, új lakóparkban épült 4 lakásos társasház 1. emeletén 74 m²-es, 4 szobás, erkélyes (16 + 3, 2 nm ), kb. 100 Nm kizárólagos használatú kerttel és a társasház udvarán belül egy darab, burkolt kocsibeállóval rendelkező tégla lakás eladó.
A lakás nappalija déli fekvésű, a lakás hőszivattyús fűtésű, a+ energetikai besorolású.
A lakás új építésű, használatba vételi engedéllyel rendelkezik. FIX 3% lakáshitelre megvehető

Tetszett ez az eladó Ceglédi új építésű 4 szobás tégla lakás? Hívd fel a hirdetőt most, és tudj meg mindent erről az eladó tégla lakásról! Ha gondolod nézelődj tovább az eladó lakás Cegléd oldal hirdetései között. Ennek az eladó lakásnak az ára 63000000 Ft és mivel az alapterülete 74 négyzetméter, ezért az átlagos négyzetméterára 851351 HUF/m2.

Az eladó lakások menüpontban további hirdetések között is böngészhetsz. Ha van kedved, akkor böngészhetsz a Egressi Zsolt (tulajdonos) összes hirdetése között, vagy akár a/az Körültekintő Ingatlan - hirdetünk ön helyett! összes hirdetése között is.

 
 
© megveszLAK.hu - Az egyszerűen jó ingatlan hirdetési oldal