Eladó új építésű lakás - Cegléd
- INGYENES HIRDETÉS FELADÁS
Ingatlan adatai
- Eladó vagy kiadó:Eladó
- Település:Cegléd
- Kategória:Lakás
- Alkategória:Tégla
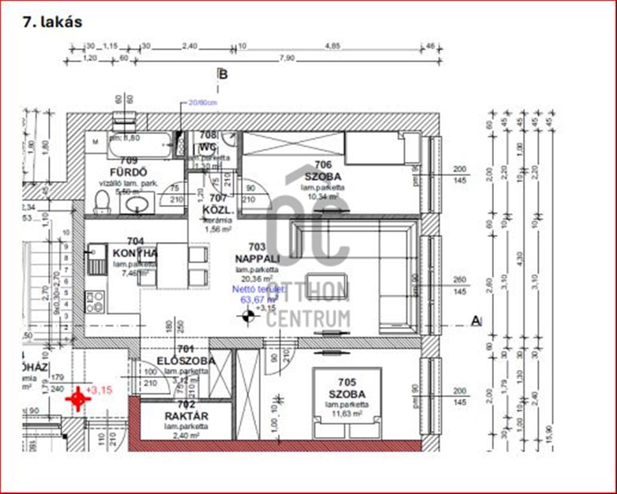
- Alapterület:66 m2
- Csere is:Nem
- Hirdető:Cég
- Élő videón megtekinthető:Nem
- Szobaszám:3
- Állapot:Új építésű
- Hány szintes az ingatlan:nincs megadva
- Komfortosság:nincs megadva
- Hányadik emeleti:nincs megadva
- Erkély:nincs megadva
- Lift:nincs megadva
- Parkolási lehetőség:nincs megadva
- Fűtés:nincs megadva
- Bútorozottság:nincs megadva
- Fényviszony:nincs megadva
- Tájolás:ÉNY
- Kilátás:Utcai
- Internet:nincs megadva
- Klíma:nincs megadva
- Akadálymentesített:nincs megadva
- Energiatanúsítvány:nincs megadva
- Villany:Van
- Víz:Van
- Gáz:Utcában
- Csatorna:Van
- Kapcsolatfelvétel

Törökné Varga Rita
+36-(70)-388-5251
Mondd meg a hirdetőnek, hogy a megveszLAK-on találtad a hirdetést.
Hitel ajánlatok
Ingatlan hirdetés leírása
Az energia tanusítvány készítése folyamatban van. Projekt bemu...
Az energia tanusítvány készítése folyamatban van.
Projekt bemutatása
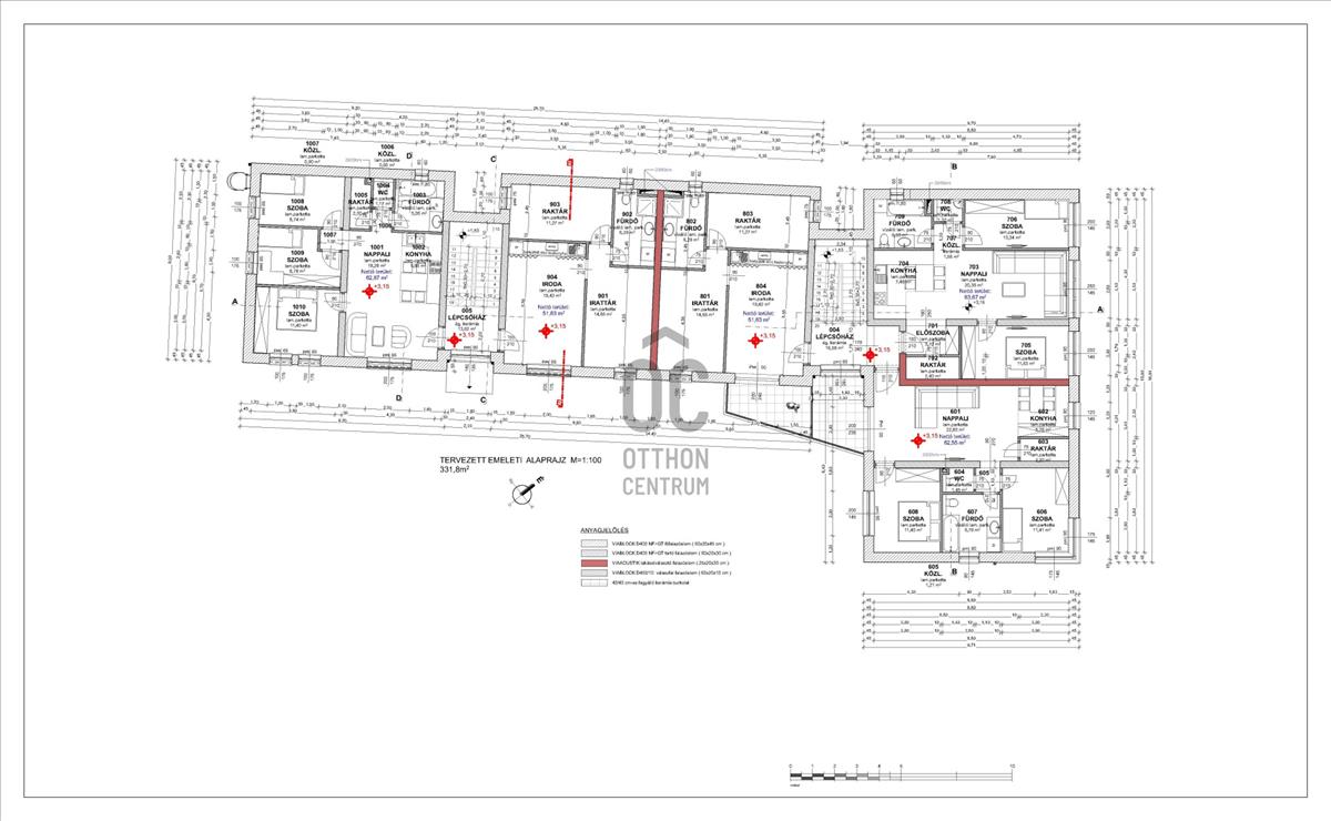
Modern, kis léptékű projekt keretében kínálunk eladásra 6 lakást és 4 irodát, amely ideális választás otthonnak vagy befektetésnek.
Főbb jellemzők:
- magas műszaki tartalom, korszerű megoldások
- megbízható beruházó
- átgondolt alaprajzok, élhető terek
- belső udvari gépkocsi beálló (opcionális)
- belvárosi lokáció
Szintenként 3 lakás és 2 iroda kerül kialakításra (51. 63- 63. 67 Nm)
Vételár: 52, 1 M - 57, 5 M
Finanszírozás:
akár otthon start (3%) hitelre is igényelhető (feltételek szerint, kivéve az iroda megnevezésű egységekre)
Kis lakásszámú társasház, nyugodt környezet, vegyes funkcióval (lakás + iroda).
Várható átadás: 2027 tavasza
A lakások pontos műszaki tartalmáért és finanszírozási lehetőségekért keresse értékesítő kollégánkat és kérjen időpontot még ma egy személyes egyeztetésre!
Az első lakás már elkelt! Ne maradjon le – válassza ki időben az Ön számára legmegfelelőbb lakást vagy irodát! Várjuk hívását! FIX 3% lakáshitelre megvehető
Tetszett ez az eladó Ceglédi új építésű 3 szobás tégla lakás? Hívd fel a hirdetőt most, és tudj meg mindent erről az eladó tégla lakásról! Ha gondolod nézelődj tovább az eladó lakás Cegléd oldal hirdetései között. Ennek az eladó lakásnak az ára 57500000 Ft és mivel az alapterülete 66 négyzetméter, ezért az átlagos négyzetméterára 871212 HUF/m2.
Az eladó lakások menüpontban további hirdetések között is böngészhetsz. Ha van kedved, akkor böngészhetsz a Törökné Varga Rita összes hirdetése között, vagy akár a/az Otthon Centrum Cegléd - Szolnoki út összes hirdetése között is.

