Eladó új építésű lakás - Debrecen
- INGYENES HIRDETÉS FELADÁS
Ingatlan adatai
- Feladva:68 napja a megveszLAK-on
- Eladó vagy kiadó:Eladó
- Település:Debrecen
- Kategória:Lakás
- Alkategória:Tégla
- Alapterület:62 m2
- Csere is:Nem
- Hirdető:Cég
- Élő videón megtekinthető:Nem
- Szobaszám:3
- Állapot:Új építésű
- Hány szintes az ingatlan:nincs megadva
- Komfortosság:nincs megadva
- Hányadik emeleti:nincs megadva
- Erkély:nincs megadva
- Lift:nincs megadva
- Parkolási lehetőség:nincs megadva
- Fűtés:nincs megadva
- Bútorozottság:nincs megadva
- Fényviszony:nincs megadva
- Tájolás:D
- Kilátás:Udvari
- Internet:nincs megadva
- Klíma:nincs megadva
- Akadálymentesített:nincs megadva
- Energiatanúsítvány:nincs megadva
- Villany:Van
- Víz:Van
- Gáz:Nincs
- Csatorna:Van
- Kapcsolatfelvétel

Tóth Ferenc
+36-(70)-716-9076
Mondd meg a hirdetőnek, hogy a megveszLAK-on találtad a hirdetést.
Hitel ajánlatok
Ingatlan hirdetés leírása
A megjelölt vételár, szerződéskötéskor 100 % befizetésével érv...
A megjelölt vételár, szerződéskötéskor 100 % befizetésével érvényes!
Egyéb fizetési ütemezés esetén az ár változik, erről kérjen bővebb felvilágosítást! !
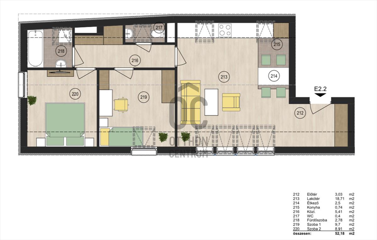
Ez az ingatlan a 2. emeleten, a tetőtérben helyezkedik el, hasznos alaptarületet : 52, 18 m2, de az 1, 90 méter alatti terület is jól kihasználható, mivel a főfal, attika fal: 1, 2 méter magas, onnan indul a tető, tehát az alatti lévő terület könnyen bútorozható.
Projekt bemutatása
Debrecen kedvelt, és egyik legértékálóbb részén, a Hatvan Utcai kert csendes utcájában, közel a Kenézy kórházhoz épül, egy 5 lakásos társasház.
Az ingatlan a legmodernebb építőanyagokkal, szerkezeti elemekkel lesz megépítve.
Minden lakás terve átgondolt, élhető tereket tartalmaz, jó kiosztású, modern elrendezésű.
Várható átadás : ha minden jól megy 2026 év vége, de max 2027 tavasza.
A társasház felépítése :
Földszinten : 1 db lakás ( 74, 42 m2 ) + teraszkapcsolattal ( 9, 77 m2 ), 5 db gépkocsitároló és 5 db tároló
Emelet : 2 db lakás erkéllyel ( egyik lakás :74, 42 m2 + 9, 77 m2 erkély, a másik lakás : 62, 87 m2 + 4, 1 m2 erkély )
Tetőtér : 2 db lakás ( egyik lakás : 57, 2 m2, a másik lakás: 52, 18 m2 )
Műszaki jellemzői :
- Leier 30 nf tégla főfalak
- Leier 10 Nf tégla válaszfalak
- homlokzati, lábazati szigetelés : 15 cm polisztirol
- nyeregtetős tetőszerkezet, betoncserép héjazással
- nyílászárók : műanyag, 3 rtg - ű üvegezés a 6 légkamrás profilban ( prémimum német minőség, szinezett kivitelben )
- fűtés : levegő - víz hőszivattyú alkalmazással lesz megvalósítva, padló hőleadókkal, vizes helyiségekben törölköző szárítóval
- árnyékolás : elektromos vezérlésű aluminium redőny
- erkély : edzett üveg betétekkel
- kaputelefonos és kódzárós beléptető rendszer
- udvar : térkövezés, füvesítés, parkosítás, kandellábelek az udvaron kivitelezésre kerülnek
Műszaki tartalom:
- beltéri ajtók : borovi dekorfóliás, 5 féle választható szinben
- hidegburkolat : 8. 200 Ft/m2 bruttó ár
- melegburkolat : 8. 500 FT/m2 bruttó ár
- zuhanykabin : 89. 280 Ft/db nettó ár
- mosdó : 25. 500 Ft/db nettó ár
- fürdőkád : 101. 500 Ft/db nettó ár
- beépített wc : 58. 600 Ft/db nettó ár
- zuhany csaptelep : 26. 280 Ft/db nettó ár
- mosdó csaptelep : 25. 700 Ft/db nettó ár
- kádtöltő csaptelep : 29. 500 Ft/db nettó ár
Az ingatlan előnyei : nagyon jó lokáció, kis lakóközösség, modern kivitelezés, a korszerű technológiák alkalmazása miatt kiváló energetikai besorolás, alacsony fenntartási költség, stb. . .
Ha felkeltettem az érdeklődését, kérem hívjon bizalommal, akár hétvégén is, adok tájékoztatást, és amennyiben érdeks lehet a helyszínen bemutatom az ingatlant.
Köszönöm, hogy elolvasta! ! ! FIX 3% lakáshitelre megvehető
Tetszett ez az eladó Debreceni új építésű 3 szobás tégla lakás? Hívd fel a hirdetőt most, és tudj meg mindent erről az eladó tégla lakásról! Ha gondolod nézelődj tovább az eladó lakás Debrecen oldal hirdetései között. Ennek az eladó lakásnak az ára 65900000 Ft és mivel az alapterülete 62 négyzetméter, ezért az átlagos négyzetméterára 1062903 HUF/m2.
Az eladó lakások menüpontban további hirdetések között is böngészhetsz. Ha van kedved, akkor böngészhetsz a Tóth Ferenc összes hirdetése között, vagy akár a/az Otthon Centrum Debrecen - Hatvan utca összes hirdetése között is.

