Eladó újszerű állapotú lakás Debrecen
| Kedvencbe | Megosztás | Árfigyelő |
| FIX 3% lakáshitelre megvehető | ||
| 75 000 000 HUF | ||
Ingatlan adatai
- Eladó vagy kiadó:Eladó
- Település:Debrecen
- Kategória:Lakás
- Alkategória:Tégla
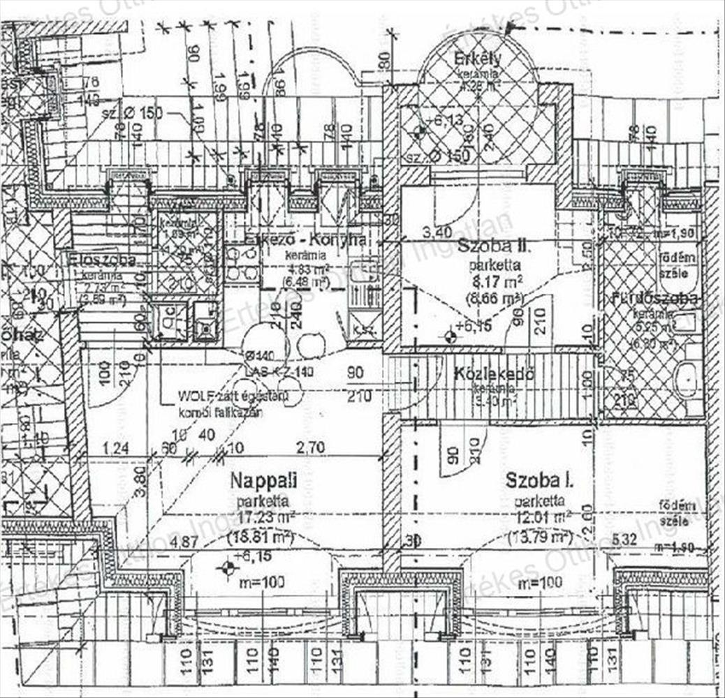
- Alapterület:56 m2
- Csere is:Nem
- Hirdető:Cég
- Élő videón megtekinthető:Nem
- Szobaszám:3
- Állapot:Újszerű, kitűnő
- Hány szintes az ingatlan:2 szintes
- Komfortosság:nincs megadva
- Hányadik emeleti:2
- Parkolási lehetőség:Garázsban
- Fűtés:Gáz (cirko)
- Bútorozottság:Bútorozott
- Fényviszony:nincs megadva
- Tájolás:D
- Kilátás:nincs megadva
- Internet:nincs megadva
- Klíma:Van
- Akadálymentesített:nincs megadva
- Energiatanúsítvány:nincs megadva
- Villany:Van
- Víz:Van
- Gáz:Van
- Csatorna:Van
- Közös költség:8 000 Ft
- Üzenetküldés
- Hívás


Hitel ajánlat
Ingatlan hirdetés leírása
Kiváló állapotú, 3 szobás téglalakás eladó Debrecen belvárosáb...
Fedezze fel ezt a kiváló állapotú, tágas és világos lakást Debrecen szívében, amely ideális otthon mindazoknak, akik modern, igényes és kényelmes életstílusra vágynak.A 2007-ben épült, tégla szerkezetű ingatlan 56/64 m² alapterületű (tetőtéri kialakítás miatt bruttó 64 m²), nappalival és két külön nyíló szobával és gondosan karbantartott belső terekkel rendelkezik.
Főbb jellemzők:
Tégla építés, kiváló műszaki állapot
3 szoba, praktikus elrendezés
Cirkófűtés és split klíma
Dél tájolás – napfényes, világos lakás
Utcafronti kilátás
Bútorozott (benne van az árban! ), Azonnal költözhető
Alacsony fenntartási költség (közös költség: 8. 000 Ft)
14, 5 m²-es garázs külön megvásárolható (+10 M Ft)
A lakás kiváló elhelyezkedése biztosítja, hogy minden fontos intézmény, bolt, iskola, és közlekedési csomópont karnyújtásnyira legyen.
Akár befektetésben gondolkodik, akár saját otthont keres, ez az ingatlan hosszú távon is értékálló döntés.
Ár: 75 000 000 Ft
Érdeklődjön még ma, és fedezze fel személyesen ezt a különleges lakást Debrecen belvárosában! FIX 3% lakáshitelre megvehető

