Eladó újszerű állapotú lakás - Debrecen
- INGYENES HIRDETÉS FELADÁS
Ingatlan adatai
- Feladva:66 napja a megveszLAK-on
- Eladó vagy kiadó:Eladó
- Település:Debrecen
- Kategória:Lakás
- Alkategória:Tégla
- Alapterület:326 m2
- Csere is:Nem
- Hirdető:Cég
- Élő videón megtekinthető:Nem
- Szobaszám:13
- Állapot:Újszerű, kitűnő
- Hány szintes az ingatlan:5 szintes
- Komfortosság:nincs megadva
- Kertkapcsolatos:Igen
- Hányadik emeleti:Földszint
- Erkély:nincs megadva
- Lift:Nincs
- Parkolási lehetőség:nincs megadva
- Fűtés:Gáz (cirko)
- Bútorozottság:nincs megadva
- Fényviszony:Napfényes
- Tájolás:NY
- Kilátás:Panorámás
- Internet:nincs megadva
- Klíma:nincs megadva
- Akadálymentesített:nincs megadva
- Energiatanúsítvány:nincs megadva
- Villany:Van
- Víz:Van
- Gáz:nincs megadva
- Csatorna:Van
- Kapcsolatfelvétel

Szabó Gabriella
+36-(30)-217-7711
Mondd meg a hirdetőnek, hogy a megveszLAK-on találtad a hirdetést.
Referencia szám: LK058724
Hitel ajánlatok
Ingatlan hirdetés leírása
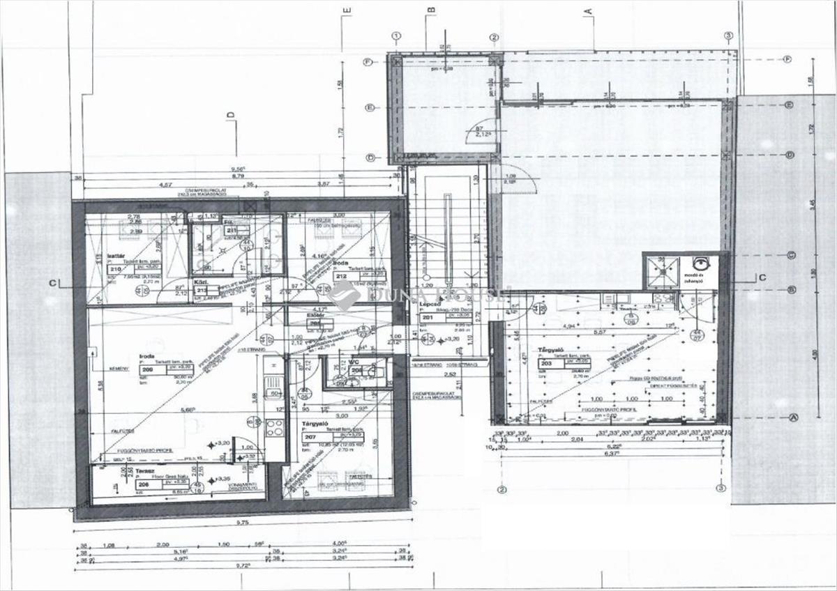
2000-ben épült irodaház az Apafi utcában!
Ritka lehetőség: Többcélúan hasznosítható ingatlan az apafi UTCÁBAN!
Debrecen kedvelt részén, az Apafi utcán kínálok megvásárlásra egy 2021-ben elkészült, modern műszaki tartalommal rendelkező, jelenleg irodaházként nyilvántartott ingatlant, amely kiemelkedő befektetési potenciált rejt magában.
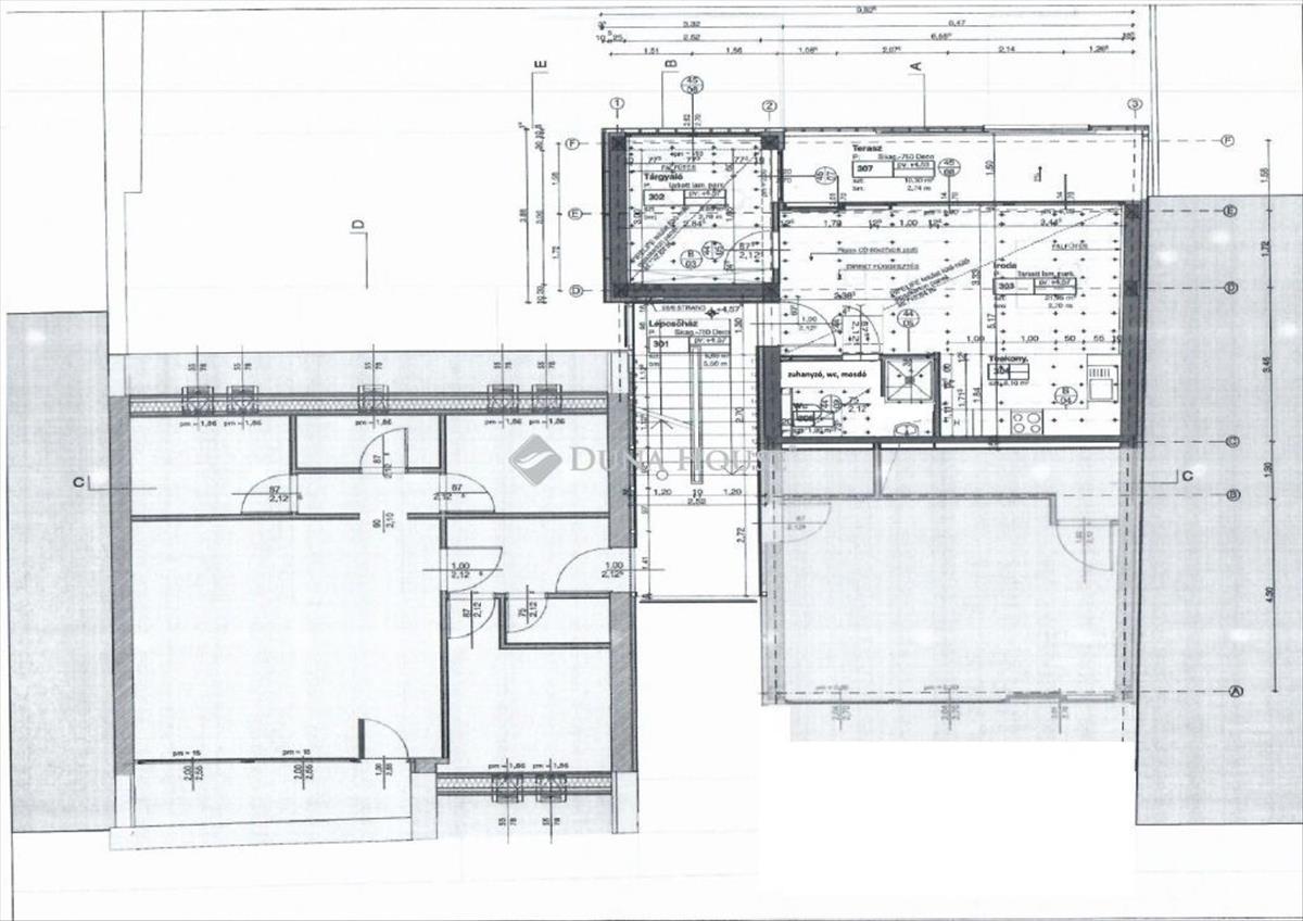
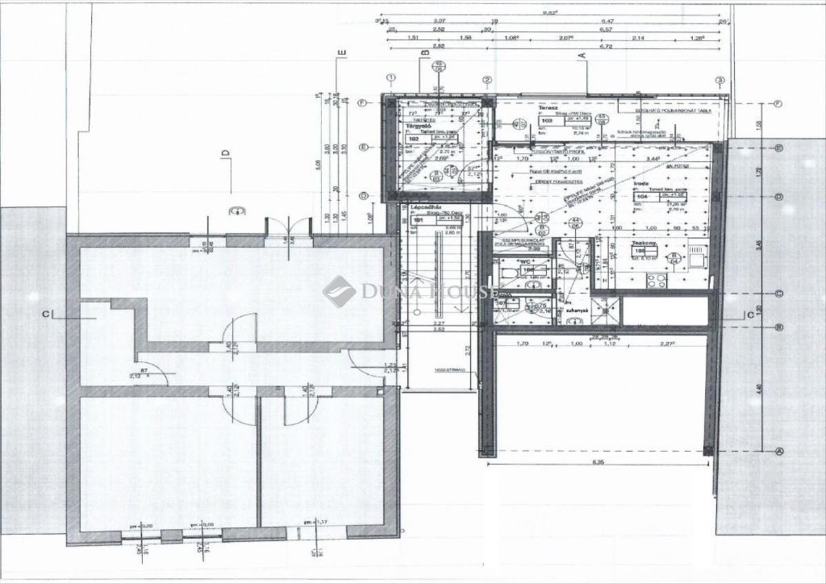
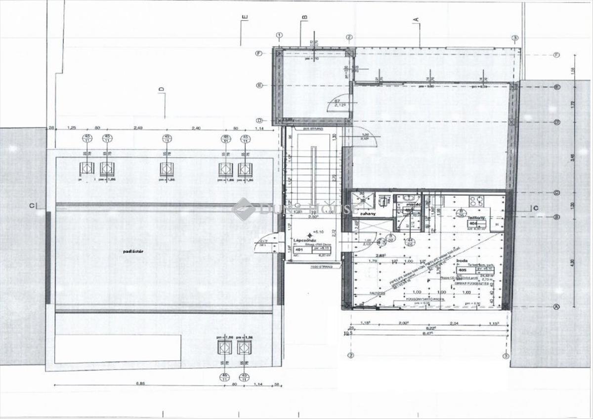
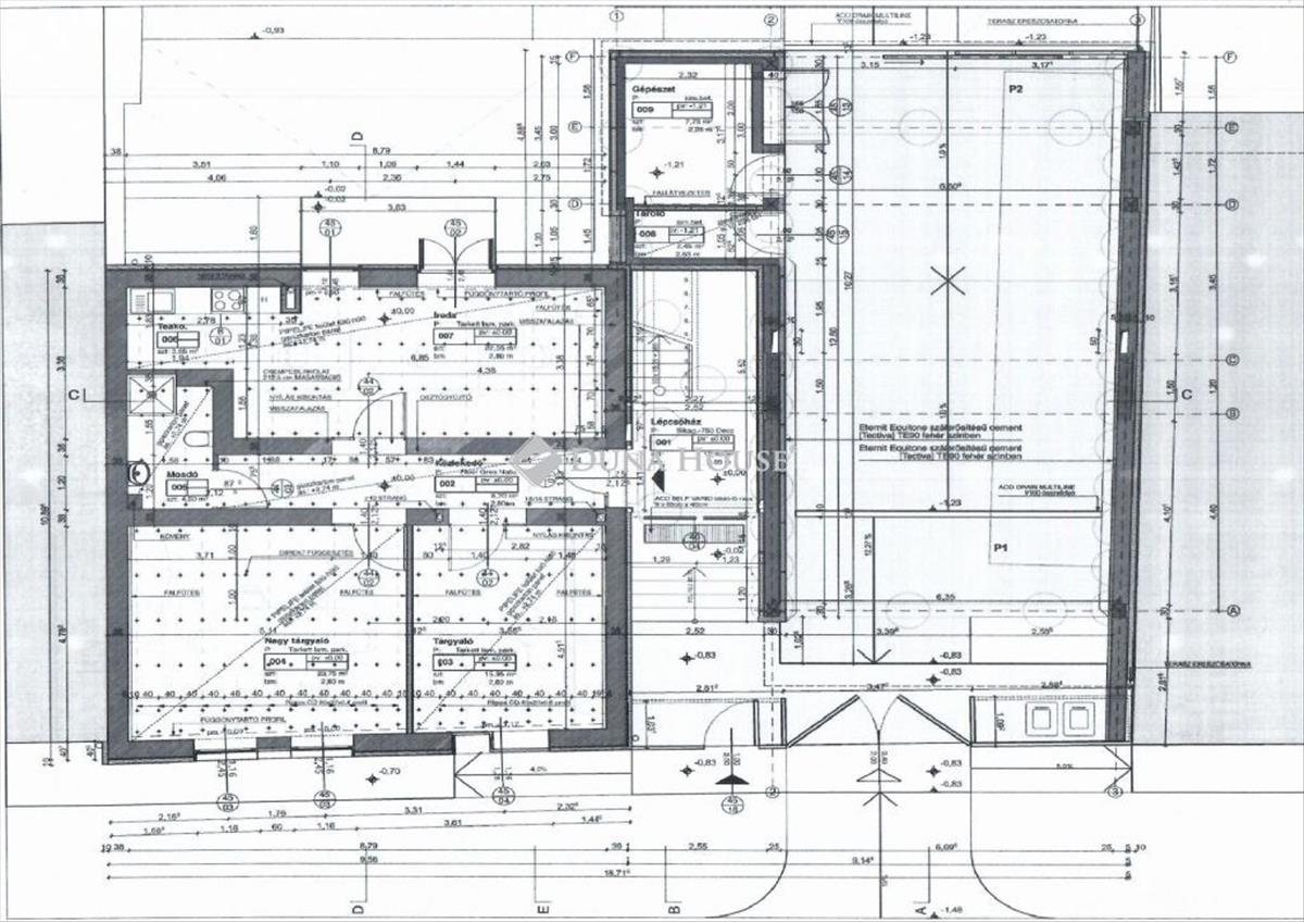
A 609 nm -es telken lévő épületben 6 külön bejáratú ingatlanrész található, amelyek közös lépcsőházból nyílnak. a kialakítás rendkívül kedvező, hiszen 2 nagyobb vagy akár 4 kisebb egység hivatalosan lakássá minősíthető, így az ingatlan kiválóan alkalmas:
- lakáscélú hasznosításra
- hosszú távú bérbeadásra
- rövid távú kiadásra
- vagy továbbra is irodaházként történő üzemeltetésre.
Az ingatlan minden egysége saját konyhával, zuhanyzóval és WC-vel rendelkezik, a közműfogyasztások pedig külön mérhetőek, ami kifejezetten ideálissá teszi befektetési célú hasznosításra.
Főbb paraméterek:
- Földszint: 3 szobás, 89, 22 m² + 6, 35 m² kertkapcsolatos terasz
- Félemelet: 1, 5 szobás, 43, 31 m² + 10, 15 m² erkély
- 1. emelet: 1 szobás, 39, 75 m²
- 1. emelet: 4 szobás, 70, 89 m² + 6, 65 m² erkély
- 1, 5 emelet: 1, 5 szobás, 42, 9 m² + 10, 3 m² erkély
- 2. emelet: 1 szobás, 40, 31 m² hasznos alapterület.
Az udvarban 9 autó parkolása biztosított, ebből 3 fedett helyen, továbbá rendelkezésre áll egy gépészeti helyiség és egy tároló is.
A műszaki tartalom különösen erős:
- hőszivattyús fűtés-hűtés
- 18 kW-os napelem rendszer
- riasztóval védett épület
- akár nullához közeli rezsi.
Ez az ingatlan nem egyszerűen egy épület, hanem egy rugalmasan hasznosítható, modern befektetési eszköz Debrecenben, amely egyszerre kínál értékállóságot, hozamlehetőséget és többféle üzleti modellt.
További információért és személyes megtekintésért keressen bizalommal!
Referencia szám: lk058724-ml Hitel.hu - Hasonlítsa össze a bankok lakáshitel ajánlatait
Tetszett ez az eladó Debreceni újszerű állapotú 13 szobás tégla lakás? Hívd fel a hirdetőt most, és tudj meg mindent erről az eladó tégla lakásról! Ha gondolod nézelődj tovább az eladó lakás Debrecen oldal hirdetései között. Ennek az eladó lakásnak az ára 459000000 Ft és mivel az alapterülete 326 négyzetméter, ezért az átlagos négyzetméterára 1407975 HUF/m2.
Az eladó lakások menüpontban további hirdetések között is böngészhetsz. Ha van kedved, akkor böngészhetsz a Szabó Gabriella összes hirdetése között, vagy akár a/az Duna House Debrecen - költözés alatt összes hirdetése között is.

