Eladó átlagos állapotú lakás - Érd
- INGYENES HIRDETÉS FELADÁS
Ingatlan adatai
- Eladó vagy kiadó:Eladó
- Település:Érd
- Kategória:Lakás
- Alkategória:Tégla
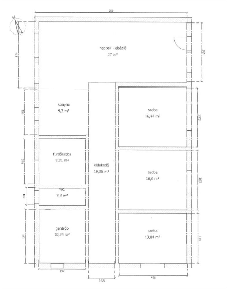
- Alapterület:135 m2
- Csere is:Nem
- Hirdető:Cég
- Élő videón megtekinthető:Nem
- Szobaszám:4 + 1 fél
- Állapot:Átlagos állapotú
- Hány szintes az ingatlan:Földszintes
- Komfortosság:nincs megadva
- Hányadik emeleti:nincs megadva
- Erkély:nincs megadva
- Lift:Nincs
- Parkolási lehetőség:Beállóban
- Fűtés:Elektromos
- Bútorozottság:nincs megadva
- Fényviszony:nincs megadva
- Tájolás:nincs megadva
- Kilátás:nincs megadva
- Internet:nincs megadva
- Klíma:nincs megadva
- Akadálymentesített:nincs megadva
- Energiatanúsítvány:nincs megadva
- Villany:nincs megadva
- Víz:nincs megadva
- Gáz:Telken belül
- Csatorna:Telken belül
- Kapcsolatfelvétel

Cséffalvay-Hunkár Zsuz...
+36-20-339-1246
Mondd meg a hirdetőnek, hogy a megveszLAK-on találtad a hirdetést.
Ingatlan hirdetés leírása
Felújított, tágas családi otthon saját kerttel Érd egyik legke...
Felújított, tágas családi otthon saját kerttel Érd egyik legkedveltebb részén! Kivételes lehetőség Érd Parkváros szívében!
Ez a 2 lakásos családiház alsó szintjén lévő 135 nm-es, 4 + egy félszobás, teljeskörűen felújított lakás, amely a modern kényelem és az otthonos hangulat tökéletes egyensúlyát kínálja.
A 2018-ban végzett felújítás során minden megújult: víz-, villany- és csatornahálózat, valamint új, korszerű nyílászárók kerültek beépítésre. a fűtést energiatakarékos elektromos norvég panelek biztosítják, amelyek egyenletes meleget és alacsony fenntartási költséget nyújtanak.
A melegvízről villanybojler gondoskodik.
A lakás elrendezése átgondolt és praktikus: a világos nappali, a külön nyíló hálószobák és a félszoba ( ami jelenleg gardróbként funkcionál, de akár plusz 1 szoba kialakítására is megfelelő) ideális választás akár nagyobb család számára is.
A tágas terek, minőségi burkolatok és ízléses kialakítás azonnal otthonos hangulatot árasztanak.
Saját, szeparált kertrész is tartozik az ingatlanhoz, amely kiváló helyszín pihenésre, grillezésre vagy gyerekeknek biztonságos játéktérnek.
Privát kertrész 300 nm körül.
A lakás jogilag rendezett, hitelezhető. Ügyvédi használati megosztással rendelkezik és külön mérőórákkal.
A két lakás teljesen külön, egymástól független bejárattal rendelkezik, 2 utcáról van a bejárás.
Ára: 89 000 000 Ft
Ez az ingatlan ritka lehetőség Érden modern, felújított, saját kerttel, kiváló elhelyezkedéssel.
Környék előnyei:
Csendes, rendezett, zöldövezeti környezet, mégis mindenhez közel. Iskola, óvoda, boltok és tömegközlekedés pár percen belül elérhető, így ideális otthon mind családoknak, mind nyugodt életet keresőknek
Az OTP Bankcsoport teljes körű ügyintézéssel áll az eladók és a vevők rendelkezésére! Az adásvételi szerződés megkötéséhez igény szerint megbízható ügyvédi közreműködést és sorban állás nélküli hitel tanácsadást biztosítunk ügyfeleink részére! További információkért várom megtisztelő hívását a hét bármely napján! FIX 3% lakáshitelre megvehető


