Eladó új építésű lakás - Érd
- INGYENES HIRDETÉS FELADÁS
Ingatlan adatai
- Eladó vagy kiadó:Eladó
- Település:Érd
- Kategória:Lakás
- Alkategória:Tégla
- Alapterület:164 m2
- Csere is:Nem
- Hirdető:Cég
- Élő videón megtekinthető:Nem
- Szobaszám:7
- Állapot:Új építésű
- Hány szintes az ingatlan:nincs megadva
- Komfortosság:nincs megadva
- Hányadik emeleti:Földszint
- Erkély:Nincs
- Lift:Nincs
- Parkolási lehetőség:nincs megadva
- Fűtés:Elektromos
- Bútorozottság:nincs megadva
- Fényviszony:nincs megadva
- Tájolás:nincs megadva
- Kilátás:nincs megadva
- Internet:nincs megadva
- Klíma:nincs megadva
- Akadálymentesített:Nem akadálymentesített
- Energiatanúsítvány:nincs megadva
- Villany:nincs megadva
- Víz:nincs megadva
- Gáz:nincs megadva
- Csatorna:nincs megadva
- Kapcsolatfelvétel

Norbert
+36-(70)-383-3318
Mondd meg a hirdetőnek, hogy a megveszLAK-on találtad a hirdetést.
Hitel ajánlatok
Ingatlan hirdetés leírása
Egy otthon, ahol a jövő már jelen van. kétgenerációs lakás Érd...
Egy otthon, ahol a jövő már jelen van. Kétgenerációs lakás Érdliget zöld szívében
Képzeld el, hogy reggelente virágillatra ébredsz, a kertedben harmat csillog a fűszálakon, és a teraszodról nézve a világ egyszerűen nyugodtabbnak tűnik. Ez az érzés fogad Érdliget egyik legmodernebb társasházára, Budapest-Diósd-Érd hármas határán, ahol a természet közelsége és a technológia kényelme tökéletes egyensúlyban van.
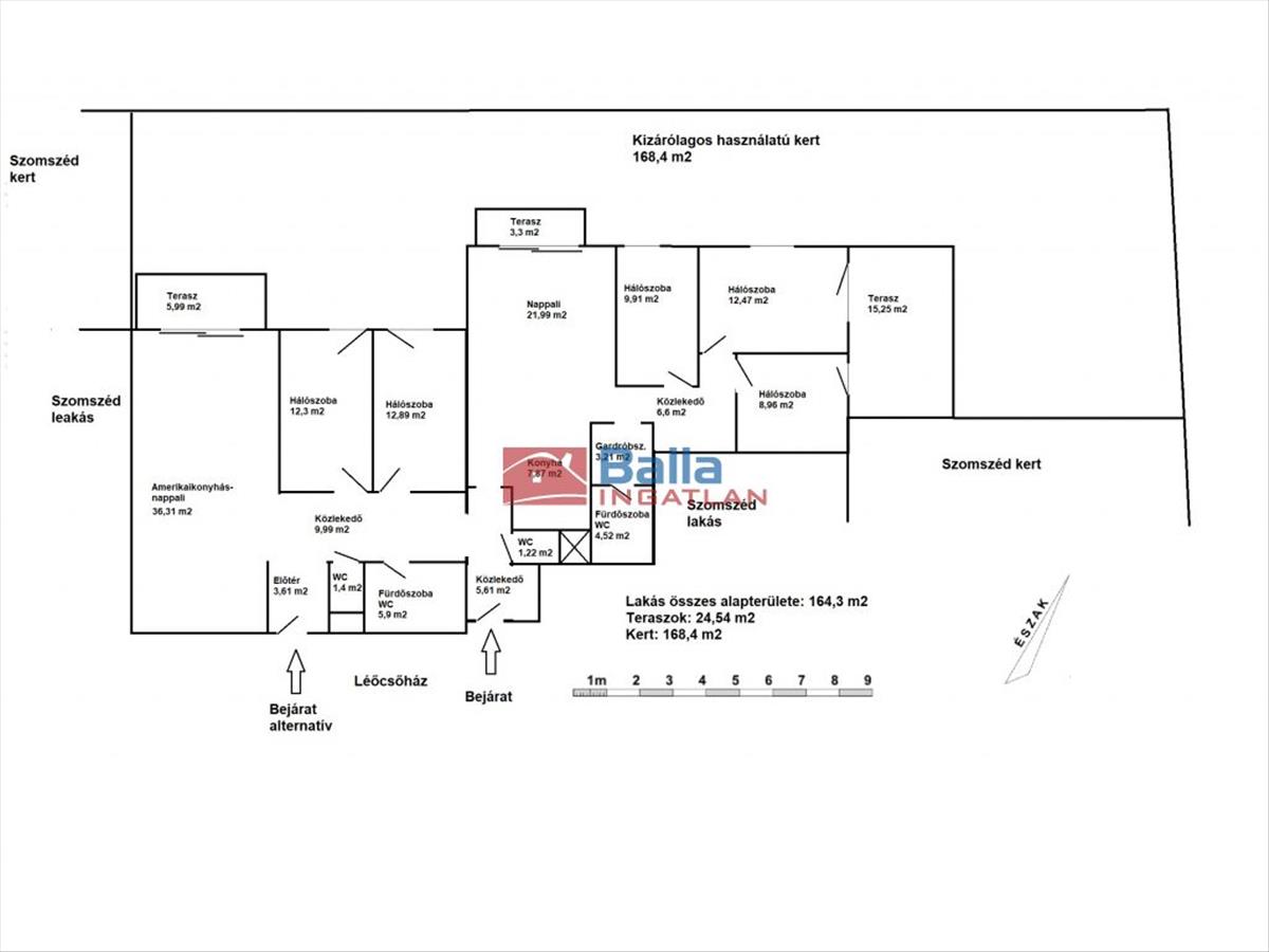
Ez a földszinti, új építésű lakás nem csupán tágas - 164, 3 m² lakótér, 24, 54 m²-nyi terasz és 168, 36 m² saját kert - hanem okosan megtervezett is. Kétgenerációs kialakításának köszönhetően akár külön bejárattal két lakrészként, akár egybenyitva is használható, így ideális választás lehet nagycsaládosoknak, összeköltözőknek vagy azoknak, akik a rugalmasságot értékelik.
A nagyobb, 89, 23 m²-es lakrész nappali + 3 hálószobás, két teraszos, a másik 75, 3 m²-es, nappali + 2 hálószobás. Teraszos, mindkettő világos, jól tagolt, és a kertkapcsolatnak köszönhetően a természet szinte beköltözik az otthonodba.
Komfort, amit érezni fogsz. Technológia, amit alig veszel észre
Az épület a+ energetikai besorolású, hőszivattyús fűtéssel és mennyezethűtéssel, padlótemperálással. Mindez helyiségenként vezérelhető, akár távolról, telefonról is. a H-tarifás rendszernek köszönhetően a rezsiköltségek alacsonyak, miközben a komfortérzet maximális.
A lakás okosotthon előkészítéssel, hanggátló falakkal, biztonsági, hangszigetelt ajtókkal, a társasház lifttel és kamerás közösségi terekkel rendelkezik. a teremgarázsban elektromos autótöltő és kerékpártároló is elérhető, a garázs megvásárlása kötelező. De cserébe egy külön elektromos főmérő is jár hozzá.
A belső kialakítás a te igényeidhez igazítható: választható ajtók, burkolatok, redőnyelőkészítés, a tágas fürdőszobákkal, a teraszokkal és a lakáshoz képest óriási kerttel minden adott ahhoz, hogy ne csak beköltözz, hanem megérkezz, haza.
A kert, a saját zöld szigeted
A füvesített kert nemcsak szép, hanem élhető is, amely megduplázza az ingatlan életterét a meleg évszakokban. a kerti fali csap a locsoláshoz, árnyékos terasz a délutáni pihenéshez, és elég tér ahhoz, hogy akár egy kis játszósarkot vagy nyári étkezőt is kialakíts. Itt nemcsak lakni fogsz, hanem élni.
Ez az otthon azoknak szól, akik nem érik be kevesebbel, mint a legjobbal. Akik nemcsak négy falat keresnek, hanem egy olyan otthont, amilyet mindenki szeretne. Ha szeretnéd megtapasztalni, milyen érzés lehet itt élni, szívesen megmutatom, és garantálom, hogy már az első pillanatban otthon fogod érezni magad.
Környezet
Érdliget Budapesttől alig félórányira, Érd egyik legkedveltebb, legzöldebb részén terül el, ahol a természet közelsége és a modern városi infrastruktúra tökéletes harmóniában él egymás mellett. Itt a reggelek madárcsicsergéssel indulnak, a délutánokat árnyas sétányok és csendes utcák kísérik, az estéket pedig a kertvárosi nyugalom öleli körül.
A környék kiválóan megközelíthető: az M7-es autópálya, az M0-s körgyűrű és a 7-es főút közelsége miatt a főváros, Diósd és Törökbálint is percek alatt elérhető. Tömegközlekedéssel is könnyű a közlekedés, buszjáratok, vasútállomás, és a budapesti agglomerációhoz illeszkedő menetrendek gondoskodnak arról, hogy ne kelljen kompromisszumot kötni a mobilitás terén.
Érdliget infrastruktúrája folyamatosan fejlődik: modern óvodák, iskolák, bevásárlóközpontok, sportlétesítmények és egészségügyi szolgáltatások mind karnyújtásnyira. a környék családbarát, biztonságos, és egyre népszerűbb azok körében, akik nemcsak lakni, hanem élni szeretnének.
Ez a városrész azoknak szól, akik a természet közelségét keresik, de nem akarnak lemondani a modern élet kényelméről. Érdliget nemcsak egy cím, hanem egy új kezdet, egy új ritmus, egy otthon, ahol minden nap egy kicsit könnyebb, szebb és nyugodtabb. Hitel.hu - Hasonlítsa össze a bankok lakáshitel ajánlatait
Tetszett ez az eladó Érdi új építésű 7 szobás tégla lakás? Hívd fel a hirdetőt most, és tudj meg mindent erről az eladó tégla lakásról! Ha gondolod nézelődj tovább az eladó lakás Érd oldal hirdetései között. Ennek az eladó lakásnak az ára 230760000 Ft és mivel az alapterülete 164 négyzetméter, ezért az átlagos négyzetméterára 1407073 HUF/m2.
Az eladó lakások menüpontban további hirdetések között is böngészhetsz. Ha van kedved, akkor böngészhetsz a Norbert összes hirdetése között, vagy akár a/az Balla Ingatlan összes hirdetése között is.

