Eladó új építésű lakás Érd
| Kedvencbe | Megosztás | Árfigyelő |
| Kedvezményes lakáshitel ajánlatok | ||
| 248 000 000 HUF | ||
Ingatlan adatai
- Eladó vagy kiadó:Eladó
- Település:Érd
- Kategória:Lakás
- Alkategória:Tégla
- Alapterület:181 m2
- Csere is:Nem
- Hirdető:Cég
- Élő videón megtekinthető:Nem
- Szobaszám:6
- Állapot:Új építésű
- Hány szintes az ingatlan:nincs megadva
- Komfortosság:nincs megadva
- Kertkapcsolatos:Igen
- Hányadik emeleti:nincs megadva
- Erkély:Van
- Lift:Van
- Parkolási lehetőség:nincs megadva
- Fűtés:nincs megadva
- Bútorozottság:nincs megadva
- Fényviszony:nincs megadva
- Tájolás:ÉK
- Kilátás:Kertre néző
- Internet:nincs megadva
- Akadálymentesített:nincs megadva
- Energiatanúsítvány:nincs megadva
- Villany:Van
- Víz:Van
- Gáz:Nincs
- Csatorna:Van
- Üzenetküldés
- Hívás


Hitel ajánlat
Ingatlan hirdetés leírása
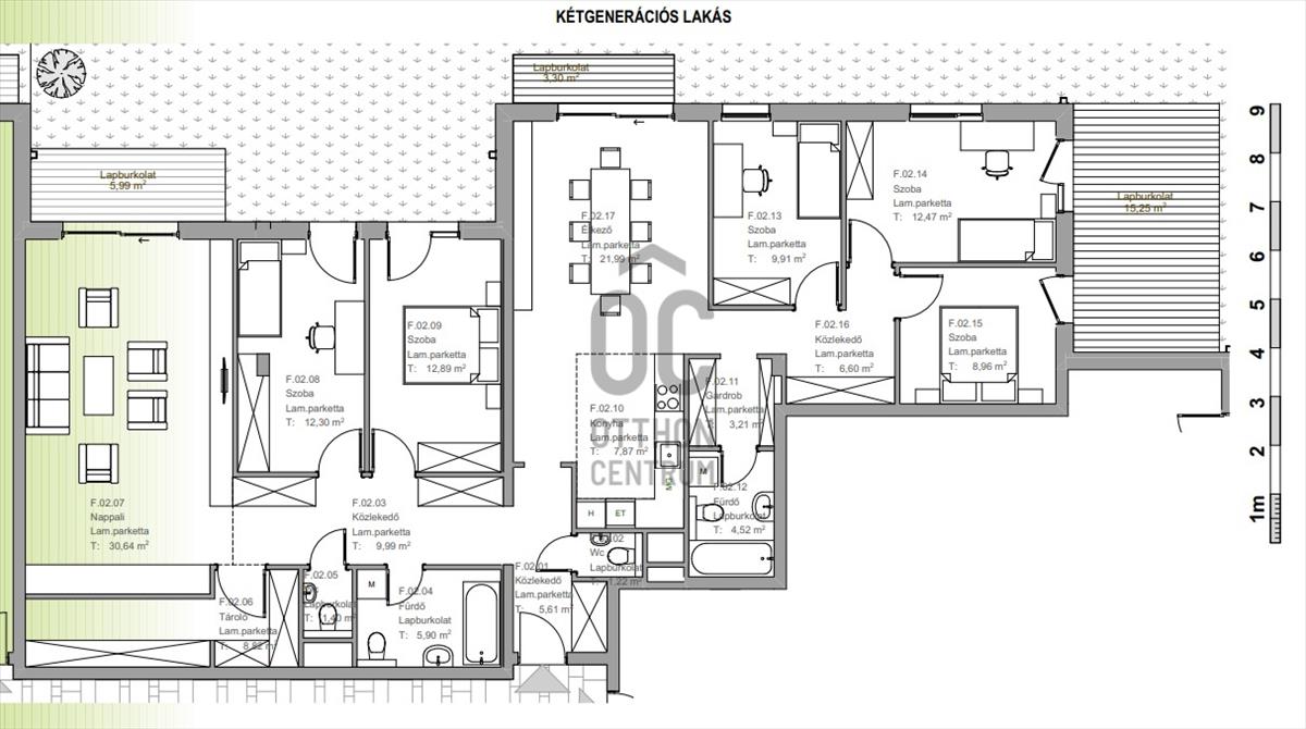
Az épület földszintjén elhelyezkedő lakás extra nagy méretű, n...
Az épület földszintjén elhelyezkedő lakás extra nagy méretű, nettó alapterülete 164, 3 nm. Elvileg két-generációs kialakítású, de a beruházó még egyedi elképzeléseket is meg tud valósítani. Akár két különálló lakás is kialakítható belőle.Összesen 24, 5 nm -en három terasza is van, amelyekre a nappaliból, étkezőből és 2 hálószobából lehet kimenni. Saját használatú kertje pedig mintegy 168 nm.
Az ingatlan alklmas üzleti tevékenységre is, - kisebb ügyfélforgalommal járól kereskedelmi, -vagy szolgáltató tevékenység végzésére, - akár irodának, bemutató teremnek.
Ebben az esetben kialakítható egy közvetlen utcai megközelíthetősége is.
ÁFA-tartalma 27 %, tehát céges vásárlás esetén ez visszaigényelhető.
Projekt bemutatása
Érdliget nyugodt családi házas övezetében 11 lakásos társasház épül aa+ energetikai besorolással.
Az épület 4 szintes: - garázs-szinten összesen 25 beálló közül lehet választani, - elektromos gk-töltési lehetőséggel, kerékpár tárolóval
- földszinten kertkapcsolatos lakások lesznek
- 1. És 2. emeleten pedig erkélyes/tetőteraszos lakások kerülnek kialakításra
A szintek közötti akadálymentes közlekedést lift biztosítja.
Főbb műszaki paraméterek:
• hőszivattyús hűtés/fűtés
• Lakásonként videokaputelefon
• Közösségi terekben kamerahálózat (CCTV)
• Lakáselválasztó hang gátló falak
• Hanggátló biztonsági lakásbejárati ajtók
• Lakásonként egyedi fogyasztásmérők (hidegvíz, melegvíz, fűtés, áram)
• Okosotthon alaphálózat, amely bővíthető
• Fszt. -I lakások padlótemperálás
• Önálló wc helyiség és/vagy duplakomfortos kialakítás
• 3 rétegű hőszigetelő üvegezésü nyílászárók
• Redőnyelőkészítés redőnyözési opcióval
• Vevők egyedi igénye alapján történő belső burkolási lehetőség
A lakásokhoz mélygarázsban gk-beállók, illetve tárolók is vásárolhatóak.
Az építkezés 2024. Márciusában kezdődött, várható kulcsrakész átadás: 2025. 4. Név. Hitel.hu - Hasonlítsa össze a bankok lakáshitel ajánlatait

