Eladó új építésű lakás Győr
| Kedvencbe | Megosztás | Árfigyelő |
| FIX 3% lakáshitelre megvehető | ||
| 49 990 000 HUF | ||
Ingatlan adatai
- Eladó vagy kiadó:Eladó
- Település:Győr
- Kategória:Lakás
- Alkategória:Tégla
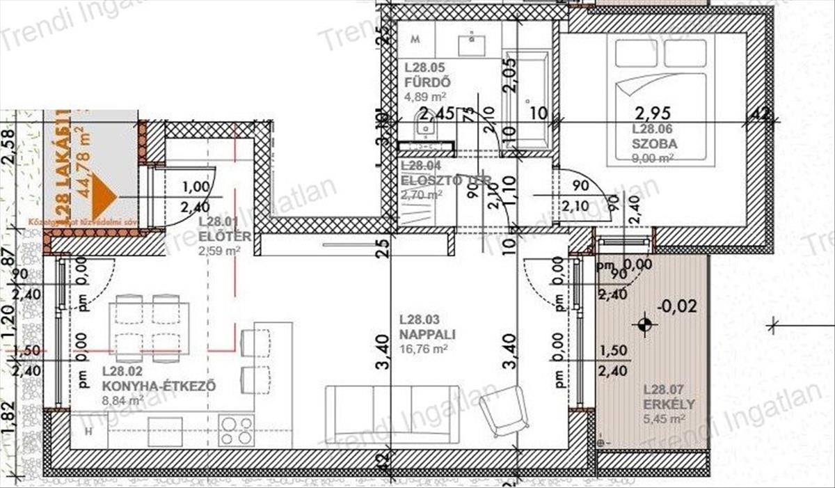
- Alapterület:45 m2
- Csere is:Nem
- Hirdető:Cég
- Élő videón megtekinthető:Nem
- Szobaszám:2
- Állapot:Új építésű
- Hány szintes az ingatlan:nincs megadva
- Komfortosság:nincs megadva
- Hányadik emeleti:Földszint
- Parkolási lehetőség:nincs megadva
- Fűtés:nincs megadva
- Bútorozottság:nincs megadva
- Fényviszony:nincs megadva
- Tájolás:nincs megadva
- Kilátás:nincs megadva
- Internet:nincs megadva
- Akadálymentesített:nincs megadva
- Energiatanúsítvány:nincs megadva
- Villany:Van
- Víz:Van
- Gáz:Van
- Csatorna:Van
- Üzenetküldés
- Hívás


Hitel ajánlat
Ingatlan hirdetés leírása
Nappali + 1 szobás lakás
Győr-Szabadhegy mellékutcájában új építésű 28 lakásos társasházban különböző alapterületű lakások eladók.A modern társasházban nappali + 1 szobás, nappali + 2 szobás és nappali + 3 szobás lakások kerülnek kialakításra. a földszinti lakások kertkapcsolattal és terasszal, az emeleti lakások erkéllyel, galériával és tetőterasszal, a penthouse lakások tetőterasszal rendelkeznek.
A meghirdetett földszinten található 44, 78 nm-es lakásban amerikai konyhás nappali, szoba, fürdőszoba és előtér található. Nappaliból 5, 45 nm-es terasz nyílik.
A lakás fűtéskész ára: 49. 990. 000 Ft. Kulcsrakész befejezés kérhető.
Gépkocsibeállló ára: 2. 900. 000 Ft
Fedett gépkocsibeálló ára: 4. 900. 000 Ft
Lehetőség van tároló vásárlására is, ára: 3. 500. 000 Ft – 3. 900. 000 Ft
A társasház 30 cm-es falazóelemből, 15 cm-es homlokzati hőszigeteléssel épül. a homlokzati műanyag nyílászárók 3 rétegűek. Az ingatlanok fűtése kondenzációs gázkazánnal történik, lakásonként egyedi hőmennyiségmérővel és hőmérséklet szabályozó termosztáttal, hőleadás padlófűtéssel. Az ár 1 db klímaelőkészítést tartalmaz.
Várható átadás: 2027 tavasz
Bővebb információkért forduljon hozzám bizalommal.
Hétköznap és hétvégén is várom hívását!
Díjmentes, bankfüggetlen hitelügyintézéssel állunk rendelkezésére.
A hirdetésben feltüntetett képek illusztrációk. FIX 3% lakáshitelre megvehető

