Eladó jó állapotú lakás - Győr
- INGYENES HIRDETÉS FELADÁS
Ingatlan adatai
- Feladva:88 napja a megveszLAK-on
- Eladó vagy kiadó:Eladó
- Település:Győr
- Kategória:Lakás
- Alkategória:Tégla
- Alapterület:76 m2
- Csere is:Nem
- Hirdető:Cég
- Élő videón megtekinthető:Nem
- Szobaszám:4
- Állapot:Jó állapotú
- Hány szintes az ingatlan:nincs megadva
- Komfortosság:nincs megadva
- Hányadik emeleti:nincs megadva
- Erkély:nincs megadva
- Lift:nincs megadva
- Parkolási lehetőség:nincs megadva
- Fűtés:Gáz (cirko)
- Bútorozottság:nincs megadva
- Fényviszony:nincs megadva
- Tájolás:DNY
- Kilátás:Utcai
- Internet:nincs megadva
- Klíma:nincs megadva
- Akadálymentesített:nincs megadva
- Energiatanúsítvány:nincs megadva
- Villany:Van
- Víz:Van
- Gáz:Van
- Csatorna:Van
- Közös költség:12 600 Ft
- Kapcsolatfelvétel

Nagy Tamás Zsolt
+36-(70)-461-9096
Mondd meg a hirdetőnek, hogy a megveszLAK-on találtad a hirdetést.
Hitel ajánlatok
Ingatlan hirdetés leírása
Győrben Sziget -Belváros határán , egyik legkedveltebb részén ...
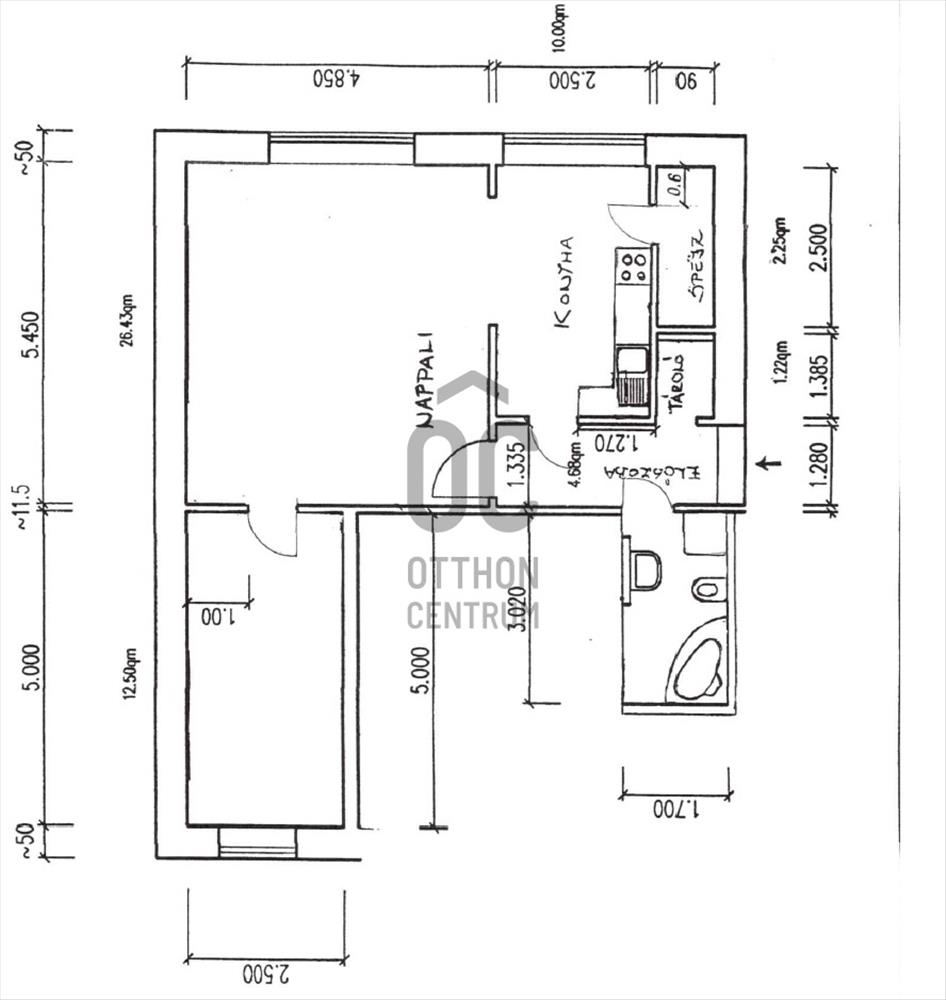
Győrben Sziget -Belváros határán, egyik legkedveltebb részén kínálunk eladásra egy jó állapotú, földszinti, dupla galériás lakást, amely egyedi kialakításának köszönhetően rendkívül praktikus és élhető.
A galériák beépítésével az ingatlan bruttó 76 m² lakóteret biztosít tulajdonosának. Az elrendezés átgondolt és funkcionális:
•tágas konyha–étkező
•fürdőszoba sarokkáddal, zuhanyzóval és WC-vel
•háztartási helyiség
•kamra
•külön kialakított, rejtett belső padlástér, amely kiváló pakolási lehetőséget nyújt
Az ingatlanhoz önálló pince tartozik, valamint a nagy méretű, közös belső udvar nyugodt kikapcsolódást biztosít a lakók számára.
A fűtést gázcirkó biztosítja. a 60 cm vastag falaknak köszönhetően a lakás télen–nyáron kellemes hőmérsékletű. a felújítás során a víz- és villamos hálózat teljes cseréje megtörtént, a belső terek pedig praktikusan, észszerűen kerültek átalakításra.
A járólapos helyiségekben padlófűtés, míg a parkettás szobákban radiátorok gondoskodnak a komfortos hőérzetről.
Központi elhelyezkedése kiváló: egyetem, fürdő, sétány, vízpart és minden fontos szolgáltatás néhány percen belül elérhető.
Egyedi adottságú belvárosi otthon vagy kiváló befektetés – ritka lehetőség Győr szívében.
További kérdések vagy megtekintés esetén keressen bizalommal.
Hitelre van szüksége?
Az Otthon Centrum, az ország egyik legnagyobb és legmegbízhatóbb hitelközvetítője, teljes körű és díjmentes hitelügyintézéssel, valamint biztosításkötéssel segíti ügyfeleit.
Kérje kollégáinktól személyre szabott ajánlatát, és találja meg a legjobb megoldást gyorsan és egyszerűen! FIX 3% lakáshitelre megvehető
Tetszett ez az eladó Győri jó állapotú 4 szobás tégla lakás? Hívd fel a hirdetőt most, és tudj meg mindent erről az eladó tégla lakásról! Ha gondolod nézelődj tovább az eladó lakás Győr oldal hirdetései között. Ennek az eladó lakásnak az ára 69900000 Ft és mivel az alapterülete 76 négyzetméter, ezért az átlagos négyzetméterára 919737 HUF/m2.
Az eladó lakások menüpontban további hirdetések között is böngészhetsz. Ha van kedved, akkor böngészhetsz a Nagy Tamás Zsolt összes hirdetése között, vagy akár a/az Otthon Centrum Győr - Batthyány tér összes hirdetése között is.

