Eladó újszerű állapotú lakás - Győr
- INGYENES HIRDETÉS FELADÁS
Ingatlan adatai
- Feladva:87 napja a megveszLAK-on
- Eladó vagy kiadó:Eladó
- Település:Győr
- Kategória:Lakás
- Alkategória:Tégla
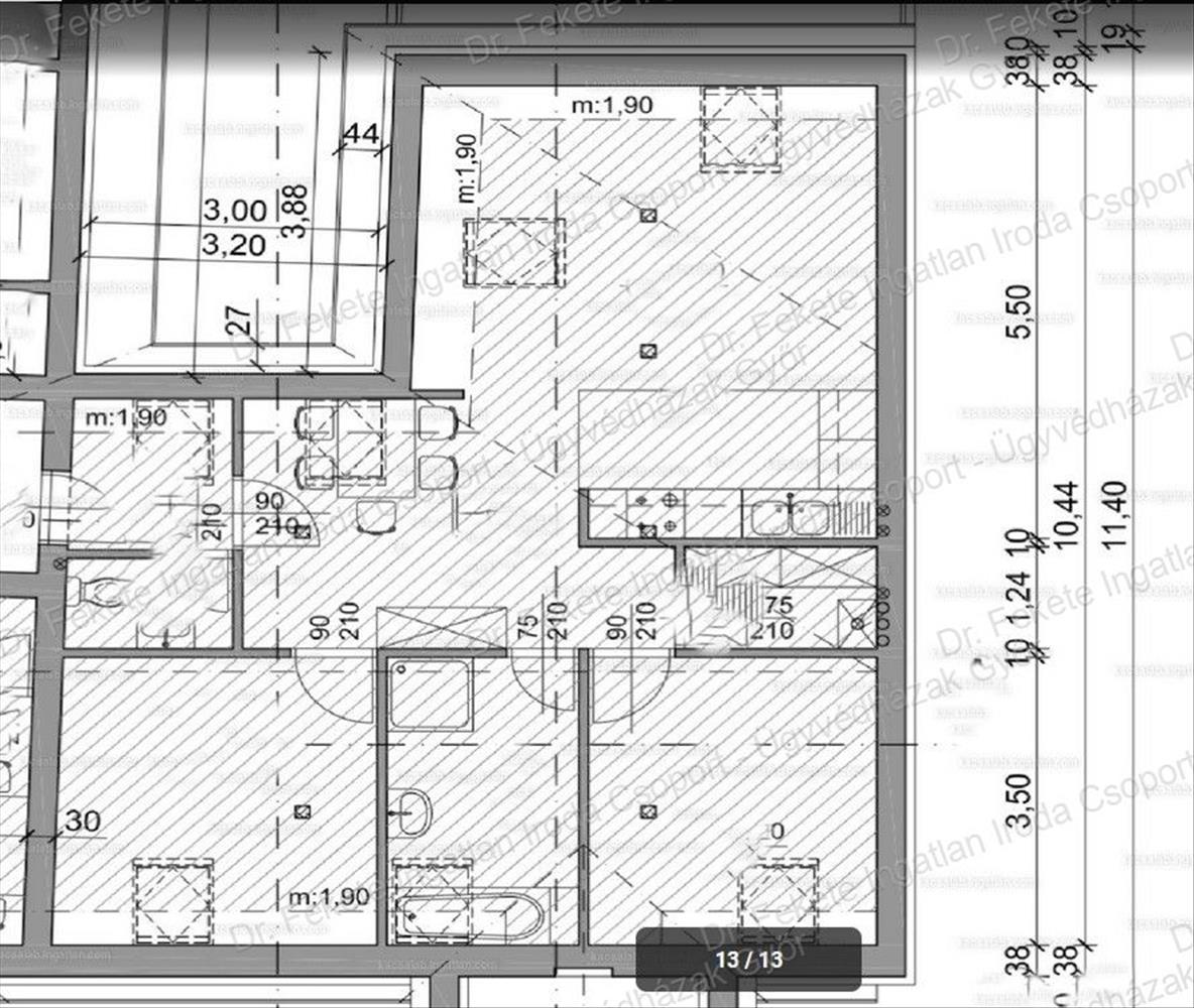
- Alapterület:75 m2
- Csere is:Nem
- Hirdető:Cég
- Élő videón megtekinthető:Nem
- Szobaszám:3
- Állapot:Újszerű, kitűnő
- Hány szintes az ingatlan:3 szintes
- Komfortosság:nincs megadva
- Hányadik emeleti:2
- Erkély:nincs megadva
- Lift:nincs megadva
- Parkolási lehetőség:nincs megadva
- Fűtés:Egyéb
- Bútorozottság:nincs megadva
- Fényviszony:nincs megadva
- Tájolás:D
- Kilátás:nincs megadva
- Internet:Optikai
- Klíma:Van
- Akadálymentesített:Nem akadálymentesített
- Energiatanúsítvány:nincs megadva
- Villany:Van
- Víz:Van
- Gáz:Van
- Csatorna:Van
- Közös költség:12 000 Ft
- Kapcsolatfelvétel
Hartmann-né Ildikó Viki
+36-(20)-481-3369
Mondd meg a hirdetőnek, hogy a megveszLAK-on találtad a hirdetést.
Hitel ajánlatok
Ingatlan hirdetés leírása
Azonnal birtokba vehető FŰTÉSKÉSZ tetőtéri lakás!
Alakítsd kedvedre! Győr – Szabadhegyen ebben a 9 lakásos társasházban vár ez
a nappali + 2 szobás, hátsó udvarra néző tetőtéri téglalakás fűtéskészen.
Bruttó: 75 nm / nettó 63, 38 nm
Déli tájolás
Klíma előkészítés
Nagy térkövezett, füvesített közös udvar vár
Az autód zárt udvarban parkolhat. (+ 2 M Ft)
Közös költség 14 000 Ft / hó
Hívj és mutatom élőben is.
Műszaki infó:
- Falak: Leier 30 n+f tégla, Válaszfalak Leier 10 n+f tégla, lakások között hanggátló fal
- 15 cm homlokzati hőszigetelés,
- Födém 6 cm-es austrotherm lépésálló hőszigetelésre 6 cm vasalt fűtőbeton kerül
- Hőszigetelés: a tetőszerkezetbe 30 cm vastag hőszigetelés készül párafékező hőtükrös fóliával
- Vasbeton födém a szintek között
- Cserépfedés a tetőn
- Velux nyílászárók
- a fűtés kondenzációs gázkazán padlófűtés,
- A fürdőben törölközőszárítós radiátor
- Átfolyós gázkazán meleg a vízhez.
MINIMUM 50% önerővel rendelkező vásárlót VÁRUNK!
Gyere, tegyél egy ajánlatot! Várom hívásod! Hartmann-né Viki Tel. : +36 20 481 3369 FIX 3% lakáshitelre megvehető
Tetszett ez az eladó Győri újszerű állapotú 3 szobás tégla lakás? Hívd fel a hirdetőt most, és tudj meg mindent erről az eladó tégla lakásról! Ha gondolod nézelődj tovább az eladó lakás Győr oldal hirdetései között. Ennek az eladó lakásnak az ára 47900000 Ft és mivel az alapterülete 75 négyzetméter, ezért az átlagos négyzetméterára 638667 HUF/m2.
Az eladó lakások menüpontban további hirdetések között is böngészhetsz. Ha van kedved, akkor böngészhetsz a Hartmann-né Ildikó Viki összes hirdetése között.

