Eladó új építésű lakás - Győr
- INGYENES HIRDETÉS FELADÁS
Ingatlan adatai
- Eladó vagy kiadó:Eladó
- Település:Győr
- Kategória:Lakás
- Alkategória:Tégla
- Alapterület:68 m2
- Csere is:Nem
- Hirdető:Cég
- Élő videón megtekinthető:Nem
- Szobaszám:3
- Állapot:Új építésű
- Hány szintes az ingatlan:nincs megadva
- Komfortosság:nincs megadva
- Hányadik emeleti:nincs megadva
- Erkély:Van
- Lift:nincs megadva
- Parkolási lehetőség:nincs megadva
- Fűtés:Gáz (cirko)
- Bútorozottság:nincs megadva
- Fényviszony:nincs megadva
- Tájolás:NY
- Kilátás:Utcai
- Internet:nincs megadva
- Klíma:nincs megadva
- Akadálymentesített:nincs megadva
- Energiatanúsítvány:nincs megadva
- Villany:Van
- Víz:Van
- Gáz:Van
- Csatorna:Van
- Kapcsolatfelvétel

Pingiczer Anett
+36-(70)-716-8106
Mondd meg a hirdetőnek, hogy a megveszLAK-on találtad a hirdetést.
Hitel ajánlatok
Ingatlan hirdetés leírása
Új építésű lakások Győr-Szigetben a Bercsényi ligetben! Ha me...
Új építésű lakások Győr-Szigetben a Bercsényi ligetben!
Ha megfelelő lokációban, kultúrált környezetben keresel új lakást saját részre vagy befektetésre, ez a lehetőség neked szól! Összesen 3db lakás eladó még az 5 lakásos társasházból!
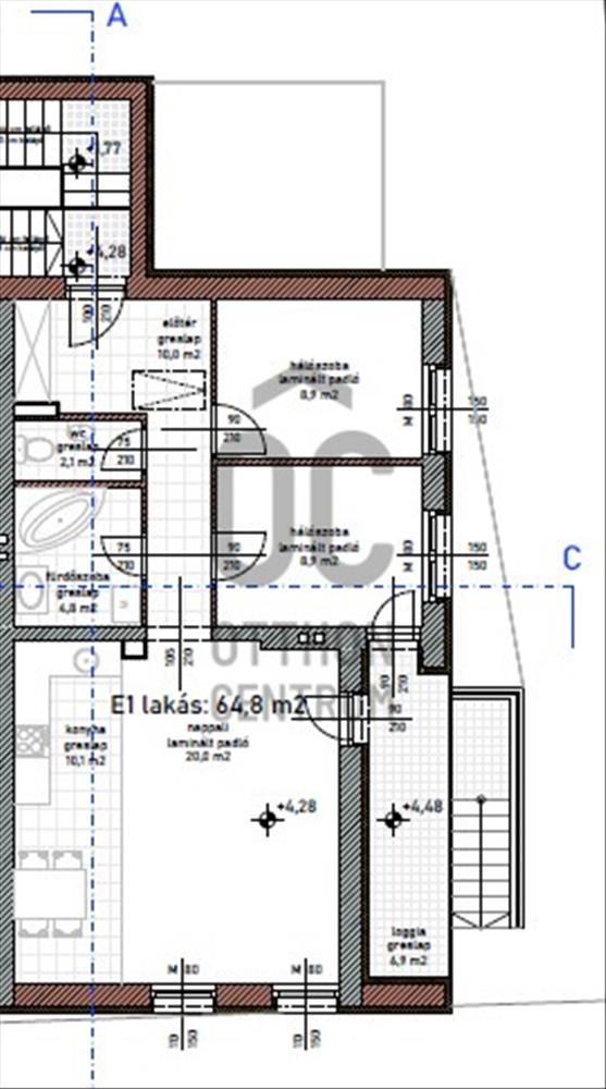
2. Lakás: Nappali plusz 2 szobás, 1. emeleti, erkélyes lakás, zöldre néző kilátással! Ne habozz legyen a tiéd!
Átadás várhatóan 2026. Év vége emeltszintű fűtéskész állapotban. Kulcsrakész kivitelezés, megállapodás kérdése.
A lakás 6, 9 nm erkéllyel rendelkezik ami zöldövezetre néz.
Fűtését kondenzációs gázkazán szolgáltatja padlófűtéses hőleadással. Illetve 1 db klíma kerül beszerelésre.
Műszaki jellemzők:
- Külső falszerkezetek leiertherm 38 n+f és LEIERTHERM
- 30 n+f falazóelemekkel
- Tetőhéjazat: Antracit színű bramac Tectura cserépfedés készül
- Válaszfalak: leiertherm 10 n+f válaszfalelemekből készülnek 10 cm vastagságban
- Hőszigetelés: a tetőtér ferde síkjainak hőszigetelése 25 cm Rockwool Multirock ásványgyapot hőszigeteléssel készül, míg a tetőtér feletti padlásfödém összesen 35 cm Rockwool Multirock ásványgyapot hőszigetelést kap.
- a külső falszerkezeteket 10 cm austrotherm grafit hőszigetelés egészít ki.
- a padlók hő- és hangszigetelése austrotherm at-n100 anyagból lépésálló kivitelben készül, a rétegrendek szerinti vastagságban.
A lakásokhoz 1db zárt udvari (elektromos kapus) nyitott beálló is tartozik melynek ára 3, 5 M Ft.
1. Lakás 60, 2 nm +7, 9 nm terasz, fűtéskész ára: 69. 900. 000 Ft
2. Lakás: 64, 8 nm + 6, 9 nm terasz, fűtéskész ára: 69. 900. 000 Ft
3. Lakás: br. 79, 2 Nm nettó 63, 8 nm , fűtéskész ára: 64. 900. 000 Ft
Ha felkeltettem érdeklődését telefonáljon mihamarabb! a lakások csak nálam elérhetőek!
Hitelre van szüksége? ?
Az Otthon Centrum az ország egyik legnagyobb és legmegbízhatóbb hitelközvetítőjeként, teljes körű és díjmentes hitelügyintézéssel, biztosításkötéssel áll rendelkezésére!
Kérje személyre szabott ajánlatunkat Kollégáinktól! FIX 3% lakáshitelre megvehető
Tetszett ez az eladó Győri új építésű 3 szobás tégla lakás? Hívd fel a hirdetőt most, és tudj meg mindent erről az eladó tégla lakásról! Ha gondolod nézelődj tovább az eladó lakás Győr oldal hirdetései között. Ennek az eladó lakásnak az ára 69900000 Ft és mivel az alapterülete 68 négyzetméter, ezért az átlagos négyzetméterára 1027941 HUF/m2.
Az eladó lakások menüpontban további hirdetések között is böngészhetsz. Ha van kedved, akkor böngészhetsz a Pingiczer Anett összes hirdetése között, vagy akár a/az Otthon Centrum Győr - Batthyány tér összes hirdetése között is.

