Eladó új építésű lakás - Győr
- INGYENES HIRDETÉS FELADÁS
Ingatlan adatai
- Eladó vagy kiadó:Eladó
- Település:Győr
- Kategória:Lakás
- Alkategória:Tégla
- Alapterület:44 m2
- Csere is:Nem
- Hirdető:Cég
- Élő videón megtekinthető:Nem
- Szobaszám:1 + 1 fél
- Állapot:Új építésű
- Hány szintes az ingatlan:nincs megadva
- Komfortosság:nincs megadva
- Hányadik emeleti:2
- Erkély:nincs megadva
- Lift:nincs megadva
- Parkolási lehetőség:nincs megadva
- Fűtés:Geotermikus
- Bútorozottság:nincs megadva
- Fényviszony:nincs megadva
- Tájolás:nincs megadva
- Kilátás:nincs megadva
- Internet:nincs megadva
- Klíma:nincs megadva
- Akadálymentesített:nincs megadva
- Energiatanúsítvány:nincs megadva
- Villany:nincs megadva
- Víz:nincs megadva
- Gáz:nincs megadva
- Csatorna:nincs megadva
- Kapcsolatfelvétel

Tóth Bernadett
+36-(70)-389-9573
Mondd meg a hirdetőnek, hogy a megveszLAK-on találtad a hirdetést.
Hitel ajánlatok
Ingatlan hirdetés leírása
Nappali + 1 hálószobás lakás tágas erkéllyel.. Új építésű, ma...
Nappali + 1 hálószobás lakás tágas erkéllyel. .
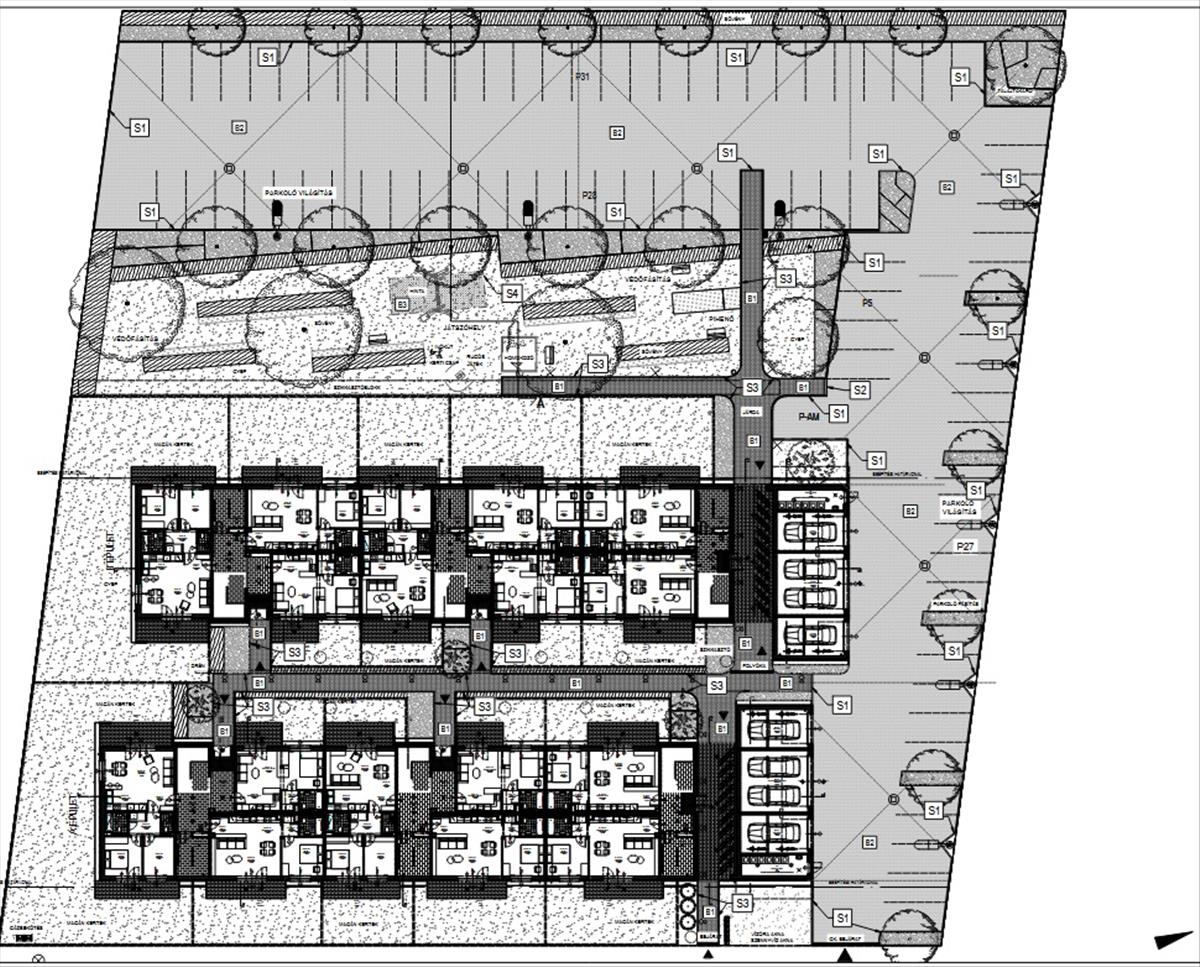
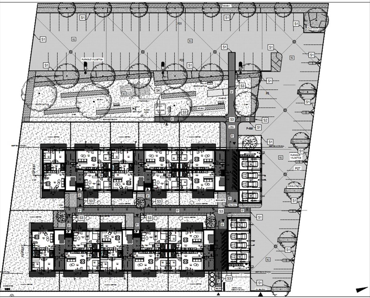
Új építésű, magas színvonalon kivitelezett társasházi lakások leköthetőek Szitásdomb II. Lakóparkban:
Győr dinamikusan fejlődő városrészében, a Szitásdomb II. Lakóparkban (közigazgatásilag Vámosszabadi belterületén), 6456 nm -es telken, új építésű, 2026. Év végi emeltszintű fűtéskész átadással épülő, 3 szintes, 2 x 28 lakásos társasházban 42 nm és 64 nm közötti alapterületű téglalakások zárt udvari kocsibeálló és garázs vásárlási lehetőséggel eladók.
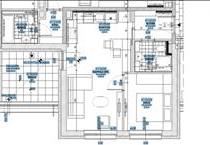
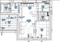
Az a123 jelű lakás a II. emeleten található, 39, 72 nm + 9, 19 nm terasz alapterületű.
Elrendezése: előtér, amerikai konyhás nappali étkezővel, háló, fürdőszoba wc-vel, erkély
Emeltszintű fűtéskész ára: 44. 300. 000, - Ft
A társasház két épületből (a+b) áll, tömbönként 3 lépcsőházzal, lépcsőházanként 8-9 lakással. a lakásokon kívül 8 db garázs kerül kivitelezésre (2 dupla garázs és 4 szimpla garázs). a társasház udvarán 84 db térkövezett kocsibeálló kerül kialakításra. a földszinti lakásokhoz terasz és saját kert, az emeleti lakásokhoz pedig erkély tartozik. Minden lakás klíma előkészítéssel, a földszinti lakások kerti csap és villany kiállással készülnek.
A társasház lapostetővel, 15 cm homlokzati hőszigeteléssel épül. Leiertherm 30 n+f tégla falak, Leier kéregpanel vasbeton fal és vasbeton pillérek alkotják a ház teherhordó szerkezetét. a homlokzati falak Leiertherm 30 n+f tégla, a lakáselválasztó fal Leier kéregpanel vasbeton fal. 3 Rétegű üvegezéssel ellátott, 5 légkamrás műanyag ablakok és erkélyajtók kerülnek beépítésre kívül antracit, belül fehér színben, rejtett redőnytokkal.
A lakások meleg víz szükségletét épületenként 1 db központi kondenzációs gázkazán biztosítja, a fűtést hőszivattyús rendszer adja (gázkazánnal kiegészítve), lakásonként egyedi hőmennyiség mérővel. a hőleadás minden helyiségben padlófűtéssel történik, a fürdőszobákban elektromos törölközőszárító radiátorral kiegészítve.
A lakásokhoz 1 db parkolóhely vásárlása kötelező, melynek ára 1. 500. 000, - Ft/db. További parkolóhelyek kedvezményes áron leköthetőek.
A garázsok gépi nyitású, szekcionált kapuval kerülnek átadásra.
Az egybeállásos, 19 nm -es garázsok ára 9. 900. 000, - Ft/db, míg a dupla, 30, 48 nm -es garázsok ára 14. 900. 000 Ft/db.
A vételár tartalmazza:
- a lépcsőház festését, burkolását, kaputelefon beüzemelését,
- járda és parkoló felületek térkövezését,
- tereprendezést, füvesítést,
- a földszinti lakásokhoz tartozó kertek kitűzését (kerítés nélkül),
- a társasház telkének körbekerítését,
- az erkélyek és teraszok burkolását.
Igény esetén kulcsrakész befejezés kérhető.
A kivitelező referencia munkái megtekinthetőek.
A lakóparkban kiépített aszfaltos úthálózat és közműrendszer található. a városi buszmegálló pár perc sétával elérhető. a lakópark területén kialakításra került játszótér, valamint egy következő fázisban orvosi rendelő, gyógyszertár, élelmiszerbolt, óvoda stb. Autóval Győr belvárosa átlagos forgalomnál 5 perc alatt elérhető. Az északi megkerülőn az Ipari park és az M1-es autópálya is könnyen megközelíthető.
Otthon Start hitel, Babaváró, csok+ hitel igényelhető, irodánk díjmentes hitelügyintézéssel segíti ügyfeleit. (Hiv. Szám: 6037. ) (Hiv. Szám: 6037) FIX 3% lakáshitelre megvehető
Tetszett ez az eladó Győri új építésű 1 egész és 1 fél szobás tégla lakás? Hívd fel a hirdetőt most, és tudj meg mindent erről az eladó tégla lakásról! Ha gondolod nézelődj tovább az eladó lakás Győr oldal hirdetései között. Ennek az eladó lakásnak az ára 44300000 Ft és mivel az alapterülete 44 négyzetméter, ezért az átlagos négyzetméterára 1006818 HUF/m2.
Az eladó lakások menüpontban további hirdetések között is böngészhetsz. Ha van kedved, akkor böngészhetsz a Tóth Bernadett összes hirdetése között, vagy akár a/az Panoráma ingatlan Győr összes hirdetése között is.

