Eladó luxus lakás - Hajdúszoboszló
- INGYENES HIRDETÉS FELADÁS
Ingatlan adatai
- Eladó vagy kiadó:Eladó
- Település:Hajdúszoboszló
- Kategória:Lakás
- Alkategória:Tégla
- Alapterület:55 m2
- Csere is:Nem
- Hirdető:Cég
- Élő videón megtekinthető:Nem
- Szobaszám:2
- Állapot:Luxus
- Hány szintes az ingatlan:nincs megadva
- Komfortosság:Összkomfortos
- Hányadik emeleti:Tetőtér
- Erkély:Van
- Lift:Nincs
- Parkolási lehetőség:Garázs (megvásárolható)
- Fűtés:Vegyes tüzelésű kazán
- Bútorozottság:nincs megadva
- Fényviszony:nincs megadva
- Tájolás:nincs megadva
- Kilátás:Utcai
- Internet:nincs megadva
- Klíma:nincs megadva
- Akadálymentesített:nincs megadva
- Energiatanúsítvány:nincs megadva
- Villany:nincs megadva
- Víz:nincs megadva
- Gáz:nincs megadva
- Csatorna:nincs megadva
- Kapcsolatfelvétel

Zokoliczáné Hegyesi Tímea
+36-(30)-440-0122
Mondd meg a hirdetőnek, hogy a megveszLAK-on találtad a hirdetést.
Hitel ajánlatok
Ingatlan hirdetés leírása
Eladó Tégla lakás, Hajdúszoboszló, Fürdőnegyed, 55nm, 62000000 Ft
Új építésű luxus minőségű társasházban kínálunk lakásokat, melyek a fenntarthatóság és a modern életstílus tökéletes ötvözete. a fejlesztés keretében 5 exkluzív lakás és 6 kényelmes garázs kerül kialakításra, kiemelkedő minőségű anyagok felhasználásával és korszerű építészeti megoldásokkal. Már csak 3 tetőtéri lakás elérhető (melyből 2 egybenyitható), ezért ne késlekedjen! a másik kettő szabad lakást és garázsokat is megtalálja hirdetéseim között.
Az épület kiemelkedő energiahatékonyságot biztosít (a+), amely alacsony fenntartási költséget és környezetbarát megoldásokat garantál.
A társasház mindössze 200 méterre található a híres hajdúszoboszlói fürdőtől, így tökéletes választás mind állandó lakhatásra, mind befektetési célra.
Praktikus elrendezés, tágas terek és természetes fényáradat fogadja minden lakásban.
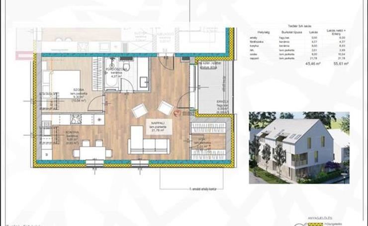
55, 61 m2-es lakásban lévő helyiségek:
- nappali-konyha-étkező 30, 71 m2
- hálószoba 10, 54 m2
- fürdőszoba wc-vel 4, 37 m2
- háztartási helyiség 3, 99 m2
- erkély 6 m2
Ez a lakás egybenyitható a szomszédos 39, 26 m2-es lakással (melynek ára 62. 000. 000 Ft), így egy 95 m2-es nagy otthont kaphat.
A 39, 26 m2-es lakás helyiségei:
- 16, 94 m2-es lakószoba,
- 8, 80 m2-es konyha,
- 3, 52 m2-es fürdő,
- 1, 26 m2-es wc,
- 3, 24 m2-es előtér,
- 5, 50 m2-es erkély.
Az épülethez tartozó garázsok biztosítják a lakók számára a biztonságos és kényelmes parkolási lehetőséget. Még 1 felszíni beálló és 3 teremgarázs hely megvásárolható.
Felszíni beálló: 4. 000. 000 Ft
Teremgarázs hely: 10. 000. 000 Ft
Átadás tervezett időpontja: 2026 év vége.
További információkért keressen elérhetőségeim egyikén és nézze meg mielőbb, hogyan halad az építkezés! FIX 3% lakáshitelre megvehető
Tetszett ez az eladó Hajdúszoboszlói luxus 2 szobás tégla lakás? Hívd fel a hirdetőt most, és tudj meg mindent erről az eladó tégla lakásról! Ha gondolod nézelődj tovább az eladó lakás Hajdúszoboszló oldal hirdetései között. Ennek az eladó lakásnak az ára 62000000 Ft és mivel az alapterülete 55 négyzetméter, ezért az átlagos négyzetméterára 1127273 HUF/m2.
Az eladó lakások menüpontban további hirdetések között is böngészhetsz. Ha van kedved, akkor böngészhetsz a Zokoliczáné Hegyesi Tímea összes hirdetése között.

