Eladó új építésű lakás - Hajdúszoboszló
- INGYENES HIRDETÉS FELADÁS
Ingatlan adatai
- Eladó vagy kiadó:Eladó
- Település:Hajdúszoboszló
- Kategória:Lakás
- Alkategória:Tégla
- Alapterület:50 m2
- Csere is:Nem
- Hirdető:Cég
- Élő videón megtekinthető:Nem
- Szobaszám:2
- Állapot:Új építésű
- Hány szintes az ingatlan:nincs megadva
- Komfortosság:nincs megadva
- Hányadik emeleti:2
- Erkély:nincs megadva
- Lift:Nincs
- Parkolási lehetőség:nincs megadva
- Fűtés:nincs megadva
- Bútorozottság:nincs megadva
- Fényviszony:nincs megadva
- Tájolás:nincs megadva
- Kilátás:nincs megadva
- Internet:nincs megadva
- Klíma:nincs megadva
- Akadálymentesített:nincs megadva
- Energiatanúsítvány:nincs megadva
- Villany:nincs megadva
- Víz:nincs megadva
- Gáz:nincs megadva
- Csatorna:nincs megadva
- Kapcsolatfelvétel

Lukács Malvina
+36-(30)-892-0016
Mondd meg a hirdetőnek, hogy a megveszLAK-on találtad a hirdetést.
Hitel ajánlatok
Ingatlan hirdetés leírása
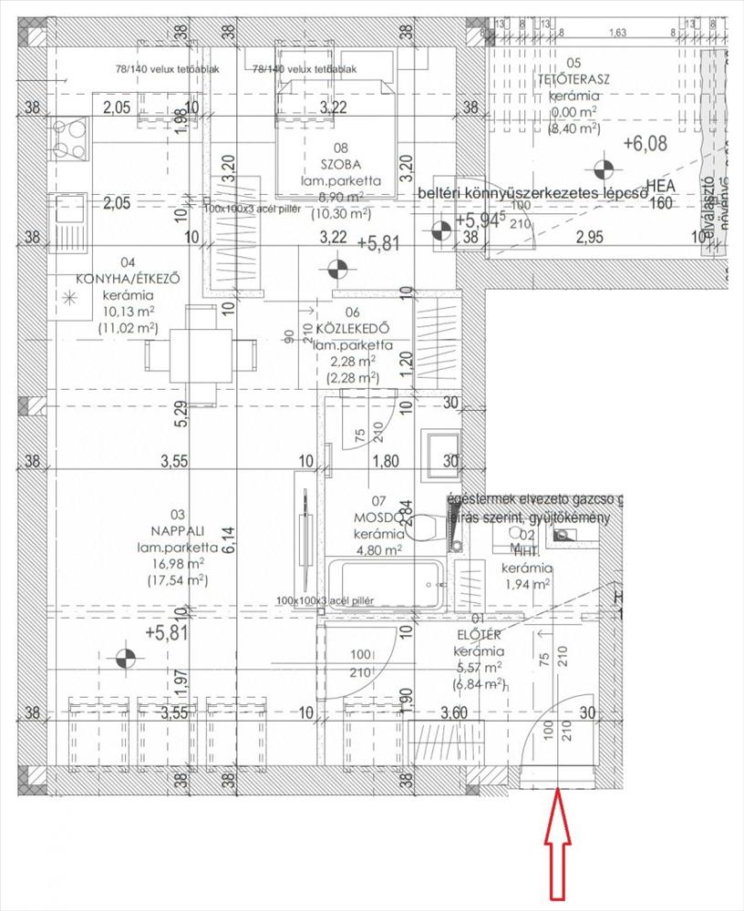
Hajdúszoboszlón, 2026. március végi átadással, 9 lakásos társa...
Hajdúszoboszlón, 2026. Március végi átadással, 9 lakásos társasház, 2. emeleti, 51 m2-es, nappali+ 1 szobás, új építésű, teraszos lakás, magas műszaki tartalommal, garázzsal eladó!
Jellemzői:
- Csendes, aszfaltozott utcában helyezkedik el
- Porotherm 30 n+f tégla falazat
- 15 cm Austrotherm hőszigetelés a homlokzati falakon, mely biztosítja az alacsony fűtési költséget
- a zárófödémben 30 cm vastagságú Rockwool Multirock kőzetgyapot hőszigetelés
- 12 cm Austrotherm at- n150, lépésálló aljzatszigetelés
- Fűtése gázcirkó
- Padlófűtés
- Hő- és hangszigetelt, 3 rétegű, 7 légkamrás, rehau műanyag nyílászárók
- 28, 56 m2-es, amerikai konyhás nappali
- 1, 94 m2-es háztartási helyiség
- 8, 40 m2-es terasz
- 44 m2-es közös kert
- Garázs (+7, 5 M Ft)
- Nyitott beálló (+4 M Ft)
- Térkövezés
- Kaputelefon
- Kerítés szintén a vételárban
- Tömegközlekedés kiváló
- Fürdőhöz, óvodához, üzletekhez, orvosi rendelőhöz, patikához, éttermekhez közel helyezkedik el!
- Várható befejezés: 2026. Március vége
Babaváró, CSOK Plusz, illetékmentesség igénybe vehető!
Irányár: 55, 8 M Ft (8. Sz. Lakás) (hivatkozási szám: m116968) FIX 3% lakáshitelre megvehető
Tetszett ez az eladó Hajdúszoboszlói új építésű 2 szobás tégla lakás? Hívd fel a hirdetőt most, és tudj meg mindent erről az eladó tégla lakásról! Ha gondolod nézelődj tovább az eladó lakás Hajdúszoboszló oldal hirdetései között. Ennek az eladó lakásnak az ára 55800000 Ft és mivel az alapterülete 50 négyzetméter, ezért az átlagos négyzetméterára 1116000 HUF/m2.
Az eladó lakások menüpontban további hirdetések között is böngészhetsz. Ha van kedved, akkor böngészhetsz a Lukács Malvina összes hirdetése között, vagy akár a/az DB Ingatlan összes hirdetése között is.

