Eladó új építésű lakás - Jánossomorja
- INGYENES HIRDETÉS FELADÁS
Ingatlan adatai
- Eladó vagy kiadó:Eladó
- Település:Jánossomorja
- Kategória:Lakás
- Alkategória:Tégla
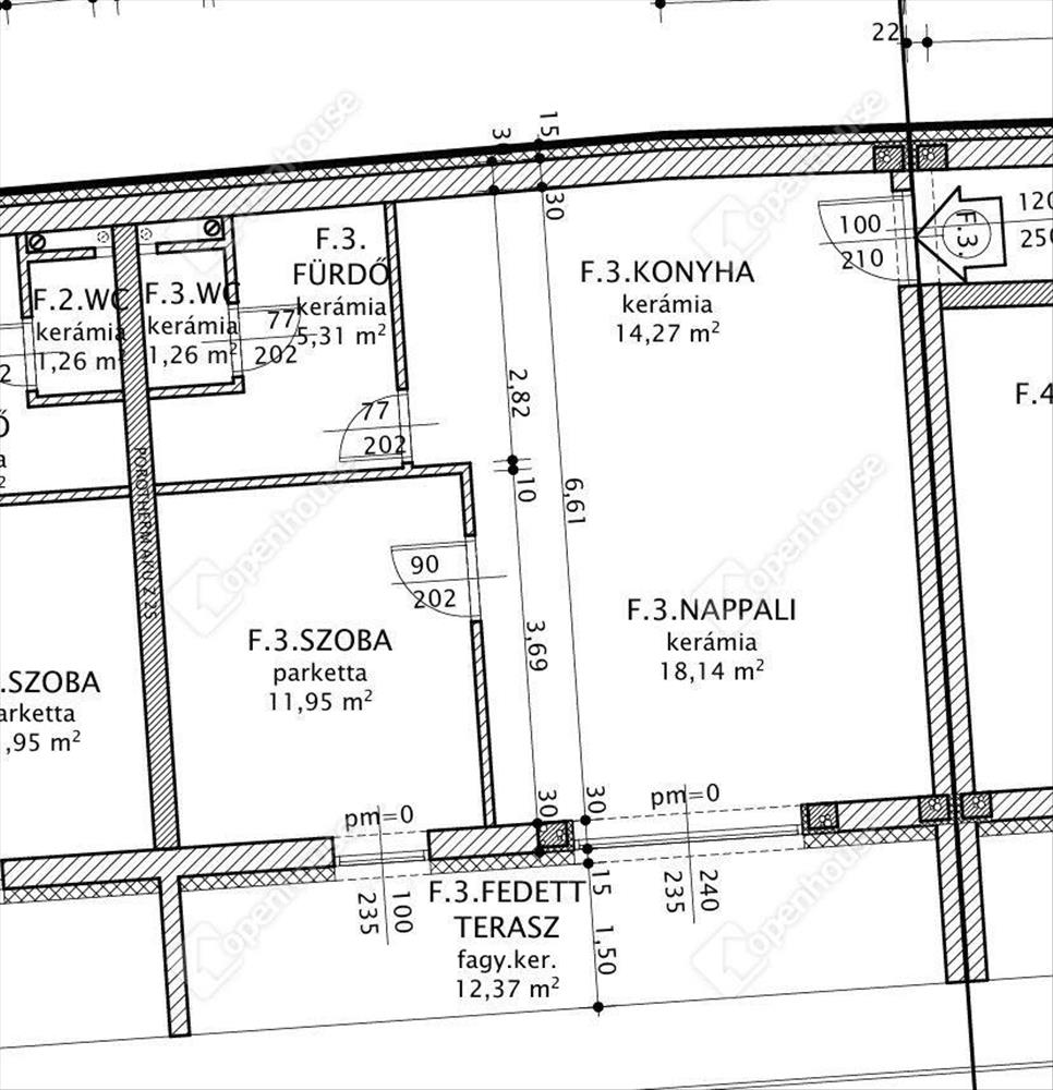
- Alapterület:57 m2
- Csere is:Nem
- Hirdető:Cég
- Élő videón megtekinthető:Nem
- Szobaszám:2
- Állapot:Új építésű
- Hány szintes az ingatlan:Földszintes
- Komfortosság:nincs megadva
- Kertkapcsolatos:Igen
- Hányadik emeleti:Földszint
- Erkély:nincs megadva
- Lift:Nincs
- Parkolási lehetőség:Udvaron
- Fűtés:Hőszivattyús
- Bútorozottság:nincs megadva
- Fényviszony:Napfényes
- Tájolás:DK
- Kilátás:nincs megadva
- Internet:nincs megadva
- Klíma:nincs megadva
- Akadálymentesített:nincs megadva
- Energiatanúsítvány:A++
- Villany:Van
- Víz:Van
- Gáz:nincs megadva
- Csatorna:Van
- Kapcsolatfelvétel

Kocsis Csaba
+36-(70)-459-3010
Mondd meg a hirdetőnek, hogy a megveszLAK-on találtad a hirdetést.
Referencia szám: 176861
Hitel ajánlatok
Ingatlan hirdetés leírása
Új építésű lakások és üzletek Jánossomorján....
Az Openhouse Győr - Belváros Ingatlaniroda kínálatában eladó a #176861 hivatkozási számú jánossomorjai társasházi lakás.
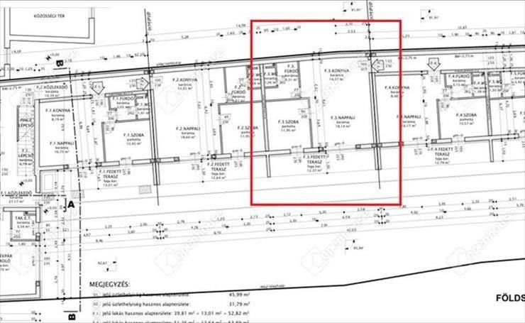
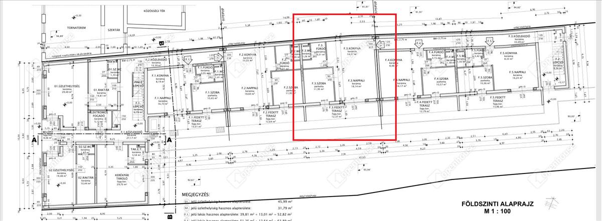
Jánossomorja központi részén 2026 decemberi átadással 13 modern lakás és 2 üzlethelyiség épül. a lakások nappali + 1 szobás elosztásúak lesznek, különböző méretekben, kertkapcsolatos és emeleti lakások egyaránt elérhetőek.
- 13 Db lakás
- 2 db üzlethelyiség
- korszerű kivitelezés
- monolit vasbeton födém szerkezet
- porotherm 30-as falazat
- 15 cm homlokzati hőszigetelés
- 3 rétegű nyílászárók
- hőszivattyús rendszer
- padlófűtés
- fűtéskészen kerül átadásra, de lehetőség van a kulcsrakész befejezésre is
- gépkocsibeálló kötelezően vásárolandó
- f3 lakás 50, 93 m2 + 12, 37 m2 terasz + 27 m2 kertkapcsolat
- Ár: 42. 453. 400, -
- Gépkocsibeálló : 2. 000. 000, -
Ha felkeltette érdeklődését ez az eladó jánossomorjai társasházi lakás, vagy bármely más társasházi lakás és bővebb információt szeretne, keressen bizalommal.
Hivatkozási szám: #176861
Az Openhouse Győr - Belváros Ingatlaniroda tagjaként várom Önt az országos hálózatunk teljes kínálatával.
A társasházi lakás vásárláshoz hitelt igényelne? Ingyenes hitelközvetítéssel segít Önnek bankfüggetlen hitelszakértőnk.
További szolgáltatásainkkal (pl. Értékbecslés, energetikai tanúsítvány, jogi háttér) is segítjük Önt a vásárlásban.
Az otthon érték. Az ingatlan üzlet. FIX 3% lakáshitelre megvehető
Tetszett ez az eladó Jánossomorjai új építésű 2 szobás tégla lakás? Hívd fel a hirdetőt most, és tudj meg mindent erről az eladó tégla lakásról! Ha gondolod nézelődj tovább az eladó lakás Jánossomorja oldal hirdetései között. Ennek az eladó lakásnak az ára 52545800 Ft és mivel az alapterülete 57 négyzetméter, ezért az átlagos négyzetméterára 921856 HUF/m2.
Az eladó lakások menüpontban további hirdetések között is böngészhetsz. Ha van kedved, akkor böngészhetsz a Kocsis Csaba összes hirdetése között, vagy akár a/az Open House Openhouse Mosonmagyaróvár Ingatlaniroda összes hirdetése között is.

