Eladó új építésű lakás - Kecskemét
- INGYENES HIRDETÉS FELADÁS
Ingatlan adatai
- Feladva:88 napja a megveszLAK-on
- Eladó vagy kiadó:Eladó
- Település:Kecskemét
- Kategória:Lakás
- Alkategória:Tégla
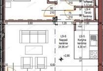
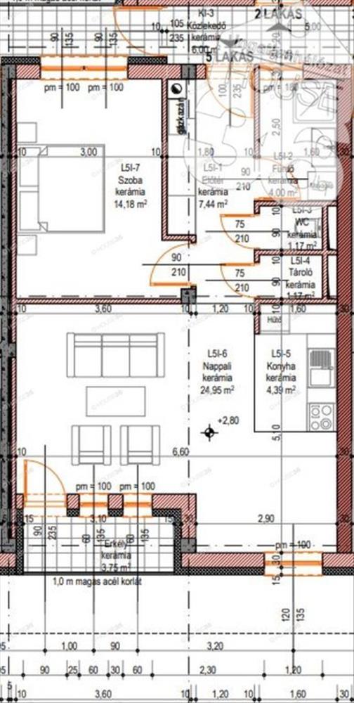
- Alapterület:59 m2
- Csere is:Nem
- Hirdető:Cég
- Élő videón megtekinthető:Nem
- Szobaszám:2
- Állapot:Új építésű
- Hány szintes az ingatlan:Földszintes
- Komfortosság:nincs megadva
- Hányadik emeleti:1
- Erkély:nincs megadva
- Lift:Van
- Parkolási lehetőség:Garázsban
- Fűtés:Gáz (cirko)
- Bútorozottság:nincs megadva
- Fényviszony:Napfényes
- Tájolás:nincs megadva
- Kilátás:nincs megadva
- Internet:nincs megadva
- Klíma:nincs megadva
- Akadálymentesített:nincs megadva
- Energiatanúsítvány:nincs megadva
- Villany:Van
- Víz:Van
- Gáz:nincs megadva
- Csatorna:Van
- Kapcsolatfelvétel

Dakó Ferenc András
+36-(70)-608-6030
Mondd meg a hirdetőnek, hogy a megveszLAK-on találtad a hirdetést.
Referencia szám: 3620928
Hitel ajánlatok
Ingatlan hirdetés leírása
Optimális Otthon - Tökéletes Befektetés!
Kecskemét egyik ikonikus épülete végre újjászületik!
Kecskemét belvárosának szélén, mégis pár percre a főtértől, kiváló közlekedés mellett, 27 lakásos liftes társasházban, zömében erkélyes, új lakások leköthetőek. Opcionálisan garázs és beálló vásárlási lehetőség.
A társasház első emeletén, 57, 3 m2 lakóterű, nappali + 1 szobás lakás, 3, 75 m2 erkéllyel megvásárolható.
Várható átadás, 2026 december.
27 Lakásos, 5 szintes, liftes épület.
Gáz kombi kazán lakásonként
Hűtő-fűtő klíma
Műanyag 6 légkamrás 3 rétegű ablakok, rejtett redőnytokos redőnnyel felszerelve
Beltéri ajtók 5 színben választhatók.
Szobákban laminált parketta, egyéb helyiségekben vinyl illetve hidegburkolat.
Fürdőszobai szaniterek beépítve műszaki tartalom szerint.
Konyhabútor, fürdőszoba szekrény, előszoba fal opcionálisan rendelhető.
További információkat és részletes műszaki tartalmat egy személyes találkozó keretein belül tudunk biztosítani.
A HOUSE36kínálatában található összes ingatlannal kapcsolatban tudok felvilágosítást nyújtani!
Hívjon bizalommal!
Szolgáltatásaink Kereső ügyfeleink számára INGYENESEK!
72900000 Ft
Az iroda legfrissebb, aktuális kínálatát a house36 saját weboldalán találja! FIX 3% lakáshitelre megvehető
Tetszett ez az eladó Kecskeméti új építésű 2 szobás tégla lakás? Hívd fel a hirdetőt most, és tudj meg mindent erről az eladó tégla lakásról! Ha gondolod nézelődj tovább az eladó lakás Kecskemét oldal hirdetései között. Ennek az eladó lakásnak az ára 72900000 Ft és mivel az alapterülete 59 négyzetméter, ezért az átlagos négyzetméterára 1235593 HUF/m2.
Az eladó lakások menüpontban további hirdetések között is böngészhetsz. Ha van kedved, akkor böngészhetsz a Dakó Ferenc András összes hirdetése között, vagy akár a/az HOUSE36 Ingatlanhálózat összes hirdetése között is.

