Eladó új építésű lakás - Kecskemét
- INGYENES HIRDETÉS FELADÁS
Ingatlan adatai
- Eladó vagy kiadó:Eladó
- Település:Kecskemét
- Kategória:Lakás
- Alkategória:Tégla
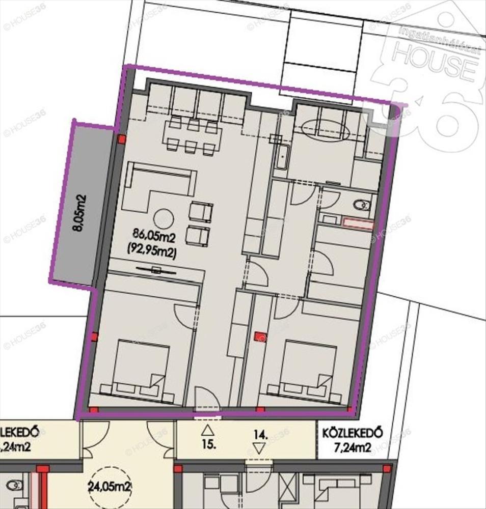
- Alapterület:96 m2
- Csere is:Nem
- Hirdető:Cég
- Élő videón megtekinthető:Nem
- Szobaszám:3
- Állapot:Új építésű
- Hány szintes az ingatlan:Földszintes
- Komfortosság:nincs megadva
- Hányadik emeleti:3
- Erkély:nincs megadva
- Lift:Nincs
- Parkolási lehetőség:nincs megadva
- Fűtés:Egyéb
- Bútorozottság:nincs megadva
- Fényviszony:nincs megadva
- Tájolás:nincs megadva
- Kilátás:nincs megadva
- Internet:nincs megadva
- Klíma:nincs megadva
- Akadálymentesített:nincs megadva
- Energiatanúsítvány:nincs megadva
- Villany:Van
- Víz:Van
- Gáz:nincs megadva
- Csatorna:Van
- Kapcsolatfelvétel

Halász Norbert
+36-(70)-421-1210
Mondd meg a hirdetőnek, hogy a megveszLAK-on találtad a hirdetést.
Referencia szám: 3621248
Hitel ajánlatok
Ingatlan hirdetés leírása
*A belváros új ékköve, pár perc sétára a Főtértől*
Kecskemét belvárosában, új építésű társasházban, leköthető lakásokat, irodákat, üzleteket kínálunk!
Modern, letisztult, időtálló megjelenéssel illeszkedik a belvárosi környezetbe. a gondosan megtervezett homlokzat, a nagy üvegfelületek és a harmonikus színvilág, elegáns mégis harmonikus atmoszférát teremtenek.
A liftes épületben, 22 lakás és 5 földszinti iroda, üzlet kerül kialakításra. Opcionálisan teremgarázs és beálló vásárlási lehetőséggel.
Az épület II. emeletén, bruttó 92, 95 m2, nettó 86, 05 m2 lakóterű, nappali + 2 szobás lakás, 8, 05 m2 erkéllyel megvásárolható.
Várható átadás, 2028 január.
4 Szintes, liftes épület
Modern lakáselrendezések
Többnyire erkélyes lakások
Teremgarázs és beálló
Igényes közösségi terek
További információkat és részletes műszaki tartalmat egy személyes találkozó keretein belül tudunk biztosítani.
Nézze meg ajánlatainkat, amíg rendelkezésre állnak az ingatlanok!
Hitel esetén, egyedi kamatkonstrukciót és ingyenes banki előminősítést kínálunk ügyfeleink részére.
Az iroda legfrissebb, aktuális kínálatát a house36 saját weboldalán találja! Hitel.hu - Hasonlítsa össze a bankok lakáshitel ajánlatait
Tetszett ez az eladó Kecskeméti új építésű 3 szobás tégla lakás? Hívd fel a hirdetőt most, és tudj meg mindent erről az eladó tégla lakásról! Ha gondolod nézelődj tovább az eladó lakás Kecskemét oldal hirdetései között. Ennek az eladó lakásnak az ára 127500000 Ft és mivel az alapterülete 96 négyzetméter, ezért az átlagos négyzetméterára 1328125 HUF/m2.
Az eladó lakások menüpontban további hirdetések között is böngészhetsz. Ha van kedved, akkor böngészhetsz a Halász Norbert összes hirdetése között, vagy akár a/az HOUSE36 Ingatlanhálózat összes hirdetése között is.

