Eladó új építésű lakás - Levél
- INGYENES HIRDETÉS FELADÁS
Ingatlan adatai
- Feladva:4 hónapja a megveszLAK-on
- Eladó vagy kiadó:Eladó
- Település:Levél
- Kategória:Lakás
- Alkategória:Tégla
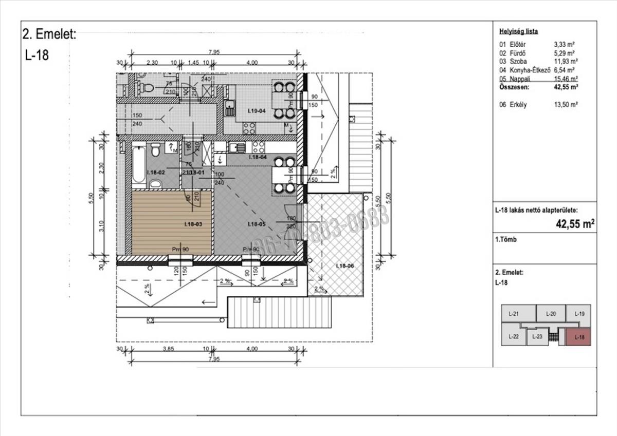
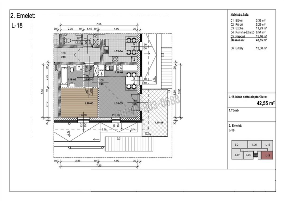
- Alapterület:42 m2
- Csere is:Nem
- Hirdető:Cég
- Élő videón megtekinthető:Nem
- Szobaszám:2
- Állapot:Új építésű
- Hány szintes az ingatlan:nincs megadva
- Komfortosság:Összkomfortos
- Hányadik emeleti:2
- Erkély:Van
- Lift:Nincs
- Parkolási lehetőség:Nincs
- Fűtés:nincs megadva
- Bútorozottság:nincs megadva
- Fényviszony:nincs megadva
- Tájolás:nincs megadva
- Kilátás:nincs megadva
- Internet:nincs megadva
- Klíma:nincs megadva
- Akadálymentesített:nincs megadva
- Energiatanúsítvány:nincs megadva
- Villany:nincs megadva
- Víz:nincs megadva
- Gáz:nincs megadva
- Csatorna:nincs megadva
- Kapcsolatfelvétel

Borbély Róbert
+36-(70)-803-0683
Mondd meg a hirdetőnek, hogy a megveszLAK-on találtad a hirdetést.
Hitel ajánlatok
Ingatlan hirdetés leírása
Eladó Tégla lakás, Levél, 42nm, 44300000 Ft
A Napsugár Lakópark egy két tömbből álló, összesen 46 lakást magában foglaló új építésű társasházi projekt, amelynek előértékesítése 2026 decemberében indul.
A beruházás mögött a térség egyik meghatározó kivitelezője áll, ami stabil alapot jelent mind a megvalósítás, mind a későbbi értékállóság szempontjából.
Az előértékesítési szakasz lehetőséget biztosít a legkedvezőbb lakások kiválasztására, valamint egyedi induló feltételek igénybevételére az első szerződők számára.
Jelen hirdetésben szereplő második emeleti lakás 42, 55 m2 hasznos alapterülettel rendelkezik, elosztását tekintve rendelkezik egy amerikai konyhás nappalival, hálószobával, egy fürdőszobával, valamint egy 13, 5 m2 nagyságú erkéllyel.
Tervezett kulcsrakész átadás: 2027 II. Negyedév
Minőségi kivitelezés:
Fűtés: gáz+ hőszivattyús hibrid rendszer padlófűtéssel, lakásonként egyedi mérőórával, klíma előkészítéssel
Nyílászárók: 3 rétegű, 5 légkamrás hőszigetelt üvegezés
Hőszigetelés: 15 cm eps rendszer
Szerkezet: pth30 n+f falazat, monolit vasbeton födém
A feltüntetett vételár, fűtéskész állapotra vonatkozik. Igény esetén a kivitelező vállalja a kulcsrakész befejezést is. Tároló és parkoló az ingatlanhoz külön vásárolható!
Amennyiben felkeltette ez a hirdetés az érdeklődését vagy további kérdései vannak, akkor keressen bizalommal.
Irodánk készséggel segít hitel, támogatások díjmentes ügyintézésében is. FIX 3% lakáshitelre megvehető
Tetszett ez az eladó Levéli új építésű 2 szobás tégla lakás? Hívd fel a hirdetőt most, és tudj meg mindent erről az eladó tégla lakásról! Ha gondolod nézelődj tovább az eladó lakás Levél oldal hirdetései között. Ennek az eladó lakásnak az ára 44300000 Ft és mivel az alapterülete 42 négyzetméter, ezért az átlagos négyzetméterára 1054762 HUF/m2.
Az eladó lakások menüpontban további hirdetések között is böngészhetsz. Ha van kedved, akkor böngészhetsz a Borbély Róbert összes hirdetése között, vagy akár a/az KOMPLEX INGATLAN összes hirdetése között is.

