Eladó új építésű lakás - Levél
- INGYENES HIRDETÉS FELADÁS
Ingatlan adatai
- Feladva:64 napja a megveszLAK-on
- Eladó vagy kiadó:Eladó
- Település:Levél
- Kategória:Lakás
- Alkategória:Tégla
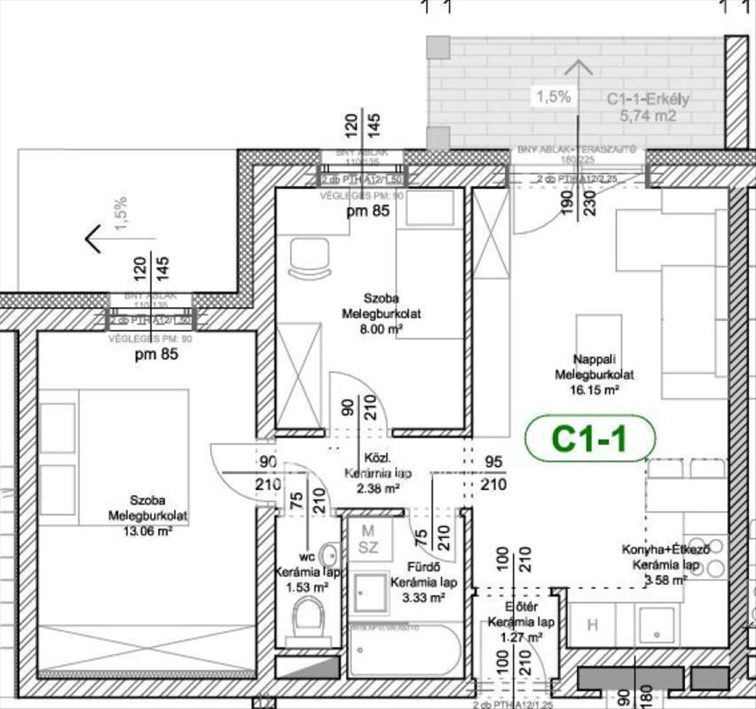
- Alapterület:52 m2
- Csere is:Nem
- Hirdető:Cég
- Élő videón megtekinthető:Nem
- Szobaszám:3
- Állapot:Új építésű
- Hány szintes az ingatlan:Földszintes
- Komfortosság:nincs megadva
- Hányadik emeleti:1
- Erkély:nincs megadva
- Lift:Nincs
- Parkolási lehetőség:Teremgarázsban
- Fűtés:Gáz (cirko)
- Bútorozottság:nincs megadva
- Fényviszony:Napfényes
- Tájolás:nincs megadva
- Kilátás:nincs megadva
- Internet:nincs megadva
- Klíma:nincs megadva
- Akadálymentesített:nincs megadva
- Energiatanúsítvány:nincs megadva
- Villany:Van
- Víz:Van
- Gáz:nincs megadva
- Csatorna:Van
- Kapcsolatfelvétel

Tamásiné Hujber Margit
+36-(70)-393-4979
Mondd meg a hirdetőnek, hogy a megveszLAK-on találtad a hirdetést.
Referencia szám: M312822
Hitel ajánlatok
Ingatlan hirdetés leírása
Eladó Lakás, Levél, Eladó új építésű lakás - Levél
Győr-Moson-Sopron vármegyében, Levélen, modern lakások átgondolt műszaki tartalommal, jó minőségű beépített anyagokkal, új építésű projektben leköthetők! Épületszerkezet: Monolit vasbeton vázszerkezet, falazata: Leiertherm 30 n+f tégla, válaszfalak 10cm-es hanggátló téglából készülnek. Homlokzati hőszigetelés 15 cm vastagságú Austrotherm Dryvit rendszerrel, zárófödém szigetelés austrotherm at-n100 rendszer. Nyílászárók: 3 rétegű 5 légkamrás üvegezéssel ellátott. a földszinti lakások - szinte mindegyike - kizárólagos használatú kerttel, az emeleti lakások erkéllyel rendelkeznek. a lakásokhoz tároló, és parkoló igény szerint vásárolható. a fűtésről-melegvízellátásról központi turbó gázkazán gondoskodik, padlófűtéssel egyedi hőmennyiségmérővel. a feltöltött képek csak illusztrációk! Modern megoldásokkal és változatos alaprajzokkal várja Önt is leendő lakása. Nyugodt, zöld környezet, tágas, napfényes lakások-hozzátartozó teraszokkal, kertekkel, több éves tapasztalattal rendelkező kivitelező! Kiemelt bérbeadhatóság, garantált bérleti díj! Otthon start hitelprogram!
Amennyiben további kérdése van forduljon hozzám bizalommal elérhetőségeimen!
Megtalálta álmai ingatlanát, de nem áll rendelkezésére a teljes vételár? Forduljon hozzám bizalommal ingatlanközvetítés és hitelmegoldások egy helyen, az OTP Bank szakmai hátterével! Ingyenesen előszűrés! Gyorsított ügyintézéssel, személyesen, vagy akár telefonon keresztül, de igény esetén ügyfeleink otthonában, és banki nyitva tartáson túl is. További információért hívjon a megadott telefonszámon. Tel:70/393-4979
Referencia szám: m312822-ml FIX 3% lakáshitelre megvehető
Tetszett ez az eladó Levéli új építésű 3 szobás tégla lakás? Hívd fel a hirdetőt most, és tudj meg mindent erről az eladó tégla lakásról! Ha gondolod nézelődj tovább az eladó lakás Levél oldal hirdetései között. Ennek az eladó lakásnak az ára 52980000 Ft és mivel az alapterülete 52 négyzetméter, ezért az átlagos négyzetméterára 1018846 HUF/m2.
Az eladó lakások menüpontban további hirdetések között is böngészhetsz. Ha van kedved, akkor böngészhetsz a Tamásiné Hujber Margit összes hirdetése között, vagy akár a/az OTPip Győr Árpád út 23 - OTP Ingatlanpont Iroda összes hirdetése között is.

