Eladó új építésű lakás - Levél
- INGYENES HIRDETÉS FELADÁS
Ingatlan adatai
- Feladva:4 hónapja a megveszLAK-on
- Eladó vagy kiadó:Eladó
- Település:Levél
- Kategória:Lakás
- Alkategória:Tégla
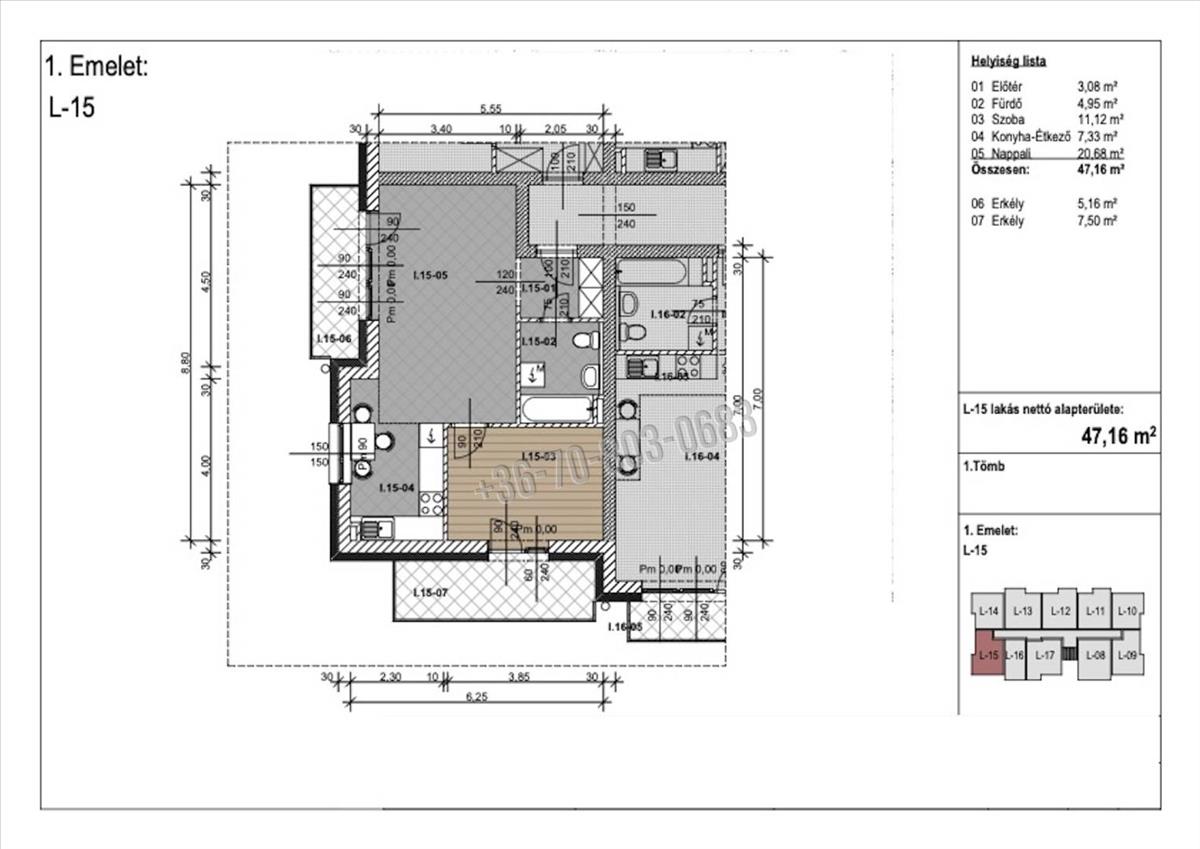
- Alapterület:47 m2
- Csere is:Nem
- Hirdető:Cég
- Élő videón megtekinthető:Nem
- Szobaszám:2
- Állapot:Új építésű
- Hány szintes az ingatlan:nincs megadva
- Komfortosság:Összkomfortos
- Hányadik emeleti:1
- Erkély:Van
- Lift:Nincs
- Parkolási lehetőség:Nincs
- Fűtés:nincs megadva
- Bútorozottság:nincs megadva
- Fényviszony:nincs megadva
- Tájolás:nincs megadva
- Kilátás:nincs megadva
- Internet:nincs megadva
- Klíma:nincs megadva
- Akadálymentesített:nincs megadva
- Energiatanúsítvány:nincs megadva
- Villany:nincs megadva
- Víz:nincs megadva
- Gáz:nincs megadva
- Csatorna:nincs megadva
- Kapcsolatfelvétel

Borbély Róbert
+36-(70)-803-0683
Mondd meg a hirdetőnek, hogy a megveszLAK-on találtad a hirdetést.
Hitel ajánlatok
Ingatlan hirdetés leírása
Eladó Tégla lakás, Levél, 47nm, 48100000 Ft
Napsugár Lakópark – Levél, határmenti lokáció
A Levélen megvalósuló Napsugár Lakópark egy két tömbből álló, 46 lakásos új építésű társasházi fejlesztés.
A település elhelyezkedése kiemelkedő: Mosonm agyaróvár gyorsan elérhető, az m1 autópálya közelsége pedig Ausztria és Szlovákia irányába is kiváló közlekedést biztosít, ami stabil bérleti keresletet eredményez.
Az értékesítés legelső szakasza ideális lehetőség befektetők számára, akik jó lokációban, hosszú távon értékálló ingatlant keresnek.
Tervezett kulcsrakész átadás: 2027 II. Negyedév
Jelen hirdetésben szereplő első emeleti lakás 47, 15 m2 hasznos alapterülettel rendelkezik, elosztását tekintve rendelkezik egy amerikai konyhás nappalival, hálószobával, egy fürdőszobával, valamint egy 7, 5 m2 és egy 5, 16 m2 nagyságú erkéllyel.
Minőségi kivitelezés:
Fűtés: gáz+ hőszivattyús hibrid rendszer padlófűtéssel, lakásonként egyedi mérőórával, klíma előkészítéssel
Nyílászárók: 3 rétegű, 5 légkamrás hőszigetelt üvegezés
Hőszigetelés: 15 cm eps rendszer
Szerkezet: pth30 n+f falazat, monolit vasbeton födém
A feltüntetett vételár, fűtéskész állapotra vonatkozik. Igény esetén a kivitelező vállalja a kulcsrakész befejezést is. Tároló és parkoló az ingatlanhoz külön vásárolható!
Amennyiben felkeltette ez a hirdetés az érdeklődését vagy további kérdései vannak, akkor keressen bizalommal.
Irodánk készséggel segít hitel, támogatások díjmentes ügyintézésében is. FIX 3% lakáshitelre megvehető
Tetszett ez az eladó Levéli új építésű 2 szobás tégla lakás? Hívd fel a hirdetőt most, és tudj meg mindent erről az eladó tégla lakásról! Ha gondolod nézelődj tovább az eladó lakás Levél oldal hirdetései között. Ennek az eladó lakásnak az ára 48100000 Ft és mivel az alapterülete 47 négyzetméter, ezért az átlagos négyzetméterára 1023404 HUF/m2.
Az eladó lakások menüpontban további hirdetések között is böngészhetsz. Ha van kedved, akkor böngészhetsz a Borbély Róbert összes hirdetése között, vagy akár a/az KOMPLEX INGATLAN összes hirdetése között is.

