Eladó jó állapotú lakás Miskolc
| Kedvencbe | Megosztás | Árfigyelő |
| FIX 3% lakáshitelre megvehető | ||
| 74 900 000 HUF | ||
Ingatlan adatai
- Eladó vagy kiadó:Eladó
- Település:Miskolc
- Kategória:Lakás
- Alkategória:Tégla
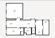
- Alapterület:94 m2
- Csere is:Nem
- Hirdető:Cég
- Élő videón megtekinthető:Nem
- Szobaszám:3
- Állapot:Jó állapotú
- Hány szintes az ingatlan:Földszintes
- Komfortosság:nincs megadva
- Hányadik emeleti:1
- Lift:Nincs
- Parkolási lehetőség:nincs megadva
- Fűtés:Távfűtés
- Bútorozottság:nincs megadva
- Fényviszony:Napfényes
- Tájolás:nincs megadva
- Kilátás:nincs megadva
- Internet:nincs megadva
- Akadálymentesített:nincs megadva
- Energiatanúsítvány:nincs megadva
- Villany:Van
- Víz:Van
- Gáz:nincs megadva
- Csatorna:Van
- Közös költség:8 000 Ft
- Üzenetküldés
- Hívás

Referencia szám: M315785

Hitel ajánlat
Ingatlan hirdetés leírása
Eladó Lakás, Miskolc
Exkluzív, felújított nagypolgári lakás Miskolc belvárosának szívében. Családoknak és befektetőknek egyaránt tökéletes választás!Eladó Miskolc belvárosának egyik legkedveltebb részén egy stílusos, 94 nm-es nagypolgári lakás, amely tágas tereivel és elegáns hangulatával azonnal magával ragadja az embert.
Az ingatlan egy rendezett társasház 1. emeletén található, és egy éve teljes körű felújításon esett át, így új tulajdonosát hibátlan műszaki és esztétikai állapotban várja.
A lakásban 3 hálószoba, világos nappali, egyedi konyha étkezővel, két fürdőszoba, gardróbszoba és erkély kapott helyet.
A fűtést modern, zárt égésterű gázkazán, a kényelmet pedig 3 klímaberendezés biztosítja. a beépített bútorok a vételár részét képezik.
Elhelyezkedése kivételes: a belváros nyugodt, mégis központi részén található, pár perc sétára minden fontos szolgáltatástól, üzlettől, iskolától és kávézótól. a történelmi környezet és a modern városi életstílus itt valódi harmóniában élnek együtt.
Ez a lakás kiváló választás családok számára, akik szeretnének belvárosi, mégis csendes otthonban élni, de befektetőknek is ideális, hiszen prémium elhelyezkedésének és állapotának köszönhetően azonnal kiadható, értéktartó ingatlan.
Amennyiben egy különleges, minőségi belvárosi otthont keres, ne hagyja ki ezt a lehetőséget!
Elhelyezkedéséből adódóan iskola, óvoda, posta, bolt, templom, és egyéb szolgáltatók 5-10 percen belül elérhetők. Banki hátterünknek köszönhetően 3%-os Otthon Start hitel, csok, Falusi csok, Babaváró hitel ügyintézésben is tudunk segíteni ügyfeleinknek. Érdeklődés esetén kérem hivatkozzon az M315785-ös referenciaszámra.
ÉRDEKLŐDNI: pucsok hajnalka 06204911723
Referencia szám: m315785 FIX 3% lakáshitelre megvehető

