Eladó jó állapotú lakás - Mosonmagyaróvár
- INGYENES HIRDETÉS FELADÁS
Ingatlan adatai
- Eladó vagy kiadó:Eladó
- Település:Mosonmagyaróvár
- Kategória:Lakás
- Alkategória:Tégla
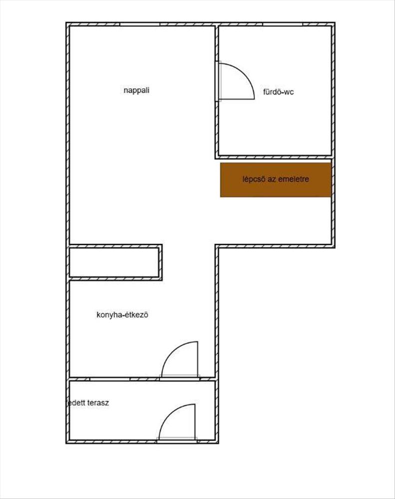
- Alapterület:57 m2
- Csere is:Nem
- Hirdető:Cég
- Élő videón megtekinthető:Nem
- Szobaszám:2
- Állapot:Jó állapotú
- Hány szintes az ingatlan:2 szintes
- Komfortosság:nincs megadva
- Hányadik emeleti:Földszint
- Erkély:nincs megadva
- Lift:Nincs
- Parkolási lehetőség:Utcán
- Fűtés:Elektromos
- Bútorozottság:nincs megadva
- Fényviszony:nincs megadva
- Tájolás:D
- Kilátás:nincs megadva
- Internet:nincs megadva
- Klíma:Van
- Akadálymentesített:nincs megadva
- Energiatanúsítvány:nincs megadva
- Villany:Van
- Víz:Van
- Gáz:nincs megadva
- Csatorna:Van
- Kapcsolatfelvétel

Gábor Péter
+36-(30)-946-8094
Mondd meg a hirdetőnek, hogy a megveszLAK-on találtad a hirdetést.
Referencia szám: 3408
Hitel ajánlatok
Ingatlan hirdetés leírása
Praktikus otthon Mosonmagyaróvár szívében!
Képzeld el, hogy a Szent István király út pezsgéséből pár lépéssel egy csendes, udvari menedékbe érkezel. Ez az 57 nm -es, kétszintes lakás tökéletes választás, ha nem akarsz kompromisszumot kötni a központi elhelyezkedés és a privát szféra között. a földszinten egy világos, amerikai konyhás nappali vár, ahonnan közvetlenül kiléphetsz a 4, 7 nm -es fedett teraszra – ideális helyszín a reggeli kávédhoz.
A lakás modern fűtési megoldásokkal (hűtő-fűtő klíma és elektromos panelek) felszerelt, a fürdőszoba pedig stílusos, épített zuhanyzót kapott. Az emeleti hálószoba szeparáltsága biztosítja a nyugodt pihenést, miközben a terek átgondolt elrendezése miatt a lakás sokkal tágasabbnak érződik. Legyen szó saját első otthonról vagy kiadhatósága miatt kiváló befektetésről, ezzel az ingatlannal biztosra mész.
Referencia szám: 3408 FIX 3% lakáshitelre megvehető
Tetszett ez az eladó Mosonmagyaróvári jó állapotú 2 szobás tégla lakás? Hívd fel a hirdetőt most, és tudj meg mindent erről az eladó tégla lakásról! Ha gondolod nézelődj tovább az eladó lakás Mosonmagyaróvár oldal hirdetései között. Ennek az eladó lakásnak az ára 44900000 Ft és mivel az alapterülete 57 négyzetméter, ezért az átlagos négyzetméterára 787719 HUF/m2.
Az eladó lakások menüpontban további hirdetések között is böngészhetsz. Ha van kedved, akkor böngészhetsz a Gábor Péter összes hirdetése között, vagy akár a/az Mov-Ing Home összes hirdetése között is.

